Version: 8.24.0Navigation überspringen
325.000 €
6 Zimmer  •  172 m²  •  485 m² Grundstück
Immowelt logo

Haus zum Kauf
325000 €
1.890 €/m²
6 Zimmer  •  172 m²  •  485 m² Grundstück

Abschluss Gebotsphase - Gesuchte Wohnlage in Sachsen b. Ansbach - EFH mit Einliegerwohnung

Zum Verkauf steht ein Einfamilienhaus mit Einliegerwohnung am Rande des Wohngebietes in Sachsen b. Ansbach.

Vorab einige Details:
- Grundstück mit Hanglage in letzter Reihe des Wohngebietes
- gesuchte und ruhige Wohnlage
- zur Rückseite unverbauter Ausblick ins Grüne

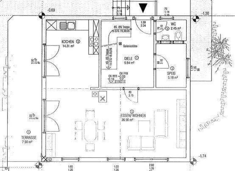
Aufteilung des Wohnhauses:
EG: Diele, WC, Abstellraum, offene Küche (Abtrennung möglich), großzügiger Wohn-Essbereich mit ca. 36 m², Terrasse
DG: Flur, Schlafzimmer, zwei Kinder-/Arbeitszimmer, Hauptbad
UG: Einliegerwohnung mit Wohnzimmer, Schlafzimmer, Duschbad, Flur, Terrasse
UG: Flur/Diele, Hausanschlussraum (Keller)

- das Untergeschoss wurde komplett in Massivbauweise errichtet
- das Wohnhaus (EG + DG) wurde in Fertigteilbauweise errichtet
- die Wärmeversorgung erfolgt über Marmorheizplatten (Strom)
- im Wohnbereich kann ein Schwedenofen zusätzlich für wohlige Wärme sorgen
- die Dachfläche bietet noch Platz für eine Photovoltaikanlage
- allgemein entspricht der Zustand dem ursprünglichen Zustand
- vor einem Bezug wären gewisse Schönheitsreparaturen erforderlich (kompletten Malerarbeiten - Raucherhaushalt)

Außenbereich:
- geräumiger Carport mit angrenzendem Schuppen
- überdachter Terrassenbereich vor dem Küchen-Wohnbereich

Weitere Details auf Anfrage.

Merkmale

  • 485 m² Grundstück
  • Carport
  • Gäste-WC
  • Terrasse
  • Badezimmer: Badewanne, Bad mit Dusche, Bad mit Fenster

Grundrisse

Grundrisse
1 / 3

Realisiere Dein Projekt

Bausubstanz und Energie

Der Anbieter hat keine Informationen zum Energieverbrauch bereit gestellt.
  • Baujahr2006
Immowelt logo

Preisdetails

Kaufpreis
325000 €
1.889,53 €/m²
Provision für Käufer
2,98% inkl. MwSt. des notariellen Kaufpreises
Geschätzte Gesamtkosten
352.560 €1
Kaufpreis
325.000 €
Notarkosten (1,5%)
4.875 €
Grunderwerbsteuer (3,5%)
11.375 €
Provision für Käufer (2,98%)
9.685 €
Grundbucheintrag (0,5%)
1.625 €
1Der angezeigte Wert ist eine automatisch berechnete Schätzung von immowelt.
2Bei den Angaben handelt es sich um ortsübliche Werte. Individuelle Kosten können abweichen.

Lage

address-icon
SachsenSachsen bei Ansbach (91623)
Der Anbieter hat die genaue Adresse nicht freigegeben
- das Grundstück befindet sich am Ortsrand von Sachsen b. A. in einer gesuchten Wohnlage
- die Rusam-Volksschule ist fußläufig erreichbar
- eine sehr gute Verkehrsanbindung nach Ansbach und Nürnberg ist durch den S-Bahnanschluss gegeben
-Sachsen bei Ansbach ist eine Gemeinde im mittelfränkischen Landkreis Ansbach und zählt zur Metropolregion Nürnberg

Weitere Informationen

Besichtigungstermine Verkauf gegen Gebot, ein schriftliches Kaufangebot ist erforderlich. Der Verkauf erfolgt an das höchste Gebot. Zustimmung des Insolvenzverwalters, der Miteigentümer und ggf. der Grundpfandgläubiger erforderlich.

Alle Angaben basieren ausschließlich auf Informationen unserer Auftraggeber. Eine Haftung für die Richtigkeit, Vollständigkeit oder Aktualität der Angaben kann nicht übernommen werden.
Alle Immobilienangebote sind freibleibend und unverbindlich. Irrtümer, Zwischenverkauf oder sonstige Zwischenverwertung bleiben vorbehalten. Stichworte Sonstiges: frei werdend

Weitere Services

Lust auf eine Besichtigung?
Eine Frage zur Immobilie?
Nachricht hinzufügen
Mit der Nutzung der oben angegebenen Telefonnummer oder durch Klicken auf „Kontaktieren“ akzeptierst Du die Allgemeinen Nutzungsbedingungen, denen Du jederzeit widersprechen kannst. Weitere Informationen zum Datenschutz

Über den Anbieter

Maxplatz 34, 90403 Nürnberg
Kai HennigDein Kontakt
Online-ID: 2nsmw5k
Referenznummer: 028/24-G
Die Immobilienverwerter
Die Immobilienverwerter
Nachricht hinzufügen
Mit der Nutzung der oben angegebenen Telefonnummer oder durch Klicken auf „Kontaktieren“ akzeptierst Du die Allgemeinen Nutzungsbedingungen, denen Du jederzeit widersprechen kannst. Weitere Informationen zum Datenschutz
Wie zufrieden bist du mit dieser Seite (nicht mit der Immobilie selbst)?