Version: 8.25.1Navigation überspringen
284 €
108,1 m² Lagerfläche
Immowelt logo

Lagerhalle zur Miete
284 €
108,1 m² Lagerfläche

Hernalser Hauptstraße - Lagerfläche im Kellergeschoss

Highlights

* Großzügige Lagerfläche (ca. 108 m²)
* Zusätzliche Nebenräume inkl. Sanitärbereiche
* Gute Erreichbarkeit über Lift
* Hervorragende Verkehrsanbindung
* Vielseitig nutzbar

Objektbeschreibung

Die ca. 108,10 m² große Lagerfläche befindet sich im Kellergeschoss eines gepflegten Gebäudes im 17. Wiener Gemeindebezirk (Hernals).

Die Einheit verfügt über eine großzügige, zusammenhängende Lagerfläche sowie mehrere Nebenräume, die sich ideal für unterschiedliche Nutzungen eignen. Zusätzlich stehen Sanitärbereiche (WC) zur Verfügung.

Die Struktur der Fläche ermöglicht eine flexible Nutzung - sowohl als klassisches Lager als auch für einfache gewerbliche Tätigkeiten mit Lagerbedarf.

Die Einheit wird wie liegt und steht vermietet. Vorhandene Einbauten (Bar, Badezimmermöbel) können übernommen werden, sind jedoch nicht Bestandteil des Mietgegenstandes.

Zusätzlich zur Miete werden monatliche Heizkosten von EUR 142,69,- zzgl. Ust. vorgeschrieben.

Lage

Die Liegenschaft befindet sich in guter Lage im 17. Wiener Gemeindebezirk (Hernals), in der Nähe der Hernalser Hauptstraße.

Die Umgebung bietet eine ausgezeichnete Infrastruktur mit zahlreichen Einkaufsmöglichkeiten, Gastronomiebetrieben sowie weiteren Einrichtungen des täglichen Bedarfs in unmittelbarer Nähe.

 

_*Alle angegebenen Preise verstehen sich zzgl. der gesetlichen Umsatzsteuer._

-------------------------

Anbindung

Die Verkehrsanbindung ist sehr gut. In unmittelbarer Nähe befinden sich:

* S-Bahn Wien Hernals (S45)
* Straßenbahnlinien 2, 10, 43
* Buslinien 10A, 42A, 44A

 

Hinweis gemäß Energieausweisvorlagegesetz: Ein Energieausweis wurde vom Eigentümer bzw. Verkäufer, nach unserer Aufklärung über die generell geltende Vorlagepflicht, sowie Aufforderung zu seiner Erstellung noch nicht vorgelegt. Daher gilt zumindest eine dem Alter und der Art des Gebäudes entsprechende Gesamtenergieeffizienz als vereinbart. Wir übernehmen keinerlei Gewähr oder Haftung für die tatsächliche Energieeffizienz der angebotenen Immobilie.

Infrastruktur / Entfernungen

Gesundheit
Arzt <500m
Apotheke <500m
Klinik <1.000m
Krankenhaus <1.500m

Kinder & Schulen
Schule <1.000m
Kindergarten <500m
Universität <2.000m
Höhere Schule <1.500m

Nahversorgung
Supermarkt <500m
Bäckerei <500m
Einkaufszentrum <1.000m

Sonstige
Geldautomat <500m
Bank <500m
Post <1.000m
Polizei <500m

Verkehr
Bus <500m
U-Bahn <500m
Straßenbahn <500m
Bahnhof <500m
Autobahnanschluss <4.000m

Angaben Entfernung Luftlinie / Quelle: OpenStreetMap

Merkmale

  • Bezug: sofort
  • 1 Geschoss
  • Personenaufzug
  • Bodenbelag: Fliesen

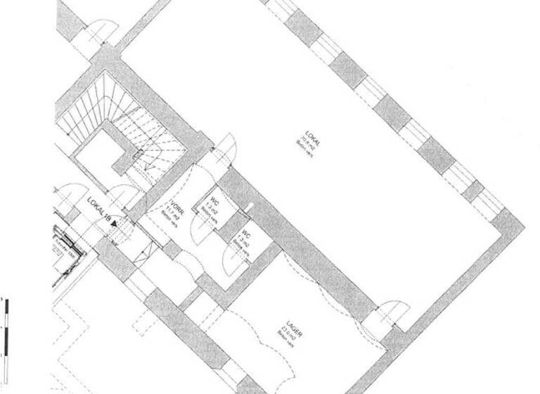
Grundrisse

Grundrisse
1 / 1

Realisiere Dein Projekt

Bausubstanz und Energie

Möchtest du Details zum Energieverbrauch?info_energy_calculation-icon
  • HeizungsartZentralheizung
  • EnergieträgerGas
Immowelt logo

Mietkosten

Nettokaltmiete
283,77 €
Betriebskosten
174,04 €
Provision für Mieter
3 Bruttomonatsmieten zzgl. 20% USt.
Kaution
3.000,00 €
Weitere Preisinformationen
Nettokaltmiete: 283,77 EUR

Lage

address-icon
Wien (1170)
Hernalser Hauptstraße, Dittersdorfgasse

Weitere Informationen

Stichworte Lagerfläche: 108,10 m², Nutzfläche: 108,10 m², Anzahl der separaten WCs: 2, Bundesland: Wien

Weitere Services

Lust auf eine Besichtigung?
Eine Frage zur Immobilie?
Mit einer persönlichen Nachricht hast du bessere Chancen auf eine Antwort.
Mit der Nutzung der oben angegebenen Telefonnummer oder durch Klicken auf „Kontaktieren“ akzeptierst Du die Allgemeinen Nutzungsbedingungen, denen Du jederzeit widersprechen kannst. Weitere Informationen zum Datenschutz

Über den Anbieter

Marc-Aurel-Straße 6/6, 1010 WIEN
partner badge
Partnerschaft
Herr Stephan RickDein Kontakt
Online-ID: 26XFUDE63D2G
Referenznummer: OBGC202603311243482978bf97003e0
EDEX Immobilien GmbH
EDEX Immobilien GmbH
Bewertung: 5 von 5 Sternen
Mit einer persönlichen Nachricht hast du bessere Chancen auf eine Antwort.
Mit der Nutzung der oben angegebenen Telefonnummer oder durch Klicken auf „Kontaktieren“ akzeptierst Du die Allgemeinen Nutzungsbedingungen, denen Du jederzeit widersprechen kannst. Weitere Informationen zum Datenschutz
Wie zufrieden bist du mit dieser Seite (nicht mit der Immobilie selbst)?