Version: 8.25.1Navigation überspringen
649.000 €
5 Zimmer  •  100 m²
Immowelt logo

Reihenmittelhaus zum Kauf
649000 €
4.327 €/m²
5 Zimmer  •  100 m²

Prächtiges Haupthaus

Eingebettet in eine elegante und zurückhaltende Wohnanlage, entstanden aus der behutsamen Sanierung einer historischen herrschaftlichen Villa, stellt diese Immobilie eine äußerst seltene Wohnlösung für all jene dar, die Unabhängigkeit, Großzügigkeit und Privatsphäre suchen, ohne auf die Qualität des Umfelds zu verzichten. Das Haus präsentiert sich als Reihenendhaus mit drei freien Seiten, ohne darüberliegende Wohneinheiten. Ein entscheidender Vorteil für die tägliche Wohnqualität, der Ruhe, Helligkeit und ein Gefühl von Eigenständigkeit garantiert, wie es in klassischen Wohnanlagen nur selten zu finden ist.

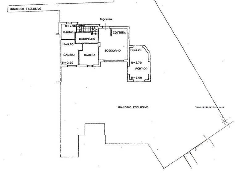
Die Immobilie gehört zu den größten Einheiten des Residence und erstreckt sich über zwei Ebenen. Die Räume sind großzügig und funktional aufgeteilt und passen sich auf natürliche Weise den Bedürfnissen einer Familie an. Der Eingangsbereich führt in den Wohnbereich, ein heller und einladender Raum, der das Herzstück des Hauses bildet und ideale Voraussetzungen für Entspannung und geselliges Beisammensein bietet. Die Küche, die durch die Schließung des ehemaligen Portikus mit großzügigen Glasflächen realisiert wurde, steht in direktem Dialog mit dem Wohnbereich und überzeugt durch ihre ganzjährige Nutzbarkeit sowie durch den ständigen visuellen Bezug zum Außenbereich.

Ebenfalls im Erdgeschoss befinden sich zwei Schlafzimmer mit direktem Zugang zum Garten sowie das Hauptbadezimmer, das vor Kurzem vollständig renoviert wurde. Dieses Bad wurde mit einer speziellen Oberflächenveredelung im Stil der sogenannten "Terre Toscane" ausgestattet, die aufgrund ihrer eleganten, natürlichen Anmutung sowie ihrer hohen Widerstandsfähigkeit gewählt wurde. Eine bewusste Entscheidung für ein Ambiente, das zugleich stilvoll und funktional ist, langlebig und pflegeleicht im täglichen Gebrauch.

Das Untergeschoss, intern mit dem Wohnbereich verbunden, erweitert die Nutzungsmöglichkeiten der Immobilie erheblich und erhöht ihre Vielseitigkeit. Ein Flur mit maßgefertigten Einbauschränken sorgt für eine klare und effiziente Organisation der Räume. Auf dieser Ebene befinden sich ein derzeit als Schlafzimmer genutzter Raum, ein weiterer Raum, der als Ankleidezimmer dient, sowie ein voll ausgestattetes Badezimmer mit integrierter Waschküche. Dank der vorhandenen Lichtschächte ist auch diese Etage gut belüftet und mit Tageslicht versorgt, wodurch sie sich ideal als Gästebereich, Kinderbereich, Homeoffice oder multifunktionale Zone eignet.

Der großzügige private Garten zählt zu den herausragenden Merkmalen dieser Immobilie. Er umgibt das Haus auf drei Seiten und garantiert ein hohes Maß an Privatsphäre. Der Außenbereich lädt dazu ein, das Leben im Freien in vollen Zügen zu genießen, sei es in Ruhebereichen, Spielzonen oder Bereichen für geselliges Zusammensein, stets mit angenehmem Abstand zu den benachbarten Wohneinheiten.

Merkmale

  • Keller
  • Bidet
  • Fernblick
  • teilweise möbliert
  • Barrierefrei
  • Badezimmer: Bad mit Dusche, Bad mit Fenster

Grundrisse

Grundrisse
1 / 3

Virtueller Rundgang

Video

Realisiere Dein Projekt

Bausubstanz und Energie

Möchtest du Details zum Energieverbrauch?info_energy_calculation-icon
  • Baujahr1999
  • HeizungsartEtagenheizung
Immowelt logo

Preisdetails

Kaufpreis
649000 €
4.326,67 €/m²
Hausgeld
100 €
Provision für Käufer
ja maklerprovision im Preis nicht inbegriffen inkl. MwSt.

Lage

address-icon
Via Meucci 9Padenghe sul Garda (25080)

Weitere Informationen

Prächtiges Haupthaus Die Immobilie befindet sich in einer der begehrtesten und renommiertesten Wohnlagen von Padenghe sul Garda, einem Ort, der für seine Eleganz, hohe Lebensqualität und die Nähe zum See bekannt ist. Die Lage zählt zu den größten Mehrwerten dieser Immobilie: Luftlinienmäßig beträgt die Entfernung zum See etwa 200 Meter, eine konstante Präsenz, die sich im Alltag in Atmosphäre, Lebensqualität und Prestige widerspiegelt.

Die Wohnanlage verfügt über eine besonders funktionale Struktur mit zwei separaten Zugängen, die maximale Bewegungsfreiheit und optimale Nutzung der Umgebung ermöglichen. Vom seeorientierten Eingang aus erreicht man in etwa zehn Gehminuten die Uferpromenade, die Strände sowie einige der bekanntesten Lokale der Gegend, darunter das Copelia, ein beliebter Treffpunkt für alle, die Padenghe auch von seiner lebendigen und geselligen Seite erleben möchten. Der Weg ist flach und angenehm und erlaubt es, den See ganz entspannt zu Fuß zu genießen, ohne auf das Auto angewiesen zu sein.

Der zweite Zugang der Wohnanlage ist ebenso strategisch gelegen und ermöglicht es, das Ortszentrum von Padenghe in rund zehn Gehminuten zu erreichen. Hier befinden sich alle wichtigen Dienstleistungen, Geschäfte des täglichen Bedarfs, Schulen sowie das pulsierende Alltagsleben des Ortes. Diese Lage macht die Immobilie nicht nur als Feriendomizil, sondern auch als Hauptwohnsitz besonders attraktiv. Ein Aspekt, der vor allem von Familien sehr geschätzt wird, da sich viele Wege sicher und eigenständig zu Fuß erledigen lassen.

Die Lage stellt somit einen echten Mehrwert dar, da sie ruhiges Wohnen, reale Nähe zum See und hervorragende Erreichbarkeit aller wichtigen Einrichtungen vereint. In diesem Umfeld zu leben bedeutet, sich für das Beste von Padenghe sul Garda zu entscheiden: eine der exklusivsten und gefragtesten Ortschaften am Gardasee, in der Wohnqualität, Privatsphäre und Lebensstil auf natürliche Weise zusammenfinden. Stichworte Wir begleiten Sie nach Verabredung persönlich zu den Objekten und stehen Ihnen bei der gesamten Abwicklung Ihres Immobilienkaufs als starker Partner kompetent zur Seite. Mit uns gehen Sie keine Kompromisse ein und überlassen nichts dem Zufall. „Full Service“ ist für uns kein Wort, sondern Geschäftsphilosophie. Wir unterstützen Sie tatkräftig und überwinden für Sie alle sprachlich und kulturell bedingten Barrieren auf dem Weg zu Ihrer Traumimmobilie am Gardasee.

Weitere Services

Lust auf eine Besichtigung?
Eine Frage zur Immobilie?
Nachricht hinzufügen
Mit der Nutzung der oben angegebenen Telefonnummer oder durch Klicken auf „Kontaktieren“ akzeptierst Du die Allgemeinen Nutzungsbedingungen, denen Du jederzeit widersprechen kannst. Weitere Informationen zum Datenschutz

Über den Anbieter

Via Meucci 77, 25080 PADENGHE SUL GARDA
partner badge
Partnerschaft
Frau Paola Mosele
Frau Paola MoseleDein Kontakt
Online-ID: 25A6PD268M5I
Referenznummer: PV-940
Garda Haus Srl
title
Garda Haus Srl
Nachricht hinzufügen
Mit der Nutzung der oben angegebenen Telefonnummer oder durch Klicken auf „Kontaktieren“ akzeptierst Du die Allgemeinen Nutzungsbedingungen, denen Du jederzeit widersprechen kannst. Weitere Informationen zum Datenschutz
Wie zufrieden bist du mit dieser Seite (nicht mit der Immobilie selbst)?