***Schulungsräume + Büros ideal für Praxis und Management***
Objektbeschreibung
super Büro/Praxis/Wohnung Räumlichkeiten, gehoben, mit Aufzug, Datenverkabelung vorhanden
Raumaufteilung
Das Objekt kann nach Wünschen der zukünftigen Mieter selbst gestaltet werden. gehoben, mit Aufzug, Datenverkabelung vorhanden
Merkmale
frei ab sofort
1. Geschoss
Personenaufzug
Bodenbelag: Fliesen
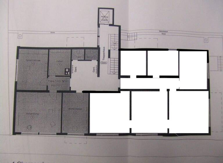
Grundrisse
Grundrisse
1 / 1
Bausubstanz und Energie
Energieausweis
E
Baujahr1966
Zustand der ImmobilieGepflegt
HeizungsartZentralheizung
EnergieträgerGas
Mietkosten
Warmmiete
870 €
Nettomiete
5,65 €/m²
650 €
Nebenkosten
220 €
Heizkosten
in Warmmiete enthalten
Provision für Mieter
provisionsfrei
Kaution
1300 €1.300 €
Lage
Schillerstraße 23, Schramberg (78713)
Dieses Objekt liegt in der Talstadt Schramberg in unmittelbarer Nähe von Stadtzentrum und Fußgängerzone (ca. 3 Gehminuten). Besonders positiv ist die günstige Verkehrslage und die Bushaltestelle in nächster Nähe.
Weitere Informationen
Besichtigungstermine
ANFRAGEN PER EMAIL BITTE MIT ANGABE IHRER ADRESSE UND TEL.NR. Vielen Dank! Dieses Expose`soll Ihnen einen ersten Überblick verschaffen, kann jedoch eine persönliche Beratung und einen persönlichen Eindruck bei einer Besichtigung nicht ersetzen. Eine Terminvereinbarung bitte ausschließlich über unser Büro vereinbaren. Wir versichern, dass wir vom Vermieter oder einem berechtigten Dritten befugt sind, diese Wohnung zu den genannten Bedingungen anzubieten. Wir erklären weiterhin, dass die gemachten Angaben in unserem Angebot ausschließlich auf Informationen des Vermieters beruhen. Wir sind selbstverständlich ebenfalls um richtige und vollständige Angaben bemüht, können jedoch für diese Angaben auf Richtigkeit und Vollständigkeit des Vermieters keine Haftung übernehmen.
Stichworte
Sonstiges: EDV-Verkabelung, frei werdend