Version: 8.22.4Navigation ĂĽberspringen
8 €
Immowelt logo

Laden zur Miete
8 Euro pro Quadratmeter

Geschäftslokal mit großem Außenbereich - Edelrohbau - Q11 Leben am Fluss

In zentraler Lage von St Pölten befindet sich dieses schöne Geschäftslokal mit ca 100m² großem Außenbereich (optional anmietbar) in einem modernen Wohnbauprojekt!

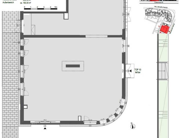
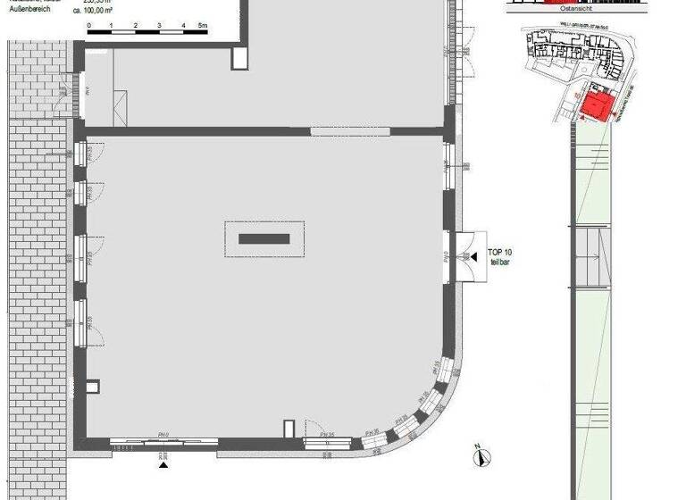
Der ca 255m² große Edelrohbau steht Ihnen nach Absprache zur Verfügung.
Die Übergabe der Geschäftsfläche erfolgt im aktuellen Zustand; der Ausbau des Rohbaus kann nach Bedarf individuell erfolgen.

HIER GEHT ES ZUM 3D-RUNDGANG:
https://my.matterport.com/show/?m=bHuZnjdpFjf

Infrastruktur:
Innerhalb von 10 Gehminuten erreichen Sie sowohl den Hauptbahnhof St. Pölten als auch die Innenstadt. Sämtliche Geschäfte des täglichen Bedarfs sind fußläufig gut zu erreichen.

Parkplätze (Dauerparker und Kurzparker) stehen im gegenüberliegenden Parkhaus zur Verfügung.

Die Kosten:
Der monatliche Gesamtmietzins dieser Wohnung beläuft sich auf Euro 3.029,40 inklusive Betriebskosten und Umsatzsteuer.
Die Höhe der Akontozahlungen (z.B. Betriebskosten) können sich zum Jahreswechsel noch ändern.

Mietbeginn nach Vereinbarung möglich
Befristung vorerst 10 Jahre

Wir möchten darauf hinweisen, dass im Rahmen des Gesamtkonzepts "Quartier Quadrant geplant ist, auf den an die gegenständliche Liegenschaft angrenzenden Liegenschften weitere Gebäude zu erreichen. Durch den Baustellenbetrieb kann es zu mit diesem typischerweise einhergehenden Beeinträchtigungen kommen (wie insbes. eine erhöhte Lärm- und Staubbelastung). Nach Fertigstellung des Gesamtprojekts profitieren Sie aber von den so entstandenen Annehmlichkeiten (Geschäfte, Cafés, Gestaltung der Umgebung uvm)

Per Telefon werden keine Termine vergeben! Wir bitten Sie, ausschlieĂźlich das Kontaktformular der Immobilienplattformen fĂĽr Anfragen zu nutzen. Nach Erhalt unserer E-Mail antworten Sie bitte auf dieses E-Mail mit Ihrem Besichtigungswunsch.

Wir möchten darauf hinweisen, dass unsere Antwort möglicherweise in Ihrem Spamordner landen könnte.

Wir freuen uns auf Ihre Anfrage und einen gemeinsamen Besichtigungstermin!

Merkmale

  • Bezug: nach Vereinbarung
  • Barrierefrei

Grundrisse

Grundrisse
1 / 2

Virtueller Rundgang

3D tour

Realisiere Dein Projekt

Bausubstanz und Energie

Heizwärmebedarf (HWB)

A

Gesamtenergieeffizienz (fGEE)

A+
  • Baujahr- /Neubau
  • EnergieträgerFernwärme
Immowelt logo

Mietkosten

Gesamtmiete
3.029,40 €
Nettokaltmiete
8 €/m²
2.040 €
Betriebskosten
581,40 €
Umsatzsteuer
504,90 €
Provision fĂĽr Mieter
3 BMM
Kaution
9100 €
Weitere Preisinformationen
Nettokaltmiete: 2.040,00 EUR

Lage

address-icon
St. Pölten (3100)
Der Anbieter hat die genaue Adresse nicht freigegeben

Weitere Informationen

Stichworte Nutzfläche: 255,00 m²

Weitere Services

Lust auf eine Besichtigung?
Eine Frage zur Immobilie?
Nachricht hinzufĂĽgen
Mit der Nutzung der oben angegebenen Telefonnummer oder durch Klicken auf „Kontaktieren“ akzeptierst Du die Allgemeinen Nutzungsbedingungen, denen Du jederzeit widersprechen kannst. Weitere Informationen zum Datenschutz

Ăśber den Anbieter

IMV Makler GmbH
IMV Makler GmbHMaklerbĂĽro
Paulanergasse 15, 1040 Wien
partner badge
6 Jahre Partnerschaft
Frau Vivienne SpicakDein Kontakt
Keine Telefonnummer hinterlegt
Keine Telefonnummer hinterlegt
Online-ID: 2fwmu5n
Referenznummer: 247/21547
IMV Makler GmbH
IMV Makler GmbH
Bewertung: 4 von 5 Sternen
Nachricht hinzufĂĽgen
Mit der Nutzung der oben angegebenen Telefonnummer oder durch Klicken auf „Kontaktieren“ akzeptierst Du die Allgemeinen Nutzungsbedingungen, denen Du jederzeit widersprechen kannst. Weitere Informationen zum Datenschutz
Wie zufrieden bist du mit dieser Seite (nicht mit der Immobilie selbst)?