Version: 8.25.1Navigation überspringen
366.000 €
1,5 Zimmer  •  36 m²  •  2. Geschoss
Immowelt logo

Wohnung zum Kauf - Erstbezug
366000 €
10.161 €/m²
1,5 Zimmer  •  36 m²  •  2. Geschoss

Wohnungen für jeden Lebensstil

Eingebettet zwischen dem Donaukanal, dem grünen Augarten und dem pulsierenden 1. Wiener Gemeindebezirk vereint das LeopoldQuartier Natur, Urbanität und höchste Lebensqualität. Stephansdom, Kärntner Straße und die kulinarischen Hotspots des Servitenviertels sind fußläufig erreichbar.
Die Anbindung ist hervorragend: In wenigen Minuten erreicht man die U4-Station Roßauer Lände, die wichtigsten Verkehrsknotenpunkte der Stadt sowie in nur 20 Autominuten den Flughafen Wien.
 

ARCHITEKTUR & NACHHALTIGKEIT

Das LeopoldQuartier ist Europas erstes Stadtquartier in Holz-Hybrid-Bauweise - ein Meilenstein für ökologisches Bauen.

* Holz-Hybrid-Konstruktion: bis zu 80 % weniger CO²-Ausstoß gegenüber Massivbau, schnellere und leisere Errichtung, rund 4.000 t gebundenes CO².
* Geothermie: 200 Erdsonden liefern jährlich ca. 4.800 MWh Heiz- und Kühlenergie.
* Photovoltaik: über 1.000 Paneele mit 425 kWp sorgen für eine zusätzliche Energieversorgung.

Die natürliche Materialität schafft ein gesundes Raumklima, kombiniert mit moderner Technik für maximalen Komfort.

DAS PROJEKT

* 253 Wohnungen, 178 davon in der Oberen Donaustraße 23
* Wohnflächen zwischen rd. 35 m² und rd. 108 m²
* Wohnungsgrößen von smarten 1,5-Zimmer-Einheiten bis zu familiengerechten 4-Zimmer-Wohnungen
* Raumhöhen von 2,60 m
* Außenflächen: jede Wohnung mit Balkon, Loggia, Terrasse oder Eigengarten

AUSSTATTUNG

* Parkett- und Feinsteinzeugböden
* Holzoberflächen & Brettsperrholzdecken
* Fußbodenheizung & -temperierung
* Außenliegender Sonnenschutz (Raffstores, im EG Rollläden)
* Moderne Lüftungssysteme mit Fensterspaltlüftern

SERVICES & INFRASTRUKTUR

* Gastronomie & Nahversorgung: Café, Restaurants und ein Supermarkt direkt im Quartier
* Mobilität: autofreie Zone mit Mobility Point (Car- & Bikesharing), E-Ladestationen, Fahrradstellplätze, 97 Pkw-Stellplätze
* Wellness & Fitness: eigenes Fitness-Studio, Sauna, Co-Working-Space
* Gästeparkplätze: komfortabel in der Tiefgarage

HIGHLIGHTS AUF EINEN BLICK

* Europas erstes Stadtquartier in Holzbauweise
* CO²-neutrale Energieversorgung durch Geothermie & Photovoltaik
* 253 Wohnungen von 34 - 108 m²
* Jede Einheit mit Außenfläche
* Autofreie Zone mit Sharing-Angeboten & E-Mobilität
* Perfekte Innenstadtlage mit Natur, Kultur und Kulinarik direkt vor der Haustür
 

Beim Kauf einer 3- oder 4-Zimmerwohnung kann ein Kfz-Stellplatz in der hauseigenen Tiefgarage um € 44.000,- erworben werden.

Provisionsfrei für den Käufer!
Fertigstellung voraussichtlich Q2/2026

Wir weisen darauf hin, dass zwischen dem Vermittler und dem zu vermittelnden Dritten ein familiäres oder wirtschaftliches Naheverhältnis besteht.

Der Vermittler ist als Doppelmakler tätig.

Infrastruktur / Entfernungen

Gesundheit
Arzt <500m
Apotheke <500m
Klinik <500m
Krankenhaus <1.250m

Kinder & Schulen
Schule <500m
Kindergarten <250m
Universität <500m
Höhere Schule <500m

Nahversorgung
Supermarkt <250m
Bäckerei <500m
Einkaufszentrum <2.000m

Sonstige
Geldautomat <250m
Bank <750m
Post <750m
Polizei <750m

Verkehr
Bus <250m
U-Bahn <250m
Straßenbahn <500m
Bahnhof <250m
Autobahnanschluss <2.000m

Angaben Entfernung Luftlinie / Quelle: OpenStreetMap

Merkmale

  • Bezug: Q2/2026
  • 2. Geschoss
  • offene Küche
  • Personenaufzug
  • Balkon

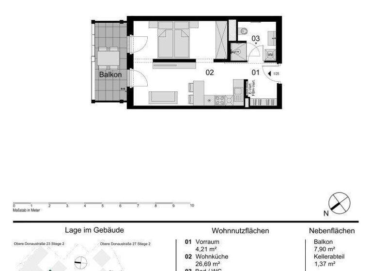
Grundrisse

Grundrisse
1 / 1

Realisiere Dein Projekt

Bausubstanz und Energie

Heizwärmebedarf (HWB)

A

Gesamtenergieeffizienz (fGEE)

A+
  • Baujahr2026
  • Zustand der ImmobilieNeubau, Erstbezug
  • HeizungsartFußbodenheizung
  • EnergieträgerErdwärme
Immowelt logo

Preisdetails

Kaufpreis
366000 €
10.161,02 €/m²
Provision für Käufer
Bitte beachte, das Angebot kann bei Vertragsabschluss die Zahlung einer Provision beinhalten. Weitere Informationen erhältst Du vom Anbieter.

Lage

address-icon
Obere DonaustraßeWien (1020)

Weitere Informationen

Stichworte Tiefgarage vorhanden, Nord-Ost-Balkon/Terrasse, Fahrradraum, Anzahl der Badezimmer: 1, Anzahl der separaten WCs: 1, Anzahl Balkone: 1, Balkon-Terrassen-Fläche: 7,90 m², Bundesland: Wien

Weitere Services

Lust auf eine Besichtigung?
Eine Frage zur Immobilie?
Nachricht hinzufügen
Mit der Nutzung der oben angegebenen Telefonnummer oder durch Klicken auf „Kontaktieren“ akzeptierst Du die Allgemeinen Nutzungsbedingungen, denen Du jederzeit widersprechen kannst. Weitere Informationen zum Datenschutz

Über den Anbieter

Prinz-Eugen-Straße 8-10, 1040 WIEN
partner badge
Partnerschaft
Herr Daniel BolataschwiliDein Kontakt

Weitere Unterlagen

Online-ID: 25H5JTY8PIWH
Referenznummer: OBGC20250923122015158c15386584b
EHL Immobilien GmbH
EHL Immobilien GmbH
Bewertung: 4,5 von 5 Sternen
Nachricht hinzufügen
Mit der Nutzung der oben angegebenen Telefonnummer oder durch Klicken auf „Kontaktieren“ akzeptierst Du die Allgemeinen Nutzungsbedingungen, denen Du jederzeit widersprechen kannst. Weitere Informationen zum Datenschutz
Wie zufrieden bist du mit dieser Seite (nicht mit der Immobilie selbst)?