




Einfamilienhaus zum Kauf209000 €1.742 €/m²4 Zimmer • 120,1 m² • 1.610,1 m² Grundstück
209000 €
1.742 €/m²
4 Zimmer • 120,1 m² • 1.610,1 m² Grundstück
Anpacken in Leopoldshagen: Gestaltbares EFH mit großem Südgarten in unmittelbarer Nähe zum Stettin
Merkmale
- Bezug: nach Absprache
- 1.610,1 m² Grundstück
- Einbauküche
- Kein Keller
- 2 Stellplätze
- Garten
- Terrasse
- Badezimmer: Badewanne, Bad mit Dusche
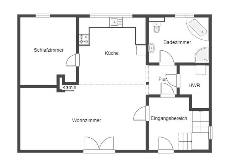
Grundrisse
Grundrisse
1 / 2
Virtueller Rundgang
3D tour

Realisiere Dein Projekt
Bausubstanz und Energie
Energieausweis
G
- Baujahr1907
- Zustand der Immobilierenovierungsbedürftig / sanierungsbedürftig
- EnergieträgerGas
Preisdetails
Kaufpreis
209000 €
1.741,66 €/m²
Provision für Käufer
Die Provision i.H.v. 3,57 % des Kaufpreises inkl. MwSt. ist mit Kaufvertragsbeurkundung fällig, sofern der Verkaufspreis über 83.000,00 € liegt.
Liegt der Verkaufspreis dagegen bei/unter 83. Weitere Informationen siehe Provisionshinweis.
Liegt der Verkaufspreis dagegen bei/unter 83. Weitere Informationen siehe Provisionshinweis.
Geschätzte Gesamtkosten
225.804 €1
Kaufpreis
209.000 €
Kaufnebenkosten
16.804 €
2Notarkosten (1,5%)
3.135 €
Grunderwerbsteuer (6%)
12.540 €
Provision für Käufer (0,04%)
84 €
Grundbucheintrag (0,5%)
1.045 €
1Der angezeigte Wert ist eine automatisch berechnete Schätzung von immowelt.
2Bei den Angaben handelt es sich um ortsübliche Werte. Individuelle Kosten können abweichen.
Lage

Leopoldshagen (17375)
Der Anbieter hat die genaue Adresse nicht freigegeben
Weitere Informationen
Weitere Services
Lust auf eine Besichtigung?
Eine Frage zur Immobilie?
Über den Anbieter
Online-ID: 26JV6IHAP7GC
Referenznummer: 3343a4a5b8
Wie zufrieden bist du mit dieser Seite (nicht mit der Immobilie selbst)?




