

P & P Massivhaus GmbH
Herr Mark Pieslinger
087 ···
Nr. anzeigenPreise & Kosten
Provision für Käufer
provisionsfrei
Lage
In diesem Angebot ist kein Grundstück enthalten.
Wir erstellen das Haus gerne auf Ihrem eigenen Bauland oder unterstützen Sie kompetent bei der Suche nach einem passenden Grundstück für Ihr Bauvorhaben.
Das Haus
Baujahr
Neubau
Energie & Heizung
Warum sehe ich diese Anzeige? – Du siehst diese Anzeige basierend auf Ihrer Navigation auf unserer Website und den Suchkriterien, die du verwendet hast.
Energieausweistyp
Bedarfsausweis
Gebäudetyp
Wohngebäude
Gültigkeit
seit 01.01.2025
Effizienzklasse
A+
Endenergiebedarf
20,00 kWh/(m²·a)
Weitere Energiedaten
Haustyp
KfW 55, Massivhaus
Energieträger
Elektro
Heizungsart
Fußbodenheizung, Luft-/Wasser-Wärmepumpe
Details
Objektbeschreibung
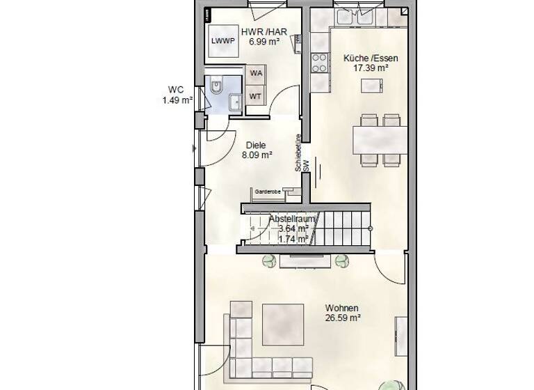
Die Doppelhaushälfte „Luzern“ überzeugt durch ein durchdachtes offenes Raumkonzept, das von fühlbarer Helligkeit und modernem Wohndesign geprägt ist. Auf einer Wohnfläche von rund 142 Quadratmetern finden sich großzügig geschnittene Räume, die miteinander fließend verbunden sind und so eine klare, zeitgemäße Struktur schaffen...
Weitere Informationen
Doppelhaus Luzern
Neubau-Doppelhaus Typ KfW 55
Bauweise:
Hochwertige Massivbauweise in moderner, langlebiger Architektur mit Fokus auf Energieeffizienz.
Grundriss:
Offenes, durchdachtes Konzept und flexible...
Anbieter der Immobilie
P & P Massivhaus GmbH
Mariakirchener Straße 16, 94424 Arnstorf

Online-ID: 2l2ae58
Finde Angebote wie dieses
Hier geht es zu unserem Impressum, den Allgemeinen Geschäftsbedingungen, den Hinweisen zum Datenschutz und nutzungsbasierter Online-Werbung.