Version: 8.24.0Navigation überspringen
Mietkosten auf Anfrage
9.385 m² Lagerfläche  •  teilbar ab 9.385 m²
Immowelt logo

Lagerhalle zur Miete • provisionsfrei
Mietkosten auf Anfrage
9.385 m² Lagerfläche  •  teilbar ab 9.385 m²

PROVISIONSFREI: Ihr neues Lager in Aachen | Rampen | ebenerdige Tore | RUHR REAL

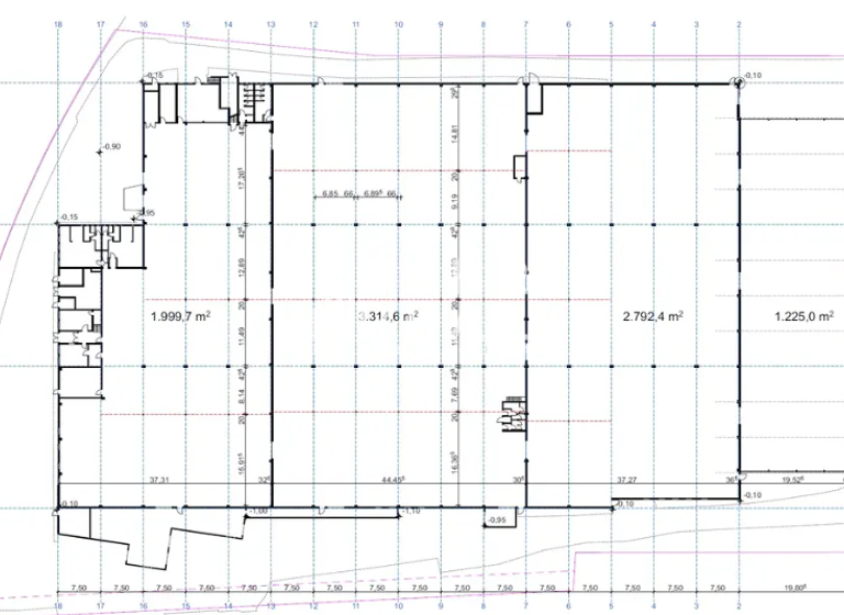
Diese Lager- und Produktionsfläche befindet sich auf einem ca. 15.250 m² großem Grundstück, welchem komplett umzäunt ist. Das Objekt ist freistehend und kann mit bis zu 40t-LKW umfahren werden. Die ca. 9.385 m² Hallenfläche ist in 4 Brandabschnitte unterteilt, welche untereinander durch mehrere Tore verbunden sind, verfügen über eine Deckenhöhe von ca. 5,50-6,00 m UKB und sind mit einer RWA ausgestattet. 2023 wurde das Gebäude komplett modernisiert und das Dach wurde erneuert, ebenfalls wurde eine PV-Anlage auf dem Dach installiert, welche eine Leistung von 1 Megawatt Peak hervorbringt. Die Andienung erfolgt über 5 (beheizte) Rampen sowie über 4 ebenerdige Rolltore. Zur Lagerfläche gehören ebenso ca. 317 m² Büro-, 367 m² Sozialfläche und ca. 87 m² Technikräume. Die Bodentraglast beträgt bei den Hallen 1-3 liegt bei ca. 15t/ m², Halle 4 hat eine Bodentraglast von ca. 5t/ m².

Eine Trafostation mit einer Leistung von 1.200 kW ist auch vorhanden. Im Trafo sind zwei NH-3-Trenner eingebaut, pro Trenner sind 630A möglich. Die Maximalleistung beträgt ca. 700-750 kW, mit den vorhandenen Kabeln können 280 kW abgerufen werden (Stand 2025).

Das Objekt wird ebenfalls zum Verkauf angeboten. Bei Bedarf stellen wir Ihnen gerne weitere Informationen zur Verfügung.

Merkmale

  • Bezug: nach Vereinbarung
  • 30 Stellplätze: Außen-Stellplatz
  • Laderampe
  • LKW-Zufahrt
  • Bodenbelag: Estrich
. 5 Rampen (beheizter Bereich)
. 4 ebenerdige Tore
. PV-Anlage
. Trafostation (1.200 kVA)
. umzäunt & umfahrbar

Grundrisse

Grundrisse
1 / 1

Realisiere Dein Projekt

Bausubstanz und Energie

Der Anbieter hat keine Informationen zum Energieverbrauch bereit gestellt.
  • EnergieträgerGas
Immowelt logo

Mietkosten

Miete auf Anfrage
Provision für Mieter
provisionsfrei; 3-4 Nettomonatsmieten
Bei Verträgen bis zu fünf Jahren Laufzeit ist ein Honorar von 3 Nettomonatsmieten vom Mieter an RUHR REAL zahlbar; bei Laufzeiten bis zu zehn Jahren werden 4 Nettomonatsmieten fällig. Hinzu kommt die jeweils gültige Umsatzsteuer.
Kaution
keine Angabe

Lage

address-icon
Aachen (52070)
Der Anbieter hat die genaue Adresse nicht freigegeben
Aachen ist eine Großstadt in Nordrhein-Westfalen an der Landesgrenze zu den Niederlanden und zu Belgien. Aachen verfügt über optimal regionale, als auch überregionale Anbindungen. Die Grenze zu den Niederlanden erreicht man in nur 10 Minuten, die Metropole Rhein-Ruhr ist in unter einer Stunde erreicht. Die Liegenschaft selbst befindet sich im Gewerbegebiet im Aachener Norden und ist unweit der Autobahnauffahrt zur A4, A554 und A44. Eine Bushaltestelle ist fußläufig in ca. 2 Minuten erreicht, Restaurants und Geschäfte des täglichen Bedarfs sind ebenfalls in fußläufiger Nähe. Der Aachener Hauptbahnhof ist in weniger als 10 Minuten befahren.

Weitere Informationen

Sonstiges Es gelten ausschließlich unsere AGB (www.ruhr-real.de/agb). Da der Eigentümer ausschließlich Lager/Logistik, Produktion und Light Industrial als Nutzung wünscht, bitten wir Sie zu berücksichtigen, dass Anfragen zu folgenden Nutzungen nicht bearbeitet werden können: Veranstaltungen/Events, Gastronomie/Vergnügungsstätten, religiöse Einrichtungen sowie Sport- und Spielstätten. Wir möchten Sie darauf hinweisen, dass die Angaben ausschließlich auf den uns vom Eigentümer übermittelten Unterlagen und Informationen basieren. Für Richtigkeit und Vollständigkeit übernehmen wir keine Gewähr. Zwischenvermietung vorbehalten.

Weitere Services

Lust auf eine Besichtigung?
Eine Frage zur Immobilie?
Nachricht hinzufügen
Mit der Nutzung der oben angegebenen Telefonnummer oder durch Klicken auf „Kontaktieren“ akzeptierst Du die Allgemeinen Nutzungsbedingungen, denen Du jederzeit widersprechen kannst. Weitere Informationen zum Datenschutz

Über den Anbieter

RUHR REAL GmbH
RUHR REAL GmbHMaklerbüro
Holsterhauser Platz 2, 45147 Essen
partner badge
6 Jahre Partnerschaft
Herr Felix LudwigDein Kontakt
Online-ID: 2mccf5x
Referenznummer: 3897/E3
RUHR REAL GmbH
RUHR REAL GmbH
Nachricht hinzufügen
Mit der Nutzung der oben angegebenen Telefonnummer oder durch Klicken auf „Kontaktieren“ akzeptierst Du die Allgemeinen Nutzungsbedingungen, denen Du jederzeit widersprechen kannst. Weitere Informationen zum Datenschutz
Wie zufrieden bist du mit dieser Seite (nicht mit der Immobilie selbst)?