Version: 8.22.5Navigation überspringen
ohne-makler.net - Immobilien selbst vermarkten
545 €
50 m² Bürofläche

Bürofläche zur Miete • provisionsfrei
545 €
Nettomiete zzgl. NK
50 m² Bürofläche

Gewerbeeinheit / Lokal / Büro / Gastro / kleine Praxis / Einzelhandel

Zur Vermietung gelangt eine charmante, gut sichtbare Gewerbefläche direkt am Hauptplatz von Großweikersdorf und ebenfalls nur wenige Meter [ ca 150m] von der Horner Bundesstraße (B4) entfernt.
Die Einheit liegt im Erdgeschoss eines gepflegten Altbaus und überzeugt durch eine großzügige Raumhöhe, viel Tageslicht und eine breite Schaufensterfront.

Das Objekt eignet sich ideal für:

_kleine Praxis/Ordination
_Büro oder Agentur
_Atelier oder Ausstellungsraum
_kleines Geschäft / Verkaufsfläche
_Dienstleistungsbetrieb (z. B. Steuerberatung, Maßschneiderei, Kreativstudio)
_Friseur- oder Kosmetikstudio

Merkmale

  • Bezug: nach Absprache
  • Erdgeschoss
  • Bodenbelag: Laminat
Gäste-WC, Laminat

Bemerkungen:
Das Lokal befindet sich in einem gepflegten, funktionsfähigen Zustand und wird vor Übergabe technisch und optisch aufbereitet.
Geplant ist eine neutrale Grundadaptierung, sodass Sie Ihre eigenen Ideen perfekt umsetzen können.

Ausstattungsmerkmale:

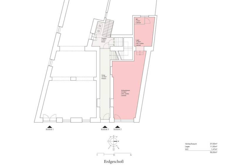
_ca. 50 m² offener, heller Raum
_Schaufensterfront mit hoher Sichtbarkeit
_Toilette und Waschgelegenheit vorhanden
_Strom- und Wasseranschluss, Drehstrom möglich
_Raumhöhe ca. 2,8 m
_Heizung: elektrische Anlage (neu)
_Park- und Ladezonen in unmittelbarer Nähe

Je nach Nutzung können kleine Anpassungen in Abstimmung mit dem Vermieter erfolgen.
Eine komplette Sanierung oder Ausstattungserweiterung ist nicht Bestandteil der Miete, kann jedoch nach Vereinbarung durch den Mieter umgesetzt werden.

Grundrisse

Grundrisse
1 / 1

Realisiere Dein Projekt

Bausubstanz und Energie

Der Anbieter hat keine Informationen zum Energieverbrauch bereit gestellt.
  • EnergieträgerElektro
MediumRectangleTop

Mietkosten

Nettokaltmiete zzgl. Betriebskosten
545 €
Provision für Mieter
provisionsfrei; keine Provision, courtagefrei
Kaution
keine Angabe
Weitere Preisinformationen
Nettokaltmiete: 545,00 EUR

Lage

address-icon
Hauptplatz 20Großweikersdorf (3701)
Die Immobilie liegt direkt am Hauptplatz von Großweikersdorf, inmitten eines lebendigen Ortszentrums mit Nahversorgern, Apotheke, Ärzten und Banken.
Die B4 ist in 150 m erreichbar, der Bahnhof in wenigen Gehminuten.
Ein idealer Standort für Betriebe, die Zentralität, Sichtbarkeit und Erreichbarkeit schätzen.
Infrastruktur (im Umkreis von 5 km):
Apotheke, Lebensmittel-Discount, Allgemeinmediziner, Kindergarten, Grundschule, Hauptschule, Gesamtschule, Öffentliche Verkehrsmittel

Weitere Informationen

Sonstiges Heizungsart: Sonstiges (s. Text)
Energieträger: Strom
Energieausweis nicht vorhanden

Dieses Lokal bietet mehr Potenzial, als man auf den ersten Blick erkennt.
Die klare Struktur, die gute Belichtung und der flexible Grundriss machen es zu einer vielseitigen Basis für kreative oder dienstleistungsorientierte Nutzungen.
Wer Eigeninitiative mitbringt, erhält hier eine zentrale Fläche mit Charakter zu einem fairen Preisniveau.


_Gesamtmiete: € 545 netto / Monat (inkl. Betriebskosten, exkl. Strom)
_Umsatzsteuer: zzgl. 20 %
_Kaution: 3 Bruttomonatsmieten bzw. nach Vereinbarung
_Verfügbarkeit: nach Vereinbarung (kurzfristig möglich)
_Befristung: nach Absprache (langfristige Mietverhältnisse bevorzugt)

Makleranfragen nicht erwünscht.

ohne-makler (OM) ist weder Anbieter noch Vermittler der Immobilie. OM betreibt eine Plattform für Immobilieneigentümer, die unter anderem die gleichzeitige Veröffentlichung einzelner Inserate auf mehreren Immobilienportalen ermöglicht. Die Inhalte dieser Inserate werden ausschließlich von Dritten verantwortet. Für die Richtigkeit, Vollständigkeit oder Rechtmäßigkeit der Angaben übernimmt OM keine Haftung. Hinweise auf mögliche Rechtsverstöße können jederzeit gemeldet werden und werden nach Prüfung umgehend bearbeitet. Stichworte Gesamtfläche: 50,00 m², Anzahl der separaten WCs: 1, Bundesland: Niederösterreich

Weitere Services

Lust auf eine Besichtigung?
Eine Frage zur Immobilie?
Nachricht hinzufügen
Mit der Nutzung der oben angegebenen Telefonnummer oder durch Klicken auf „Kontaktieren“ akzeptierst Du die Allgemeinen Nutzungsbedingungen, denen Du jederzeit widersprechen kannst. Weitere Informationen zum Datenschutz

Über den Anbieter

Humboldtstr. 25 A, 21509 Glinde
partner badge
Partnerschaft
Privat von Manfred WalzerDein Kontakt
Keine Telefonnummer hinterlegt
Keine Telefonnummer hinterlegt

Weitere Unterlagen

Online-ID: 2nbea5f
Referenznummer: 404408
ohne-makler.net - Immobilien selbst vermarkten
ohne-makler.net - Immobilien selbst vermarkten
Bewertung: 4 von 5 Sternen
Nachricht hinzufügen
Mit der Nutzung der oben angegebenen Telefonnummer oder durch Klicken auf „Kontaktieren“ akzeptierst Du die Allgemeinen Nutzungsbedingungen, denen Du jederzeit widersprechen kannst. Weitere Informationen zum Datenschutz
MediumRectangleTop
MediumRectangleBottom
MediumRectangleTop
Wie zufrieden bist du mit dieser Seite (nicht mit der Immobilie selbst)?