Version: 8.22.6Navigation überspringen
HTN Immobilien Management GmbH Exklusivpartner von FALC Immobilien Solingen
12 €
280 m² Bürofläche

Bürofläche zur Miete • provisionsfrei
12 €
/m²
280 m² Bürofläche

Attraktive Büroflächen am Piepersberg

***Willkommen in Ihrer neuen Bürofläche - Ideal für Ihr wachsendes Unternehmen oder moderne Co-Working-Spaces.***

Diese attraktive Bürofläche im Gewerbegebiet Piepersberg erstreckt sich über zwei Stockwerke mit einer Gesamtfläche von ca. 280 m². Das Objekt überzeugt durch funktionale Raumaufteilung, hochwertige Ausstattung und eine hervorragende Lage.

Erdgeschoss mit Empfang ca. 181 m²:
Im Eingangsbereich befindet sich das großzügige Foyer, dass mit einer eigenen Rezeption und einem einladenden Wartebereich ausgestattet ist - ideal für den Empfang Ihrer Kunden und Geschäftspartner.

Weiterhin finden Sie im Erdgeschoss ein Büro mit Platz für mehrere Arbeitsplätze sowie zwei flexibel nutzbare Besprechungsräume, die auch als Seminarräume genutzt werden können.

Darüber hinaus bietet das Erdgeschoss eine moderne Küchenzeile sowie getrennte Damen- und Herren-WCs.


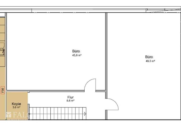
Obergeschoss ca. 103 m²:
Hier befinden sich zwei großzügige Büroräume. Besonders hervorzuheben ist der kleinere der beiden Räume, der über einen abgetrennten Glasbereich verfügt - ideal als zusätzliches Besprechungszimmer oder Einzelbüro.

Die detaillierte Aufteilung der Flächen entnehmen Sie bitte den beigefügten Grundrissen.

Ihre Vorteile:
Diese Bürofläche ist optimal für Unternehmen, die auf der Suche nach einem repräsentativen Standort mit ausreichend Platz und flexiblen Nutzungsmöglichkeiten sind. Auch Co-Working-Modelle lassen sich hier ideal umsetzen, da Gemeinschaftsbereiche wie Küche und WCs zur Verfügung stehen.

Das Objekt ist sofort bezugsfertig, die Räume sind teilweise möbliert und sofort einsatzbereit. Sie können direkt am neuen Standort Ihre Arbeit aufnehmen und Kunden in einer professionellen Umgebung empfangen.

Die Miete und Nebenkosten wurden mit dem Nettobetrag angegeben und erhöhen sich um die zur Zeit gültige MwSt. in Höhe von 19 %.

Vereinbaren Sie noch heute einen Besichtigungstermin, um die Möglichkeiten dieser Bürofläche selbst zu entdecken!

Merkmale

  • Einbauküche
  • Gäste-WC
  • Bodenbelag: Fliesen

Grundrisse

Grundrisse
1 / 2

Realisiere Dein Projekt

Bausubstanz und Energie

Energieausweis

Endenergiebedarf (Wärme)

  • Baujahr2022
MediumRectangleTop

Mietkosten

Warmmiete
4.060 €
Nettomiete zzgl. Nebenkosten
12 €/m²
3.360 €
Heizkosten
in Warmmiete enthalten
Provision für Mieter
provisionsfrei; 0,00
Kaution
3 MM

Lage

address-icon
GräfrathSolingen (42653)
Der Anbieter hat die genaue Adresse nicht freigegeben
1A-Lage Die Bürofläche liegt im Gewerbegebiet Piepersberg in Solingen, einem gefragten Standort für Unternehmen unterschiedlichster Branchen.

Die hervorragende Verkehrsanbindung macht diesen Standort besonders attraktiv: Die Autobahn A46 nur wenige Autominuten entfernt und ermöglicht eine schnelle Verbindung zu regionalen und überregionalen Zielen. Auch der öffentliche Nahverkehr ist durch eine nahegelegene Bushaltestelle bequem erreichbar.

Das Gebiet selbst zeichnet sich durch eine lebendige Unternehmenslandschaft aus. Die Mischung aus verschiedenen Branchen bietet zahlreiche Möglichkeiten für Kooperationen und geschäftliche Synergien. In der Umgebung befinden sich zudem weitere Gewerbe- und Industrieareale, die die wirtschaftliche Attraktivität der Region zusätzlich stärken.

Unternehmen profitieren hier von einer Umgebung, die Wachstum und Effizienz gleichermaßen unterstützt.

Weitere Informationen

Sonstiges Das Kaufangebot wurde nach Angaben und Unterlagen des Verkäufers erstellt. Eine Gewähr für Vollständigkeit und Richtigkeit können wir nicht übernehmen.

Haftungsausschluss:
Wir bemühen uns, möglichst vollständige und richtige Angaben zu erhalten und weiterzuleiten. Eine Haftung für die Richtigkeit, Vollständigkeit und Aktualität der Angaben können wir jedoch nicht übernehmen.
Änderungen, Irrtum und Zwischenverkauf vorbehalten.

Hinweis:
Die im Exposé evtl. abgebildeten Einrichtungsgegenstände sind nicht Bestandteil des Angebotes, es sei denn, es wurde besonders darauf hingewiesen.

Sie überlegen Ihre Immobilie zu verkaufen?

Als lokale Immobilienexperten bieten wir Ihnen unseren kompletten Service, der Sie als Verkäufer von Beginn an bis hin zum Notartermin begleitet.
Mit unserer langjährigen Erfahrung und der hervorragenden Kenntnis des lokalen Immobilienmarktes möchten wir gerne auch Sie beim Immobilienverkauf unterstützen.

Wir sind stolz, durch unser Engagement in den führenden Internetportalen überdurchschnittlich gute Bewertungen erzielt zu haben. Die Fachzeitschrift "Focus-Spezial" hat unser Unternehmen seit 2013 durchgehend als eines der besten Immobilienunternehmen in Deutschland ausgezeichnet.

Als FALC Exklusivpartner bieten wir unseren Kunden noch mehr Vorteile. Wir sind jetzt Teil eines Immobiliennetzwerkes mit mehr als 150 Partnern an über 100 Standorten in Deutschland und Europa. So können wir Ihnen über 1.000 Immobilien anbieten, national wie international. In unserer Datenbank warten weit über 50.000 Interessenten auf Ihre Immobilie.

Gerne verkaufen wir mit Kompetenz und Leidenschaft auch Ihre Immobilie. Schenken Sie uns Ihr Vertrauen! Sie erreichen uns unter Tel : 0212 88 13 47 99

Interaktive Karte - https://app.areabutler.de/embed?token=9d782def7d3a61a49be5ae11fe7fb2587418ed8e8f7418806a20132ee56ab48348c2be4194d5db52a76993a281940ef35e30e7e5fef0e25fc507f46d&isAddressShown=false

FALC Exposé Homepage - https://www.falcimmo.de/immobilie/intern-4893534.html Stichworte Gesamtfläche: 280,00 m², Bundesland: Nordrhein-Westfalen, 2 Etagen

Weitere Services

Lust auf eine Besichtigung?
Eine Frage zur Immobilie?
Nachricht hinzufügen
Mit der Nutzung der oben angegebenen Telefonnummer oder durch Klicken auf „Kontaktieren“ akzeptierst Du die Allgemeinen Nutzungsbedingungen, denen Du jederzeit widersprechen kannst. Weitere Informationen zum Datenschutz

Über den Anbieter

Höher Straße 4, 42655 Solingen
partner badge
Partnerschaft
Frau Sabine LitteraDein Kontakt
Online-ID: 2ngk85e
Referenznummer: FALC-SL-80789
HTN Immobilien Management GmbH Exklusivpartner von FALC Immobilien Solingen
HTN Immobilien Management GmbH Exklusivpartner von FALC Immobilien Solingen
Nachricht hinzufügen
Mit der Nutzung der oben angegebenen Telefonnummer oder durch Klicken auf „Kontaktieren“ akzeptierst Du die Allgemeinen Nutzungsbedingungen, denen Du jederzeit widersprechen kannst. Weitere Informationen zum Datenschutz
MediumRectangleTop
MediumRectangleTop
Wie zufrieden bist du mit dieser Seite (nicht mit der Immobilie selbst)?