Version: 8.22.6Navigation überspringen
975.000 €
4 Zimmer  •  107,8 m²  •  3. Geschoss
Immowelt logo

Wohnung zum Kauf - Erstbezug • provisionsfrei
975000 €
9.044 €/m²
4 Zimmer  •  107,8 m²  •  3. Geschoss

Willkommen im LeopoldQuartier INVEST

LeopoldQuartier - Kapitalanlage in einer der gefragtesten Lagen Wiens

Das LeopoldQuartier verbindet höchste Bauqualität mit einem Standort, der sowohl für Investoren als auch für Mieter zu den begehrtesten Adressen Wiens zählt. Eingebettet zwischen Donaukanal, Augarten und dem 1. Bezirk bietet das Quartier urbane Lebensqualität im Grünen - ein Investment, das Nachhaltigkeit, Nachfrage und Wertbeständigkeit vereint.

 

Investment-Standort mit hohem Nachfragepotenzial

* Innenstadtnähe: Der Stephansdom, die Kärntner Straße und das Servitenviertel sind fußläufig erreichbar.
* Optimale Anbindung: In wenigen Minuten zur U4 Roßauer Lände, zum Hauptbahnhof und in nur 20 Autominuten zum Flughafen Wien.
* Attraktive Mieternachfrage: Durch die Nähe zu Universitäten, internationalen Unternehmen, Botschaften und Wiener Top-Arbeitgebern ist die Vermietbarkeit in dieser Lage hervorragend.
* Nachhaltige Wertentwicklung: Premium-Lage, ökologisch zukunftsweisende Bauweise und eine DGNB-Gold-Zertifizierung sichern langfristige Attraktivität für Anleger.

 

Architektur & Nachhaltigkeit - Zukunftssicherheit fürs Investment

Das LeopoldQuartier ist Europas erstes Stadtquartier in Holz-Hybrid-Bauweise und setzt Maßstäbe für ökologisches Bauen:

* Bis zu 80 % weniger CO²-Ausstoß gegenüber Massivbau, rund 4.000 t gebundenes CO²
* Geothermie: 200 Erdsonden mit ca. 4.800 MWh Heiz- und Kühlenergie jährlich
* Photovoltaik: über 1.000 Paneele mit 425 kWp sorgen für eine zusätzliche Energieversorgung.
* DGNB-Gold-Vorzertifizierung für das gesamte Quartier

 

Das bedeutet für Investoren: geringere Betriebskosten, nachhaltige Positionierung am Markt und langfristige Wettbewerbsvorteile bei Vermietung.

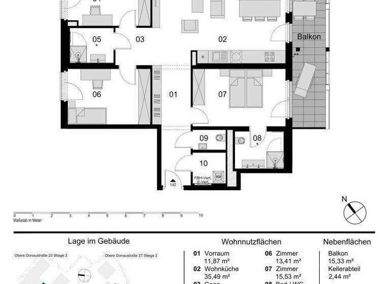
* 253 Wohnungen, davon 178 in der Oberen Donaustraße 23
* Wohnflächen von 35-108 m² - ideal für Single-, Pärchen- und Familienhaushalte
* Flexible Grundrisse von smarten 1,5-Zimmer-Einheiten bis zu familiengerechten 4-Zimmer-Wohnungen
* Jede Einheit mit Balkon, Loggia, Terrasse oder Eigengarten

 

Ausstattung mit Vermietungsvorteil

* Parkett- und Feinsteinzeugböden
* Holzoberflächen & Brettsperrholzdecken
* Fußbodenheizung & -temperierung
* Außenliegender Sonnenschutz (Raffstores, EG mit Rollläden)
* Moderne Lüftungssysteme mit Fensterspaltlüftern

 

Kaufpreise der Vorsorgewohnungen

von EUR 286.000,- bis EUR 1.238.000,- netto zzgl. 20% USt.

Zu erwartender Mietertrag

von ca. EUR 17,50  bis EUR 22,50 netto/m²

 

Stellplätze können für 3-4 Zimmerwohnungen um € 40.000,00 netto angekauft werden.

Provisionsfrei für den Käufer!
Fertigstellung: voraussichtlich Q2/2026

Bei diesem Angebot handelt es sich um eine Vorsorgewohnung, die zu Vermietungszwecken erworben wird. Der angegebene Kaufpreis versteht sich daher zzgl. 20% USt. Diese Daten sind vorbehaltlich möglicher Änderungen.

 

Wir weisen darauf hin, dass zwischen dem Vermittler und dem zu vermittelnden Dritten ein familiäres oder wirtschaftliches Naheverhältnis besteht.

Der Vermittler ist als Doppelmakler tätig.

Infrastruktur / Entfernungen

Gesundheit
Arzt <500m
Apotheke <500m
Klinik <500m
Krankenhaus <1.250m

Kinder & Schulen
Schule <500m
Kindergarten <250m
Universität <500m
Höhere Schule <500m

Nahversorgung
Supermarkt <250m
Bäckerei <500m
Einkaufszentrum <2.000m

Sonstige
Geldautomat <250m
Bank <750m
Post <750m
Polizei <750m

Verkehr
Bus <250m
U-Bahn <250m
Straßenbahn <500m
Bahnhof <250m
Autobahnanschluss <2.000m

Angaben Entfernung Luftlinie / Quelle: OpenStreetMap

Merkmale

  • Bezug: Q2/2026
  • 3. Geschoss
  • offene Küche
  • Personenaufzug
  • Gäste-WC
  • Balkon
  • Barrierefrei
  • Bad mit Dusche

Grundrisse

Grundrisse
1 / 1

Realisiere Dein Projekt

Bausubstanz und Energie

Heizwärmebedarf (HWB)

A

Gesamtenergieeffizienz (fGEE)

A+
  • Baujahr2026
  • Zustand der ImmobilieNeubau, Erstbezug
  • HeizungsartFußbodenheizung
  • EnergieträgerErdwärme
Immowelt logo

Preisdetails

Kaufpreis
975000 €
9.043,69 €/m²
Provision für Käufer
provisionsfrei; Provision bezahlt der Abgeber.

Lage

address-icon
Obere DonaustraßeWien (1020)

Weitere Informationen

Stichworte Tiefgarage vorhanden, Süd-Ost-Balkon/Terrasse, Fahrradraum, Anzahl der Badezimmer: 2, Anzahl der separaten WCs: 2, Anzahl Balkone: 1, Balkon-Terrassen-Fläche: 15,33 m², Bundesland: Wien

Weitere Services

Lust auf eine Besichtigung?
Eine Frage zur Immobilie?
Nachricht hinzufügen
Mit der Nutzung der oben angegebenen Telefonnummer oder durch Klicken auf „Kontaktieren“ akzeptierst Du die Allgemeinen Nutzungsbedingungen, denen Du jederzeit widersprechen kannst. Weitere Informationen zum Datenschutz

Über den Anbieter

Prinz-Eugen-Straße 8-10, 1040 WIEN
partner badge
10 Jahre Partnerschaft
Frau Andrea PÖCHHACKER; MScDein Kontakt

Weitere Unterlagen

Online-ID: 2mxv85z
Referenznummer: OBGC2025092315544977223cc582ad8
EHL Immobilien GmbH
EHL Immobilien GmbH
Bewertung: 4,5 von 5 Sternen
Nachricht hinzufügen
Mit der Nutzung der oben angegebenen Telefonnummer oder durch Klicken auf „Kontaktieren“ akzeptierst Du die Allgemeinen Nutzungsbedingungen, denen Du jederzeit widersprechen kannst. Weitere Informationen zum Datenschutz
Wie zufrieden bist du mit dieser Seite (nicht mit der Immobilie selbst)?