Die Postelwitzer Str. 2 liegt in unmittelbarer Nähe zur Zwinglistraße, welche vielfältige Einkaufsmöglichkeiten bietet. Man kann also einen Spaziergang mit kleinen Besorgungen verbinden, aber auch der Wocheneinkauf kann hier, ohne PKW, erledigt werden. Ärzte, Einrichtungen der Volkssolidarität, aber auch der öffentliche Nahverkehr sind auf kurzem Weg zu erreichen. Selbst der Große Garten, die grüne Lunge Dresdens, ist nicht weit entfernt. Ein Aufenthalt dort ist zu jeder Jahreszeit schön.
Sie suchen eine Wohnung, für sich oder Angehörige, in der ein ruhiges und angenehmes Wohnen möglich ist. Dann sind Sie hier richtig. In diesem Objekt haben Sie die Möglichkeit, bei Bedarf, die Leistungen der Volksolidarität zu buchen und in Anspruch zu nehmen.
Weitere Informationen
Sonstiges
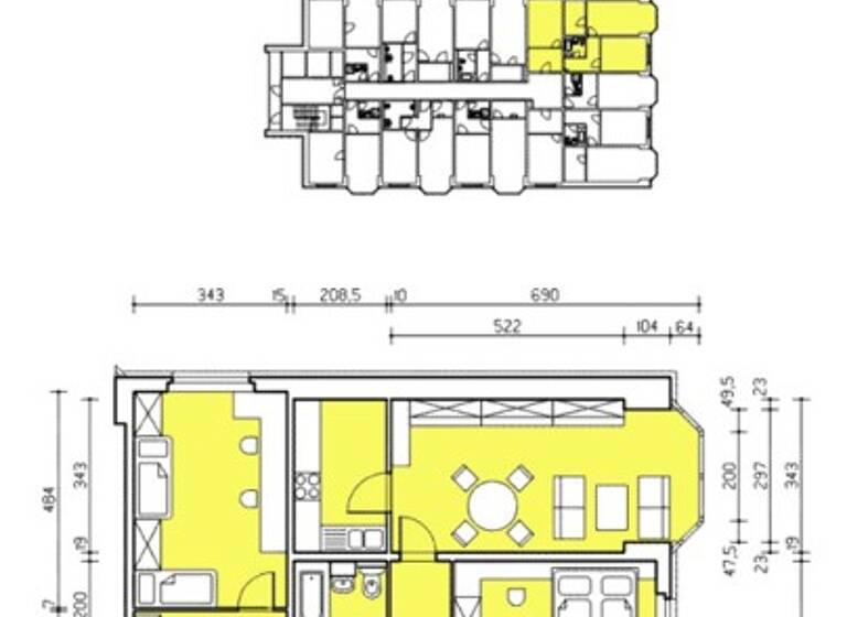
Hinweise darüber, wie die Vonovia Ihre personenbezogenen Daten als Interessent verarbeitet, erhalten Sie unter www.vonovia.com/datenschutz. Alle Angaben in diesem Exposé wurden sorgfältig und so vollständig wie möglich gemacht. Gleichwohl kann das Vorhandensein von Fehlern nicht ausgeschlossen werden. Die Angaben in diesem Exposé erfolgen daher ohne jede Gewähr. Maßgeblich sind die im Mietvertrag geschlossenen Vereinbarungen. Soweit die Grundrissgrafiken Maßangaben und Einrichtungen enthalten, wird auch für diese jegliche Haftung ausgeschlossen. Mietverhandlungen sind ausschließlich über den benannten Ansprechpartner zu führen. Mietpreisänderungen bleiben vorbehalten.
Weitere Immobilienangebote finden Sie unter www.vonovia.de und in der Mein Vonovia App.