Version: 8.26.0Navigation überspringen
16 €
2.989,1 m² Bürofläche  •  teilbar ab 2.989,1 m²
Immowelt logo

Bürofläche zur Miete • provisionsfrei
16 €
/m²
2.989,1 m² Bürofläche  •  teilbar ab 2.989,1 m²

BUERO.flächen in Leipzig - Plagwitz

Das Areal der historischen Gewerbehöfe erstreckt sich auf 16 ha - überwiegend Gewerbefläche, welche mit Hallen, Bürogebäuden, Parkplätzen und Einkaufscentern bebaut ist. Aktuell sind auf dem Gelände eine Vielzahl von Gewerbetreibenden, Einzelhändlern, mittelständischen Handwerksbetrieben sowie Bildungseinrichtungen angesiedelt. Das Gebiet verfügt über großes Potenzial zur Entwicklung von Einzelhandelsflächen, Lagerflächen mit angeschlossenen Büros, Flächen für Gastronomie, Business-Center etc. In der Weißenfelser Straße wird ein moderner Neubau errichtet. Auf 5 Geschossen entstehen Büroflächen, die nach dem Raumprofil des Nutzers ausgebaut und ausgestattet werden. Im Gebäude stehen folgende Flächen zur Anmietung zur Verfügung:

1. Obergeschoss mit ca. 747,27 m²
2. Obergeschoss mit ca. 747,27 m²
3. Obergeschoss mit ca. 747,27 m²
4. Obergeschoss mit ca. 747,27 m²

Die Mietflächen können etagenweise angemietet werden. PKW Stellplätze für Mitarbeiter und Kunden können in dem nahe gelegen Parkhaus angemietet werden.

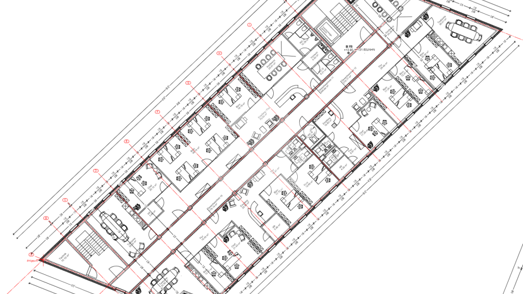
Grundrisse

Verschaffe dir einen genauen Überblick über die Raumaufteilung.selection_property_house-icon

Bausubstanz und Energie

Möchtest du Details zum Energieverbrauch?info_energy_calculation-icon
Immowelt logo

Mietkosten

Monatliche Miete
16 €/m²
Zusätzliche Kosten
Heizkosten
Provision für Mieter
provisionsfrei
Kaution
keine Angabe

Lage

address-icon
Weißenfelser Straße 75-77PlagwitzLeipzig (04229)
Die "Plagwitzer Höfe" befinden sich etwa 10 Autominuten von Leipzigs Innenstadt entfernt. Die A9, die A14 und die Neue Messe erreicht man in ca. 20 Minuten, den Flughafen in ca. 30 Minuten. Es liegt eine gute Anbindung an den ÖPNV vor. Das Gewerbegebiet ist somit optimal an die Infrastruktur angeschlossen. Der (Aus-)Bau der Mieteinheiten entsprechend der betriebsorganisatorischen Anforderungen des Mieters ist möglich.

Weitere Informationen

Sonstiges Der angegebene Mietpreis richtet sich nach Ausstattung, Lage im Gebäude sowie Mietvertragslaufzeit und liegt zwischen 16,00 EUR/m² - 18,00 EUR/m² zzgl. Nebenkosten.

Weitere Services

Lust auf eine Besichtigung?
Eine Frage zur Immobilie?
Mit einer persönlichen Nachricht hast du bessere Chancen auf eine Antwort.
Mit der Nutzung der oben angegebenen Telefonnummer oder durch Klicken auf „Kontaktieren“ akzeptierst Du die Allgemeinen Nutzungsbedingungen, denen Du jederzeit widersprechen kannst. Weitere Informationen zum Datenschutz

Über den Anbieter

Markt 9, 04109 Leipzig
Frau Kathrin Oldenburg
Frau Kathrin OldenburgDein Kontakt
Online-ID: 24GUVPSC7DE7
Referenznummer: 475/E8/Eh1
Wie zufrieden bist du mit dieser Seite (nicht mit der Immobilie selbst)?