

Wohnung zur Miete1112.53 €Gesamtmiete exkl. BK4 Zimmer • 92,1 m² • frei ab 31.03.2026
1112.53 €
Gesamtmiete exkl. BK
4 Zimmer • 92,1 m² • frei ab 31.03.2026
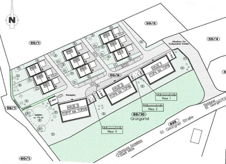
SCHEIBBS XVI/2, geförderte Mietwohnung mit Kaufoption, 1/5, 1000/00010330/00001105
Merkmale
- frei ab 31.03.2026
- Stellplatz
Grundrisse
Grundrisse
1 / 2
Realisiere Dein Projekt
Bausubstanz und Energie
Der Anbieter hat keine Informationen zum Energieverbrauch bereit gestellt.
- Baujahr2011
- Zustand der Immobilieneuwertig
Mietkosten
Gesamtmiete
1.112,53 €
Nettokaltmiete
nicht angegeben
Kaution
keine Angabe
Weitere Preisinformationen
Finanzierungsbeitrag: EUR 16,199.83
Lage

Scheibbs (3270)
Der Anbieter hat die genaue Adresse nicht freigegeben
Weitere Informationen
Weitere Services
Lust auf eine Besichtigung?
Eine Frage zur Immobilie?
Ăśber den Anbieter
Siegfried Ludwig-Platz 1, 3100 ST. PĂ–LTEN

Herr RIEDMANN MarkusDein Kontakt
Online-ID: 2m46f5t
Referenznummer: 1000/00010330/00001105


Alpenland GemeinnĂĽtzige Bau-, Wohn- und Siedlungsgenossenschaft reg.Gen. m.b.H
Wie zufrieden bist du mit dieser Seite (nicht mit der Immobilie selbst)?

