Version: 8.22.4Navigation überspringen
J&P Immobilienmakler GmbH
613.000 €
2 Zimmer  •  51 m²  •  2. Geschoss

Wohnung zum Kauf
613000 €
12.022 €/m²
2 Zimmer  •  51 m²  •  2. Geschoss

Moderne 2-Zimmer-Oase in zentraler Lage

Direkt am Naschmarkt entstand das innovative und nachhaltige Projekt THE FUSION.
Das revitalisierte Biedermeierhaus beeindruckt nicht nur durch die prächtige Fassade, sondern auch durch die klassischen Rundbogenfenster und großzügigen Stiltüren. Es wurde höchster Wert auf ökologische, ökonomische sowie soziokulturelle und funktionale Qualität gelegt, welche durch die Verleihung des „DGNB-Zertifikates in Gold bestätigt wurde.

Entdecken Sie ein Zuhause mit unbegrenzten Möglichkeiten!

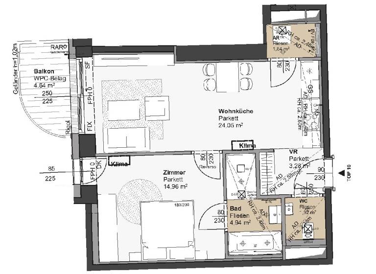
Diese Wohnung im zweiten Obergeschoss umfasst ein Schlafzimmer, eine Wohnküche mit Zugang zum Balkon, ein Badezimmer mit Dusche und modernen Verfliesungen, ein separates WC und einen Abstellraum. Außerdem befinden sich in beiden Räumen jeweils ein Klima und sorgt in den warmen Sommertagen für eine angenehme Atmosphäre. Diese Wohnung eignet sich perfekt für Paare und Singles.

Highlights der Ausstattung:
Hochwertiger Fischgrätparkett
Klimatisierte Wohnräume im letzten Regelgeschoß sowie im Dachgeschoß
Exquisite Sanitärobjekte in den Bädern
Edles, italienisches Feinsteinzeug
Gegensprechanlage mit Video-Option
Komfortable Paketboxanlage
Online-Hausverwaltung mittels PUCK-App

Lage
Der abwechslungsreiche 4. Bezirk zieht Bewohner wie Besucher magisch an und offeriert ihnen eine Welt voll überraschender Impressionen. Erstklassige Restaurants, schicke Bars, gemütliche Cafés, der Naschmarkt und wunderbare Plätze laden zum Verweilen ein.
Die Anbindung an das öffentliche Straßennetz ist durch die U4-Station "Kettenbrückengasse" sowie die Autobuslinie 59A bestens gegeben.


Ansprechpartner
Frau Doris Kurzweil || +43 699 17 55 66 16 || dk@jpi.at

Wir weisen darauf hin, dass wir mit dem Abgeber in ständiger Geschäftsbeziehung stehen und schon aus diesem Grund ein wirtschaftliches Naheverhältnis vorliegt.

Merkmale

  • Bezug: sofort
  • 2. Geschoss
  • Balkon

Grundrisse

Grundrisse
1 / 1

Realisiere Dein Projekt

Bausubstanz und Energie

Heizwärmebedarf (HWB)

A

Gesamtenergieeffizienz (fGEE)

A
  • Baujahr2023/24
  • Zustand der ImmobilieNeubau
  • HeizungsartFußbodenheizung
MediumRectangleTop

Preisdetails

Kaufpreis
613000 €
12.021,97 €/m²
Provision für Käufer
3%

Lage

address-icon
Kettenbrückengasse 22Wien (1040)

Weitere Informationen

Stichworte Anzahl der Badezimmer: 1, Anzahl der separaten WCs: 1, Anzahl Balkone: 1, Balkon-Terrassen-Fläche: 4,64 m², Wohnungsnr.: 10

Weitere Services

Lust auf eine Besichtigung?
Eine Frage zur Immobilie?
Nachricht hinzufügen
Mit der Nutzung der oben angegebenen Telefonnummer oder durch Klicken auf „Kontaktieren“ akzeptierst Du die Allgemeinen Nutzungsbedingungen, denen Du jederzeit widersprechen kannst. Weitere Informationen zum Datenschutz

Über den Anbieter

Lehargasse 7, 1060 WIEN
partner badge
Partnerschaft
Herr Hubert BodnerDein Kontakt

Weitere Unterlagen

Online-ID: 2ns9l5c
Referenznummer: 101/15908
J&P Immobilienmakler GmbH
J&P Immobilienmakler GmbH
Nachricht hinzufügen
Mit der Nutzung der oben angegebenen Telefonnummer oder durch Klicken auf „Kontaktieren“ akzeptierst Du die Allgemeinen Nutzungsbedingungen, denen Du jederzeit widersprechen kannst. Weitere Informationen zum Datenschutz
MediumRectangleTop
MediumRectangleBottom
MediumRectangleTop
Wie zufrieden bist du mit dieser Seite (nicht mit der Immobilie selbst)?