Version: 8.24.0Navigation überspringen
ohne-makler.net - Immobilien selbst vermarkten
560 €
3 Zimmer  •  70 m²  •  2. Geschoss

Wohnung zur Miete
560 €
3 Zimmer  •  70 m²  •  2. Geschoss

3,5 - Zimmer-Wohnung in Essen - Garage optional anmietbar

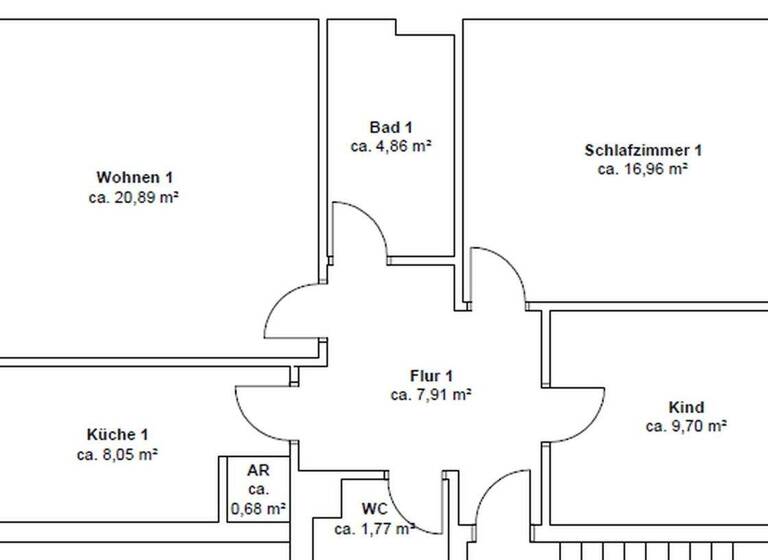
Zur Vermietung steht eine gepflegte 3,5 -Zimmer-Wohnung mit ca. 70 m² Wohnfläche in Essen (Levinstr. 52, 45356 Essen) in einem Mehrfamilienhaus (Baujahr 1980). Die Wohnung überzeugt durch einen praktischen Grundriss und eignet sich ideal für Singles, Paare oder eine kleine Familie.

Wohnungsdetails:

3,5 Zimmer (Wohnzimmer, Schlafzimmer, weiteres Zimmer z. B. Kinderzimmer/Büro)

ca. 70 m² Wohnfläche

separate Küche

Badezimmer

Baujahr: 1980

Energieausweis: Klasse D

Ab sofort verfügbar!

Merkmale

  • Bezug: sofort
  • Dachgeschoss, 2. Geschoss
  • Garage

Grundrisse

Grundrisse
1 / 2

Realisiere Dein Projekt

Bausubstanz und Energie

Energieausweis

D
  • Baujahr1980
  • Zustand der ImmobilieGepflegt
  • HeizungsartZentralheizung
  • EnergieträgerGas
MediumRectangleTop

Mietkosten

Warmmiete
820 €
Kaltmiete
8 €/m²
560 €
Nebenkosten
160 €
Zusätzliche Kosten
Heizkosten
100 €
Miete pro Stellplatz
80 €
Kaution
1000 €
Weitere Preisinformationen
1 Garagenstellplatz, Miete: 80,00 EUR
Nettokaltmiete: 560,00 EUR

Lage

address-icon
Levinstr. 52GerschedeEssen (45356)
Lage:
Die Wohnung befindet sich in Essen (Levinstr. 52, 45356). Eine Bushaltestelle liegt direkt vor der Tür, zudem bestehen gute Anbindungen an Einkaufsmöglichkeiten, ÖPNV sowie wichtige Verkehrsachsen. Einrichtungen des täglichen Bedarfs sind schnell erreichbar.

Sonstiges:
Besichtigungen sind nach Absprache möglich. Bitte senden Sie bei Interesse eine kurze Nachricht mit Personenzahl, Beruf/Arbeitsverhältnis und gewünschtem Einzugstermin.

Weitere Informationen

Sonstiges Heizungsart: Zentralheizung
Energieträger: Gas


Makleranfragen nicht erwünscht. Nach § 7 UWG sind unaufgeforderte Kontaktaufnahmen durch Makler ohne ausdrückliche Einwilligung des Empfängers verboten!

ohne-makler (OM) ist weder Anbieter noch Vermittler der Immobilie. OM betreibt eine Plattform für Immobilieneigentümer, die unter anderem die gleichzeitige Veröffentlichung einzelner Inserate auf mehreren Immobilienportalen ermöglicht. Die Inhalte dieser Inserate werden ausschließlich von Dritten verantwortet. Für die Richtigkeit, Vollständigkeit oder Rechtmäßigkeit der Angaben übernimmt OM keine Haftung. Hinweise auf mögliche Rechtsverstöße können jederzeit gemeldet werden und werden nach Prüfung umgehend bearbeitet. Stichworte Garage vorhanden, Bundesland: Nordrhein-Westfalen, 3 Etagen

Weitere Services

Lust auf eine Besichtigung?
Eine Frage zur Immobilie?
Nachricht hinzufügen
Mit der Nutzung der oben angegebenen Telefonnummer oder durch Klicken auf „Kontaktieren“ akzeptierst Du die Allgemeinen Nutzungsbedingungen, denen Du jederzeit widersprechen kannst. Weitere Informationen zum Datenschutz

Über den Anbieter

Humboldtstr. 25 A, 21509 Glinde
partner badge
Partnerschaft
Privat vom EigentümerDein Kontakt
Keine Telefonnummer hinterlegt
Keine Telefonnummer hinterlegt
Online-ID: 2n7sb5m
Referenznummer: 431297
ohne-makler.net - Immobilien selbst vermarkten
ohne-makler.net - Immobilien selbst vermarkten
Nachricht hinzufügen
Mit der Nutzung der oben angegebenen Telefonnummer oder durch Klicken auf „Kontaktieren“ akzeptierst Du die Allgemeinen Nutzungsbedingungen, denen Du jederzeit widersprechen kannst. Weitere Informationen zum Datenschutz
MediumRectangleTop
MediumRectangleBottom
MediumRectangleTop
Wie zufrieden bist du mit dieser Seite (nicht mit der Immobilie selbst)?