Version: 8.25.1Navigation überspringen
D.E.I.N. Immobilien GmbH
749.000 €
125,1 m²

Reihenmittelhaus zum Kauf - Erstbezug
749000 €
5.987 €/m²
125,1 m²

INKLUSIVE KÜCHE! TRAUMHAFTES 5 ZIMMER REIHENHAUS MIT EIGENGARTEN UND STELLPLATZ NÄHE U6 PERFEKTASTRASSE!

INKL. KÜCHE!

++NEU++ EIGENGRUND!

Zum Verkauf gelangen drei ca. 122,69 m² bis ca. 133,36 m² große Reihenhäuser mit 5 bis 6 Zimmern und Freiflächen (Eigengarten, Terrasse) in ruhiger Lage nahe der U6 Station Perfektastraße. 

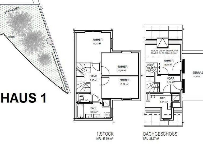
Raumaufteilung Haus 1:

EG: Vorraum, separate Toilette/Technik/Abstellraum, Wohnküche, Terrasse/Eigengarten, PKW Stellplatz.
OG: Flur, drei Zimmer, separate Toilette, Bad.
DG: Flur, Zimmer, Bad, Terrasse.

Alle Räume sind zentral begehbar.

Ausstattung:

In den Wohn- und Schlafräumen werden hochwertige Eichenparkettböden verlegt worden. Die Nassräume sind mit qualitativen Feinsteinzeugbelägen verfliest worden. Die Heizung erfolgt mittels einer Luftwärmepumpe (Fußbodenheizung). Die Kunststofffenster verfügen über einen integrierten Sonnenschutz. Eine Küche inkl. sämtlicher Geräte ist im Kaufpreis inkludiert. Im Garten ist ein Rollrasen verlegt. Jedem Haus ist ein PKW-Stellplatz zugewiesen.

VERFÜGBARE HÄUSER:

HAUS 1: Gesamtfläche ca. 234 m²

5 Zimmer, WNFL ca. 125,10 m², Garten ca. 73 m², Terrasse (EG) ca. 9 m², Terrasse (DG) ca. 15 m², PKW Stellplatz, ENDNUTZERPREIS EURO 749.000,00 Schlüsselfertig inkl. KÜCHE und inkl. PKW Stellplatz, HWB 43,1

HAUS 2: VERKAUFT!

HAUS 3: VERKAUFT!

Lage: 

Aufgrund der zentralen Lage stehen Ihnen zahlreiche Einkaufsmöglichkeiten (SPAR, LIDL) für den täglichen Lebensbedarf in Gehdistanz zur Verfügung. Die SCS ist nur 10 Autominuten entfernt. Die Anbindung an die öffentlichen Verkehrsmittel ist ebenfalls sehr gut. Innerhalb weniger Gehminuten stehen Ihnen die U6, Buslinien 61A und 64A sowie die Badner Bahn zu Verfügung.

Bezugsfertig: ab sofort
Vertragserrichtung: 1,5% vom Kaufpreis zzgl. 20 % USt + Barauslagen
Provision: 3% vom Kaufpreis zzgl. 20 % USt
 

Für weitere Fragen steht Ihnen Herr Stjepan Babic unter 0664 610 98 15 [tel:06646109815] oder per Mail an s.babic@deinimmobilien.at zur Verfügung.

Der Ordnung halber möchten wir festhalten, dass bei Erwerb oder Anmietung eines von uns namhaft gemachten Objektes, eine Vermittlungshonorar in der jeweils ausgewiesenen Höhe in Rechnung gestellt wird. Die Provisionspflicht besteht auch dann, wenn Sie die Ihnen überlassenen Informationen an Dritte weitergeben. Für dieses Angebot gelten die Bestimmungen des Maklergesetzes idgF. BGB Nr. 262 und 297/1996 einschließlich des § 15 Maklergesetz als vereinbart. Die Informationen und Angaben beruhen auf Unterlagen des Abgebers und sind ohne Gewähr. Wir weisen auf ein wirtschaftliches Naheverhältnis zum Eigentümer hin. Es gelten unsere allgemeinen Geschäftsbedingungen. Irrtum vorbehalten.  

Wir weisen darauf hin, dass zwischen dem Vermittler und dem zu vermittelnden Dritten ein familiäres oder wirtschaftliches Naheverhältnis besteht.

Der Vermittler ist als Doppelmakler tätig.

Infrastruktur / Entfernungen

Gesundheit
Arzt <500m
Apotheke <1.000m
Klinik <2.000m
Krankenhaus <2.000m

Kinder & Schulen
Schule <1.000m
Kindergarten <500m
Universität <5.500m
Höhere Schule <5.000m

Nahversorgung
Supermarkt <500m
Bäckerei <1.000m
Einkaufszentrum <1.000m

Sonstige
Geldautomat <500m
Bank <1.500m
Post <1.500m
Polizei <1.500m

Verkehr
Bus <500m
U-Bahn <500m
Straßenbahn <3.500m
Bahnhof <500m
Autobahnanschluss <1.500m

Angaben Entfernung Luftlinie / Quelle: OpenStreetMap

Merkmale

  • Außen-Stellplatz
  • Terrasse
  • Bodenbelag: Fliesen, Parkett

Grundrisse

Grundrisse
1 / 1

Realisiere Dein Projekt

Bausubstanz und Energie

Heizwärmebedarf (HWB)

B

Gesamtenergieeffizienz (fGEE)

A+
  • Zustand der ImmobilieFertighaus, Erstbezug
  • HeizungsartFußbodenheizung
  • EnergieträgerLuft-/Wasser-Wärmepumpe
MediumRectangleTop

Preisdetails

Kaufpreis
749000 €
5.987,21 €/m²
Provision für Käufer
3% des Kaufpreises zzgl. 20% USt.
Weitere Preisinformationen
1 Stellplatz

Lage

address-icon
Wien (1230)
Hetmanekgasse, U6 Perfektastraße

Weitere Informationen

Stichworte Stellplatz vorhanden, Nutzfläche: 222,10 m², Gesamtfläche: 222,10 m², Anzahl der Badezimmer: 2, Anzahl der separaten WCs: 3, Anzahl Terrassen: 2, Balkon-Terrassen-Fläche: 24,00 m², Gartenfläche: 73,00 m², Bundesland: Wien

Weitere Services

Lust auf eine Besichtigung?
Eine Frage zur Immobilie?
Nachricht hinzufügen
Mit der Nutzung der oben angegebenen Telefonnummer oder durch Klicken auf „Kontaktieren“ akzeptierst Du die Allgemeinen Nutzungsbedingungen, denen Du jederzeit widersprechen kannst. Weitere Informationen zum Datenschutz

Über den Anbieter

Anton-Freunschlag-Gasse 11, 1230 WIEN
partner badge
Partnerschaft
Herr Stjepan Babic, BA MA
Herr Stjepan Babic, BA MADein Kontakt
Online-ID: 25DXSEJHW8P8
Referenznummer: OBGC2026012015483591582d57bbe1f
D.E.I.N. Immobilien GmbH
title
D.E.I.N. Immobilien GmbH
Nachricht hinzufügen
Mit der Nutzung der oben angegebenen Telefonnummer oder durch Klicken auf „Kontaktieren“ akzeptierst Du die Allgemeinen Nutzungsbedingungen, denen Du jederzeit widersprechen kannst. Weitere Informationen zum Datenschutz
MediumRectangleTop
MediumRectangleBottom
MediumRectangleTop
Wie zufrieden bist du mit dieser Seite (nicht mit der Immobilie selbst)?