Version: 8.22.4Navigation überspringen
11,52 €
Immowelt logo

Praxis zur Miete
11,52 Euro pro Quadratmeter

Großflächige Ordination mit guter Anbindung

Bitte beachten Sie, dass aufgrund der Nachweispflicht nur schriftliche Anfragen (Kontaktformular) mit vollständigen Angaben (Vor-, Zuname, Telefonnummer und E-Mailadresse) bearbeitet werden können.

Das Büro

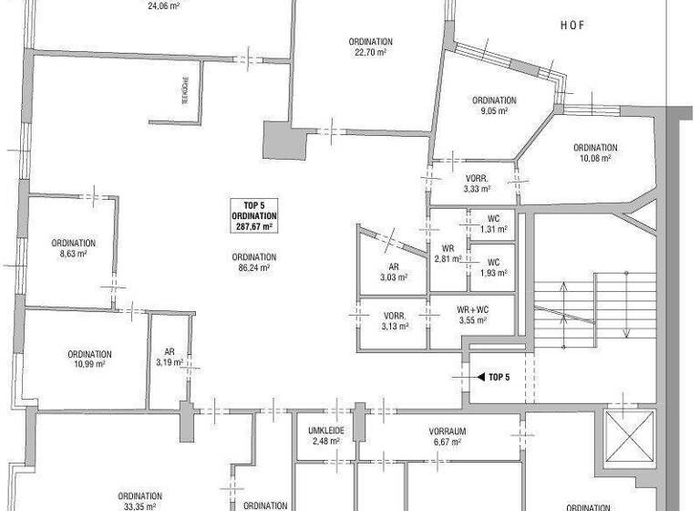
Diese aktuell ca. 287 m² große Ordination befindet sich in guter Lage im 14. Bezirk direkt auf der Hütteldorfer Straße. Das Objekt liegt im 3. Liftstock des Hauses und verfügt über einen effizienten Grundriss. Die Fläche kann bei Bedarf geteilt werden. Das Haus ist in einem sehr guten Zustand und garantiert einen repräsentativen Unternehmensauftritt. Das Objekt verfügt aktuell über einen großzügigen, zentralen Empfangsbereich, Büroräumlichkeiten in unterschiedlichen Größen, eine Teeküche, zwei getrennte Sanitärbereiche sowie einen Abstellraum.

Diese Fläche wurde zuletzt als Arztpraxis genutzt. Aufgrund der aktuellen Ausstattung (Wasseranschlüsse in mehreren Zimmern) ist sie daher auch weiterhin gut als Ordinationen geeignet. Das Objekt kann aber ebenso gut als Büro genutzt werden. Eine Trennung der Gesamtfläche zwecks kleinteiliger Anmietung wäre möglich.

Die monatlichen Heizkosten belaufen sich derzeit auf EUR 600,27 zzgl. USt. und werden zusätzlich zur Miete vorgeschrieben.

Ausstattung aktuell:

* Effiziente Raumaufteilung
* Kabelkanäle
* Teilweise Spiegelrasterleuchten
* Teilweise innenliegender Sonnenschutz
* Getrennte Sanitärgruppen
* Teeküche

Lage

Das Gewerbeobjekt befindet sich in sehr guter Lage in Penzing. Die Innenstadt, der 7. Bezirk und der Westbahnhof lassen sich mit der Straßenbahnlinie 49, welche direkt vor der Haustür liegt, bestens erreichen. Die U4-Bahn-Station Ober St. Veit ist ebenso gut fußläufig erreichbar. Auf der Hütteldorfer Straße finden sich viele Geschäfte des täglichen Bedarfs, Restaurants und Einkaufsmöglichkeiten, die rasch erreichbar sind.

Öffentliche Verkehrsmittel

Straßenbahn: 49, 52

S-Bahn: S45, S50, S80

Bus: 47A

U-Bahn: U4

 

*Alle Preise verstehen sich zuzüglich der gesetzlichen Umsatzsteuer.

Infrastruktur / Entfernungen

Gesundheit
Arzt <500m
Apotheke <500m
Klinik <2.000m
Krankenhaus <1.000m

Kinder & Schulen
Schule <500m
Kindergarten <500m
Universität <2.000m
Höhere Schule <3.500m

Nahversorgung
Supermarkt <500m
Bäckerei <500m
Einkaufszentrum <3.500m

Sonstige
Geldautomat <500m
Bank <500m
Post <500m
Polizei <1.000m

Verkehr
Bus <500m
U-Bahn <1.000m
Straßenbahn <500m
Bahnhof <1.000m
Autobahnanschluss <4.500m

Angaben Entfernung Luftlinie / Quelle: OpenStreetMap

Merkmale

  • 3. Geschoss
  • Teeküche
  • Personenaufzug
  • voll klimatisiert

Grundrisse

Grundrisse
1 / 1

Realisiere Dein Projekt

Bausubstanz und Energie

Der Anbieter hat keine Informationen zu Energieverbrauch oder Zustand der Immobilie bereit gestellt.
Immowelt logo

Mietkosten

Nettokaltmiete
11,52 €/m²
3.314,73 €
Betriebskosten
675,27 €
Provision für Mieter
3 Bruttomonatsmieten zzgl. 20% USt.
Kaution
3-6 Bruttomonatsmieten
Weitere Preisinformationen
Nettokaltmiete: 3.314,73 EUR

Lage

address-icon
Wien (1140)
Hütteldorfer Straße

Weitere Informationen

Stichworte Nutzfläche: 287,67 m², Bundesland: Wien

Weitere Services

Lust auf eine Besichtigung?
Eine Frage zur Immobilie?
Nachricht hinzufügen
Mit der Nutzung der oben angegebenen Telefonnummer oder durch Klicken auf „Kontaktieren“ akzeptierst Du die Allgemeinen Nutzungsbedingungen, denen Du jederzeit widersprechen kannst. Weitere Informationen zum Datenschutz

Über den Anbieter

Marc-Aurel-Straße 6/6, 1010 WIEN
partner badge
Partnerschaft
Herr Harald AnderlikDein Kontakt
Online-ID: 2n9e959
Referenznummer: OBGC20250623123159800d3a27a4ded
EDEX Immobilien GmbH
EDEX Immobilien GmbH
Bewertung: 5 von 5 Sternen
Nachricht hinzufügen
Mit der Nutzung der oben angegebenen Telefonnummer oder durch Klicken auf „Kontaktieren“ akzeptierst Du die Allgemeinen Nutzungsbedingungen, denen Du jederzeit widersprechen kannst. Weitere Informationen zum Datenschutz
Wie zufrieden bist du mit dieser Seite (nicht mit der Immobilie selbst)?