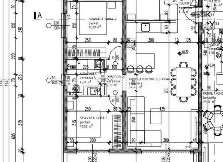
Zum Verkauf steht ein geräumiges Neubauapartment im südlichen Teil von Ciovo, nur 10 Gehminuten vom Strand entfernt. Das als S7 bezeichnete Apartment befindet sich im dritten Stock eines Gebäudes mit Aufzug und verfügt über eine Gesamtinnenfläche von 83 m, mit einem Balkon von 24 m Grundfläche und einer Dachterrasse von 109 m. Von der Dachterrasse bietet sich ein spektakulärer Panoramablick auf das Meer und das gesamte Gebiet von Okrug Gornji. Die Gesamtnettofläche des Apartments beträgt 123 m2 und wird mit einem externen Parkplatz verkauft. Das Apartment besteht aus drei Schlafzimmern, zwei Badezimmern, einem Abstellraum, einer Küche mit Wohnzimmer und einem Esszimmer mit Zugang zu einem großzügigen Balkon. Das Gebäude verfügt außerdem über einen Gemeinschaftspool von 28 m2. Das Gebäude wird hochwertig mit 10 cm Wärmedämmung gebaut; jedes Apartment wird mit Klimaanlage und Fußbodenheizung ausgestattet. Baubeginn war im Februar, der Bezug wird im Mai 2025 erwartet.
Die Standardgeschäftspolitik unserer Immobilienagentur besteht darin, eine Besichtigung der Immobilie zu organisieren, nachdem der Kunde unseren Standardagenturvertrag unterzeichnet hat. Die Unterzeichnung dieser Vereinbarung ist eine Grundvoraussetzung für weitere Aktivitäten im Zusammenhang mit dem Immobilienkauf, die auf dem Immobilienmaklergesetz und dem Datenschutzgesetz beruhen.
Merkmale
3. Geschoss
Grundrisse
Grundrisse
1 / 2
Realisiere Dein Projekt
Bausubstanz und Energie
Der Anbieter hat keine Informationen zu Energieverbrauch oder Zustand der Immobilie bereit gestellt.
Preisdetails
Kaufpreis
460000 €460.000 €
3.739,84 €/m²
Provision für Käufer
Bitte beachte, das Angebot kann bei Vertragsabschluss die Zahlung einer Provision beinhalten. Weitere Informationen erhältst Du vom Anbieter.
Lage
Okrug
Der Anbieter hat die genaue Adresse nicht freigegeben