Suchen Baupartner für Doppelhaushälfte incl. Baugrundstück, Keller und Garage
Das Bien-Zenker Haus, das Ihnen hier präsentiert wird, ist das CELEBRATION 114, ein flexibles Doppelhaus, das ganz nach Ihren Wünschen und Vorstellungen projektiert wird. Mit einer großzügigen Wohnfläche von 178 m² und sechs Zimmern verteilt auf drei Etagen, bietet dieses Haus Raum für Ihr Familienleben und eignet sich perfekt für die Bedürfnisse von Familien oder Menschen, die viel Platz wünschen. Der Wohnbereich im Erdgeschoss ist das Herzstück Ihres neuen Zuhauses und lädt zu gemeinsamen Stunden ein, während die oberen Geschosse geschickt aufgeteilt sind und intelligente Raumlösungen bieten, die Privatsphäre und Freiraum für alle Bewohner gewährleisten. Die Architektur-Bauteile ermöglichen Ihnen darüber hinaus eine individuelle Anpassung des Hauses, sodass es perfekt auf Ihr Grundstück von 318 m² passt und sich harmonisch in die Umgebung einfügt.
Mit dem CELEBRATION 114 profitieren Sie von mehr als nur einem schlichten Bau. Die durchdachte Aufteilung und die lichtdurchfluteten Räume sorgen für ein einladendes und behagliches Ambiente, das Sie und Ihre Familie jeden Tag aufs Neue begeistern wird. Stellen Sie sich vor, wie Sie an einem sonnigen Morgen auf Ihrer Terrasse sitzen und den Blick in den Garten genießen, während Ihre Kinder im Spielzimmer im Obergeschoss fröhlich spielen. Die Möglichkeiten sind nahezu unbegrenzt.
Grundrisse und Abbildungen können Extras zeigen. Flächenangaben nach DIN 277.
Merkmale
318 m² Grundstück
Keller
Garage
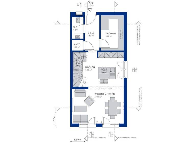
Der Grundriss des CELEBRATION 114 überzeugt durch seine durchdachte Aufteilung und die großzügige Anordnung der Räume. Mit sechs Zimmern auf drei Etagen haben Sie ausreichend Platz für Ihre Familie und individuelle Gestaltungsmöglichkeiten. Im Erdgeschoss befindet sich der zentrale Wohnbereich, der als Treffpunkt für gemeinsame Stunden dient. Die oberen Geschosse sind optimal aufgeteilt, sodass Sie Privatsphäre genießen können und jeder Raum seinen eigenen Charakter entfalten kann. Ob als Kinderzimmer, Arbeitszimmer oder Gästezimmer - hier findet jede Familie ihr individuelles Wohlfühlzimmer.
Besonderheiten wie großzügige Balkone und Terrassen sorgen nicht nur für eine attraktive Außenansicht, sondern bieten Ihnen auch die Möglichkeit, Ihre Freizeit im Freien zu genießen. Stellen Sie sich vor, wie Sie an warmen Sommertagen im Garten entspannen oder mit Freunden auf Ihrer Terrasse feiern. Lichtdurchflutete Räume schaffen eine einladende Atmosphäre und tragen zu einem angenehmen Wohnklima bei, in dem Sie und Ihre Liebsten sich rundum wohlfühlen können. Zusätzliche Abstellräume sorgen dafür, dass Sie genügend Stauraum für all Ihre persönlichen Dinge haben und Ihr Zuhause stets aufgeräumt bleibt.
Die Ausbaustufe "Schlüsselfertig" bietet Ihnen den Vorteil, dass Sie sich um den gesamten Bauprozess keine Gedanken machen müssen. Wir kümmern uns um alles - vom Rohbau bis zur letzten Fliese. Das bedeutet für Sie: maximaler Komfort und keine versteckten Kosten. Sie können sich darauf verlassen, dass Ihr neues Zuhause nach höchsten Standards gebaut wird und alle Anforderungen an Nachhaltigkeit erfüllt. So bleibt Ihnen mehr Zeit, sich auf die schönen Dinge im Leben zu konzentrieren, während wir für Sie den Traum vom eigenen Haus verwirklichen.
Grundrisse
Grundrisse
1 / 3
Realisiere Dein Projekt
Bausubstanz und Energie
Der Anbieter hat keine Informationen zu Energieverbrauch oder Zustand der Immobilie bereit gestellt.
Preisdetails
Kaufpreis
1440580 €1.440.580 €
8.093,15 €/m²
Provision für Käufer
Bitte beachte, das Angebot kann bei Vertragsabschluss die Zahlung einer Provision beinhalten. Weitere Informationen erhältst Du vom Anbieter.
Weitere Preisinformationen
1 Garagenstellplatz
Geschätzte Gesamtkosten
1.571.241 €1
Kaufpreis
1.440.580 €
Kaufnebenkosten
130.661 €
2
Notarkosten (1,5%)
21.609 €
Grunderwerbsteuer (3,5%)
50.420 €
Provision für Käufer (3,57%)
51.429 €
Grundbucheintrag (0,5%)
7.203 €
1Der angezeigte Wert ist eine automatisch berechnete Schätzung von immowelt.
2Bei den Angaben handelt es sich um ortsübliche Werte. Individuelle Kosten können abweichen.
Lage
Thalk.Obersendl.-Forsten-Fürstenr.-Solln, München (81477)
Der Anbieter hat die genaue Adresse nicht freigegeben
In der Umgebung von Obersendling/Solln finden Sie eine Vielzahl an Möglichkeiten, die das Leben in Ihrer neuen Heimat bereichern. Schulen, Kindergärten und medizinische Einrichtungen sind in unmittelbarer Nähe und bieten Ihnen und Ihrer Familie die beste Versorgung. Die Anbindung an die öffentlichen Verkehrsmittel ist hervorragend, sodass Sie die Münchner Innenstadt schnell und bequem erreichen können. Zudem gelangen Sie problemlos auf die Autobahn, was Ihnen Flexibilität für Ausflüge oder Pendelstrecken bietet.
Einkaufsmöglichkeiten sind in der Umgebung reichlich vorhanden, sodass Sie alles für den täglichen Bedarf in kurzer Zeit erreichen können. Ob Supermärkte, Fachgeschäfte oder Märkte - hier bleibt kein Wunsch unerfüllt. Zahlreiche Freizeitmöglichkeiten, wie Parks, Sporteinrichtungen und Restaurants, tragen zur hohen Lebensqualität in dieser Region bei und laden dazu ein, die Freizeit aktiv zu gestalten.
Die Kombination aus urbanem Leben und der Nähe zur Natur macht München zu einem attraktiven Standort für Familien und Menschen, die die Vorzüge einer Großstadt genießen möchten, ohne auf die Ruhe und Erholung der Natur verzichten zu müssen. In Ihrer neuen Umgebung finden Sie alles, was Sie zum Leben brauchen: Bildung, Gesundheit und Freizeit - ideal für eine glückliche Familie.
Weitere Informationen
Sonstiges
Dieses Haus ist ein projektiertes Objekt, das nach Ihren individuellen Wünschen und Vorstellungen gestaltet werden kann! Im angegebenen Preis ist bereits die Dämmstufe Effizienzhaus 40+ inklusive behaglicher Wohlfühl-Klima-Heizung+ enthalten. Ebenfalls enthalten ist eine moderne Photovoltaikanlage und eine Garage
Sämtliche Aspekte wie Grundriss, Technik, Ausstattung und Architektur können ganz flexibel an Ihre Bedürfnisse angepasst werden. Sie haben außerdem die Möglichkeit, verschiedene Ausbauarbeiten in Eigenleistung zu übernehmen - so können Sie Ihr neues Zuhause aktiv mitgestalten.
Alle Details erläutere ich Ihnen gerne persönlich. Erzählen Sie mir einfach, welche Wünsche Sie für Ihr neues Haus haben, und gemeinsam entwickeln wir Ihr maßgeschneidertes Bien-Zenker Traumhaus nach Ihren Vorstellungen und Möglichkeiten.
Am besten vereinbaren wir hierfür direkt einen Termin. Rufen Sie mich gerne an oder schicken Sie mir Ihren Terminwunsch per E-Mail. Ich freue mich auf Sie!
Auf dem Grundstück befindet sich derzeit noch Altbestand, der abgerissen werden muss. Die Kosten für den Abriss sowie Bau- und Kaufnebenkosten sind im Angebotspreis NICHT enthalten.
Stichworte
3 Etagen, im Stadtteil gelegen