Version: 8.25.1Navigation überspringen
Martens & Kühl GmbH
2.700 €
600 m² Lagerfläche

Lagerhalle zur Miete
2.700 €
600 m² Lagerfläche

Isolierte Kalt-Lagerhalle in ländlicher Umgebung

Merkmale

- Isolierte Kalt-Halle zur Lagerung
- gegebenenfalls Teilbar
- Stromanschluss sowie Starkstromanschluss
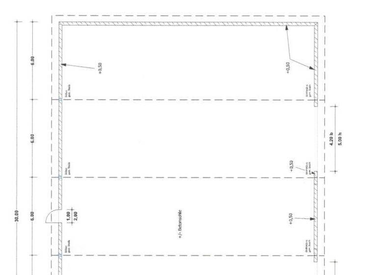
- 2 Schiebetore (5,00 m x 4,20 m)
- Höhe der Halle: 7,12 m (Mitte)

Grundrisse

Grundrisse
1 / 1

Realisiere Dein Projekt

Bausubstanz und Energie

Energieausweis

Ein Energieausweis ist für diesen Gebäudetyp nicht notwendig.
  • Baujahr2023
MediumRectangleTop

Mietkosten

Warmmiete
2.700 €
Nettomiete
nicht angegeben
Provision für Mieter
2,38 Nettomonatsmieten inkl. Umsatzsteuer, zahlbar durch den Mieter
Kaution
8100 €

Lage

address-icon
Seester (25370)
Der Anbieter hat die genaue Adresse nicht freigegeben
Die Gemeinde Seester liegt im Kreis Pinneberg im südwestlichen Schleswig-Holstein und gehört zur Metropolregion Hamburg. Die naturnahe, ländlich geprägte Umgebung kombiniert eine ruhige Wohn- und Arbeitsatmosphäre mit einer zugleich vorteilhaften Anbindung an die regionalen und überregionalen Verkehrswege.

Die verkehrstechnische Erschließung erfolgt über die nahegelegene Bundesstraße B431 sowie die Autobahn A23, deren Anschlussstelle Elmshorn in wenigen Fahrminuten erreichbar ist. Die Stadt Elmshorn als nächstgrößeres Mittelzentrum befindet sich nur ca. 8 Kilometer entfernt und bietet sämtliche infrastrukturellen Einrichtungen, darunter Einkaufsmöglichkeiten, Bildungseinrichtungen und medizinische Versorgung.

Der Bahnhof Elmshorn bietet regelmäßige Verbindungen in Richtung Hamburg, Kiel und Westerland (Sylt) und ist in etwa 10 bis 15 Minuten mit dem Pkw erreichbar. Die Hamburger Innenstadt ist in ca. 40 Fahrminuten erreichbar, wodurch Seester auch für Pendler attraktiv ist.

Das Gemeindegebiet ist überwiegend landwirtschaftlich geprägt, mit einzelnen Wohn- und Gewerbeflächen. Die ruhige Lage, das naturnahe Umfeld sowie die dennoch gute Erreichbarkeit machen Seester zu einem interessanten Standort für vielfältige Nutzungen im privaten wie auch im gewerblichen Bereich.

Weitere Informationen

Stichworte Lagerfläche: 600,00 m², Gesamtfläche: 600,00 m², Distanz zum Flughafen: 30.50, Distanz zum Hauptbahnhof: 3.70, Distanz zur Autobahn: 12.90, Distanz zu U-/S-Bahn: 19.70, Distanz zum Bus: 0.80, Distanz vom Zentrum: 3.90

Weitere Services

Lust auf eine Besichtigung?
Eine Frage zur Immobilie?
Mit einer persönlichen Nachricht hast du bessere Chancen auf eine Antwort.
Mit der Nutzung der oben angegebenen Telefonnummer oder durch Klicken auf „Kontaktieren“ akzeptierst Du die Allgemeinen Nutzungsbedingungen, denen Du jederzeit widersprechen kannst. Weitere Informationen zum Datenschutz

Über den Anbieter

Großer Wulfhagen 25, 25436 Uetersen
partner badge
Partnerschaft
Herr Felix Kühl
Herr Felix KühlDein Kontakt
Online-ID: 2581JIW992Y4
Referenznummer: 7386
Martens & Kühl GmbH
title
Martens & Kühl GmbH
Mit einer persönlichen Nachricht hast du bessere Chancen auf eine Antwort.
Mit der Nutzung der oben angegebenen Telefonnummer oder durch Klicken auf „Kontaktieren“ akzeptierst Du die Allgemeinen Nutzungsbedingungen, denen Du jederzeit widersprechen kannst. Weitere Informationen zum Datenschutz
MediumRectangleTop
MediumRectangleBottom
MediumRectangleTop
Wie zufrieden bist du mit dieser Seite (nicht mit der Immobilie selbst)?