Version: 8.25.1Navigation überspringen
Decus Immobilien GmbH
3.070.000 €
1.295 m² Grundstück

Gewerbegrundstück zum Kauf
3070000 €
2.371 €/m²
1.295 m² Grundstück

Liegenschaft samt Baubewilligung für ein attraktives Bürohaus

Lage- und Objektbeschreibung:

Auf einem ca. 1.300m² großen Grundstück in der Triester Straße im 23. Wiener Gemeindebezirk soll ein Bürogebäude errichtet werden.

Die Baubewilligung wurde vor Kurzem erteilt und wird in Kürze Ihre Rechtskraft erlangen.

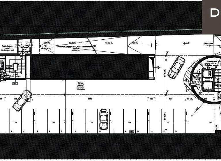
Insgesamt können ca. 3.840m² an verwertbarer Fläche errichtet werden. Diese verteilen sich auf zwei Untergeschosse, 34 Stellplätze sollen in der Tiefgarage entstehen.

Es sind zwei Stiegenhäuser vorgesehen, welche jeweils mit Aufzügen ausgestattet werden sollen. Im Innenbereich des Gebäudes verbirgt sich ein Hofgarten und in mehreren Geschoßen sind Terrassen vorgesehen.

Zum Verkauf gelangt die Liegenschaft samt der Baubewilligung. Gerne stellen wir weitere Unterlagen zur Verfügung.

 

Flächenaufstellung (verwertbare Fläche):

Erdgeschoss - ca. 643m²

1. Obergeschoss - ca. 930m²

2. Obergeschoss - ca. 856m²

3. Obergeschoss - ca. 843m²

Dachgeschoss - ca. 572m²

Summe verwertbare Fläche - ca. 3.843m²

 

Im 1. und 2. Obergeschoss als auch im Dachgeschoss sind jeweils Terrassen vorgesehen.

 

Kaufpreis:

Der Kaufpreis liegt bei EUR 3.070.000,--. Dies entspricht einem Kaupreis von ca. EUR 800,-- /m² erzielbarer Nutzfläche.

 

 

 

 

Wir weisen darauf hin, dass zwischen dem Vermittler und dem zu vermittelnden Dritten ein familiäres oder wirtschaftliches Naheverhältnis besteht.

Der Vermittler ist als Doppelmakler tätig.

DECUS Immobilien GmbH - Wir beleben Räume

Für weitere Informationen und Besichtigungen steht Ihnen gerne Frau Mag. (FH) Anita Kronaus-Buchegger unter der Mobilnummer +43 664 16 096 66 und per E-Mail unter kronaus@decus.at persönlich zur Verfügung.

www.decus.at | office@decus.at 

 

Wichtige Informationen

Bitte beachten Sie, dass per 13.06.2014 eine neue Richtlinie für Fernabsatz- und Auswärtsgeschäfte in Kraft getreten ist.

Ab 1.4.2024 entfallen die Grundbuchs- und Pfandrechtseintragungsgebühren vorübergehend für Eigenheime bis zu einer Bemessungsgrundlage von EUR 500.000,-. Voraussetzung ist das dringende Wohnbedürfnis, ausgenommen davon sind vererbte oder geschenkte Immobilien. Die Befreiung ist jedoch für den Einzelfall zu prüfen, DECUS Immobilien übernimmt hierzu keine Haftung.

Ab 01.07.2023 gilt das Erstauftraggeber-Prinzip bei Wohnungsmietverträgen, ausgenommen davon sind Dienst-/Natural-/Werkswohnungen. Wir dürfen gem. § 17 Maklergesetz darauf hinweisen, dass wir auf die Doppelmaklertätigkeit gem. § 5 Maklergesetz bei Wohnungsmietverträgen verzichten und nur noch einseitig tätig sind (bei den restlichen Vermittlungsarten nicht) und ein wirtschaftliches Naheverhältnis zu unseren Auftraggebern besteht. 

Im Falle eines Abschlusses mit Ihnen oder einem von Ihnen namhaft gemachten Dritten bzw. bei beidseitiger Willensübereinstimmung beträgt unser Honorar (lt. Honorarverordnung für Immobilienmakler) 2 Bruttomonatsmieten (BMM) bei Dienst-/Natural-/Werkwohnungen sowie Suchaufträgen, 3 BMM bei Gewerbe-, PKW-, Keller- und Lagermietverträgen sowie bei Kaufobjekten 3 % des Kaufpreises, zuzüglich der gesetzlichen Umsatzsteuer.

Dieses Objekt wird Ihnen unverbindlich und freibleibend angeboten. Oben angeführte Angaben basieren auf Informationen und Unterlagen des Eigentümers und sind unsererseits ohne Gewähr.

Nähere Informationen sowie unsere AGBs und die Nebenkostenübersichtsblatt finden Sie auf unserer Homepage www.decus.at unter "Service" - "Rechtliches zum FAGG" sowie im Anhang der zugesendeten Objekt-Exposés!

Infrastruktur / Entfernungen

Gesundheit
Arzt <500m
Apotheke <1.000m
Klinik <2.000m
Krankenhaus <2.000m

Kinder & Schulen
Schule <1.000m
Kindergarten <500m
Universität <5.000m
Höhere Schule <4.500m

Nahversorgung
Supermarkt <500m
Bäckerei <2.000m
Einkaufszentrum <1.000m

Sonstige
Geldautomat <1.000m
Bank <2.000m
Post <1.500m
Polizei <1.500m

Verkehr
Bus <500m
U-Bahn <1.000m
Straßenbahn <2.500m
Bahnhof <500m
Autobahnanschluss <1.000m

Angaben Entfernung Luftlinie / Quelle: OpenStreetMap

Merkmale

  • 1.295 m² Grundstück

Grundrisse

Grundrisse
1 / 7

Realisiere Dein Projekt

Bausubstanz und Energie

Möchtest du Details zum Energieverbrauch?info_energy_calculation-icon
MediumRectangleTop

Preisdetails

Kaufpreis
3070000 €
2.370,66 €/m²
Provision für Käufer
3% des Kaufpreises zzgl. 20% USt.

Lage

address-icon
Wien (1230)
Der Anbieter hat die genaue Adresse nicht freigegeben
Triester Straße

Weitere Informationen

Stichworte Nutzfläche: 3.840,00 m², Gesamtfläche: 3.840,00 m², Bundesland: Wien

Weitere Services

Lust auf eine Besichtigung?
Eine Frage zur Immobilie?
Nachricht hinzufügen
Mit der Nutzung der oben angegebenen Telefonnummer oder durch Klicken auf „Kontaktieren“ akzeptierst Du die Allgemeinen Nutzungsbedingungen, denen Du jederzeit widersprechen kannst. Weitere Informationen zum Datenschutz

Über den Anbieter

Kärtner Straße 39/Annagasse 1, 1010 WIEN
partner badge
Partnerschaft
Frau Anita Kronaus-BucheggerDein Kontakt
Online-ID: 24EFKBSD6N2A
Referenznummer: OBGC20240508150321617c96aa882b6
Decus Immobilien GmbH
Decus Immobilien GmbH
Bewertung: 4,5 von 5 Sternen
Nachricht hinzufügen
Mit der Nutzung der oben angegebenen Telefonnummer oder durch Klicken auf „Kontaktieren“ akzeptierst Du die Allgemeinen Nutzungsbedingungen, denen Du jederzeit widersprechen kannst. Weitere Informationen zum Datenschutz
MediumRectangleTop
MediumRectangleBottom
MediumRectangleTop
Wie zufrieden bist du mit dieser Seite (nicht mit der Immobilie selbst)?