Version: 8.24.0Navigation überspringen
12,50 €
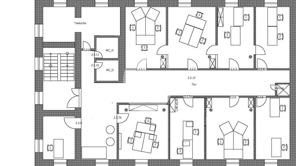
236 m² Bürofläche  •  teilbar ab 236 m²
Immowelt logo

Bürogebäude zur Miete • provisionsfrei
12,50 €
/m²
236 m² Bürofläche  •  teilbar ab 236 m²

Immobilienangebot | NESTOR-Areal in der Stuttgarter Straße 35 in Ludwigsburg

Die Büroflächen befinden sich in einer optisch sehr ansprechenden Villa welche unter Kulturdenkmal steht. Das Objekt eignet sich ideal für einen Mieter, der eine repräsentative Adresse und ruhig gelegene Flächen sucht. Die hellen und großzügig geschnittenen Büroflächen erstrecken sich auf insgesamt 2 Gebäudeteile.

Die Büroräume bieten aufgrund der großzügigen Deckenhöhe von max. 4 Meter sowie der hohen Fenster ein angenehmes Raumgefühl. Die architektonisch auffallende Außenfassade spiegelt den Charme in den Büroräumlichkeiten wieder.

Vor dem Gebäude finden sich zumdem Stellplätze für Mitarbeiter und Besucher welche bei Bedarf angemietet werden können.

Im Außenbereich erwartet Sie ein schön angelegter Park welcher im Sommer zum verweilen einlädt. Hier kann man die Hektik des Alltags hinter sich lassen und den Blick ins grüne genießen.

Merkmale

  • frei ab sofort
  • 4. Geschoss
Stellplätze, Küche, Boden, Fenster / Sonnenschutz, Ausbau nach Mieterwunsch

Realisiere Dein Projekt

Bausubstanz und Energie

Der Anbieter hat keine Informationen zum Energieverbrauch bereit gestellt.
  • Baujahr1875-1985
  • Zustand der ImmobilieGepflegt
Immowelt logo

Mietkosten

Monatliche Miete
12,50 €/m²
Nebenkosten
3 €
Zusätzliche Kosten
Heizkosten
Provision für Mieter
provisionsfrei; nein
Kaution
3 Brutto-Monatsmieten

Lage

address-icon
MitteLudwigsburg (71638)
Der Anbieter hat die genaue Adresse nicht freigegeben
Die Villa befindet sich in einer sehr guten Lage nahe der Innenstadt. Einkaufsmöglichkeiten des täglichen Bedarfs sowie Banken und Restaurants sind in näherer Umgebung vorhanden. Zu Fuß erreichen Sie in ca. 10 Minuten den Bahnhof Ludwigsburg. Dort verkehren die S-Bahnlinien S4, und S5, damit erreichen Sie den Hauptbahnhof Stuttgart in 35 Minuten. Über die Bundesstraße B27 ist die Stuttgarter Innenstadt in ca. 20 Minuten zu erreichen. Der internationale Flughafen Leinfelden-Echterdingen liegt etwa 38 km entfernt. Die Autobahnen A81 ist 10 Fahrminuten entfernt

Weitere Informationen

Sonstiges Noch nicht das Richtige? Wir führen weitere Objekte im Großraum Stuttgart. Sprechen Sie mit unseren Beratern. Gemeinsam finden wir Ihr Wunschobjekt! Wir freuen uns auf Ihre Kontaktaufnahme!
 
Nach den §§ 16, 16 a EnEV ist der Eigentümer, Verkäufer, Vermieter, Verpächter und Leasinggeber bei der Vermarktung von Immobilien verpflichtet, den Energieausweis der Immobilie gemäß der gesetzlichen Vorgabe bei Besichtigungen auszuhändigen bzw. auszuhängen und bestimmte energetische Kennwerte aus dem Energieausweis in die Immobilieninserate und Exposés aufzunehmen. Dieser Nachweis wurde von uns bereits bei den Eigentümern angefordert und kann von Ihnen beim Besichtigungstermin eingesehen werden.
 
Das Angebot ist für den Mieter provisionspflichtig. Im Falle der Anmietung hat Immoraum einen Anspruch gegenüber dem Mieter auf Zahlung einer Mieterprovision in Höhe von 2 Nettokaltmieten zzgl. gesetz. Mwst.

Weitere Services

Lust auf eine Besichtigung?
Eine Frage zur Immobilie?
Nachricht hinzufügen
Mit der Nutzung der oben angegebenen Telefonnummer oder durch Klicken auf „Kontaktieren“ akzeptierst Du die Allgemeinen Nutzungsbedingungen, denen Du jederzeit widersprechen kannst. Weitere Informationen zum Datenschutz

Über den Anbieter

Immoraum GmbHMaklerbüro
Uhlandstraße 14, 70182 Stuttgart
Herr Maximilian Unterreiner
Herr Maximilian UnterreinerDein Kontakt
Online-ID: 284k55c
Referenznummer: IRx1369/G1/E3/Eh1
Immoraum GmbH
Immoraum GmbH
Nachricht hinzufügen
Mit der Nutzung der oben angegebenen Telefonnummer oder durch Klicken auf „Kontaktieren“ akzeptierst Du die Allgemeinen Nutzungsbedingungen, denen Du jederzeit widersprechen kannst. Weitere Informationen zum Datenschutz
Wie zufrieden bist du mit dieser Seite (nicht mit der Immobilie selbst)?