
Kreisbaugenossenschaft Ostalb eG
Herr Laurin Fussenegger
+49 ···
Nr. anzeigenPreise & Kosten
in Warmmiete enthalten
Kaution
1.275 EUR (5Genoss.-Anteile+25,-EUREintrittsgeld)
Provision für Mieter
provisionsfrei
Warum sehe ich diese Anzeige? – Du siehst diese Anzeige basierend auf Ihrer Navigation auf unserer Website und den Suchkriterien, die du verwendet hast.
Lage
Das Gebäude liegt zentral in der Innenstadt von Aalen.
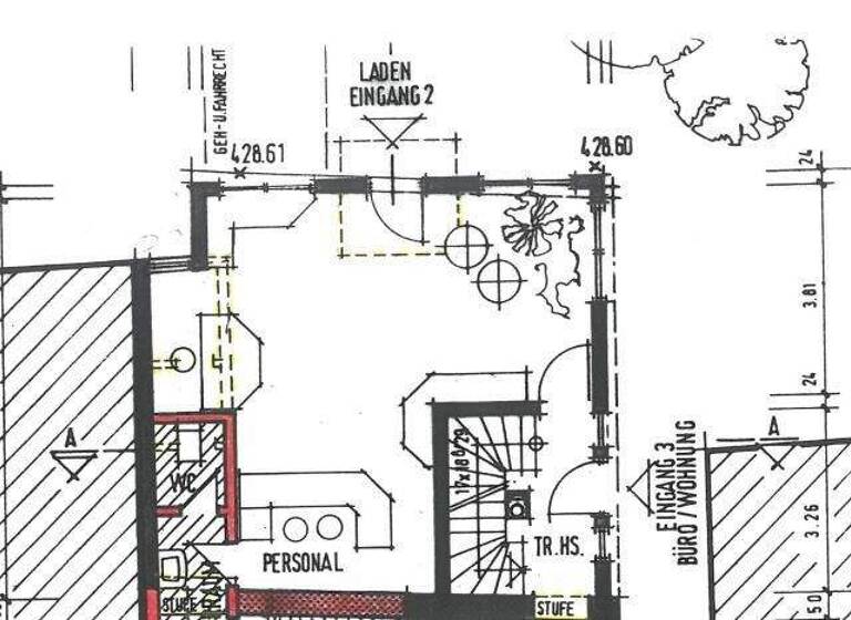
Die Gewerbeeinheit befindet sich im Erdgeschoss des Mehrfamilienhauses und kann sowohl für Büros, Einzelhandel, Praxis oder dergleichen genutzt werden.
Büro-/Praxisfläche
Kategorie
Bürofläche
Baujahr
1990
Bezug
sofort
Energie & Heizung
Warum sehe ich diese Anzeige? – Du siehst diese Anzeige basierend auf Ihrer Navigation auf unserer Website und den Suchkriterien, die du verwendet hast.
Wärme
Energieausweistyp
Verbrauchsausweis
Gebäudetyp
Nicht-Wohngebäude
Baujahr laut Energieausweis
1990
Gültigkeit
bis 03.08.2025
Endenergieverbrauch (Wärme)
128,90 kWh/(m²·a)
Weitere Energiedaten
Energieträger
Gas
Heizungsart
Zentralheizung
Details
Objektbeschreibung
Zentral gelegene Gewerbeeinheit in Aalen
Ausstattung
Die Immobilie bietet einen Raum mit einer Fensterfront zur Fußgängerzone, ein separates WC (Personal) sowie einen Kellerraum.
Weitere Informationen
Sonstiges
Mietpreis zzgl. MwSt.
Diese Gewerbeeinheit kann mit der Gewerbeeinheit daneben zusammengelegt werden. Die Gesamtfläche würde dann ca. 84 m² betragen.
Anbieter der Immobilie
Kreisbaugenossenschaft Ostalb eG
Maiergasse 13, 73433 Aalen
Online-ID: 2j8u25m
Referenznummer: 1395
Finde Angebote wie dieses
Hier geht es zu unserem Impressum, den Allgemeinen Geschäftsbedingungen, den Hinweisen zum Datenschutz und nutzungsbasierter Online-Werbung.