Version: 8.25.1Navigation überspringen
1.190.000 €
4 Zimmer  •  171,5 m²  •  frei ab 01.05.2026
Immowelt logo

Wohnung zum Kauf - Erstbezug
1190000 €
6.941 €/m²
4 Zimmer  •  171,5 m²  •  frei ab 01.05.2026

Ober St. Veit - Top Gartenapartment - Erstbezug - Grünruhelage!

Ober St. Veit - Top Gartenapartment - Erstbezug - Grünruhelage!

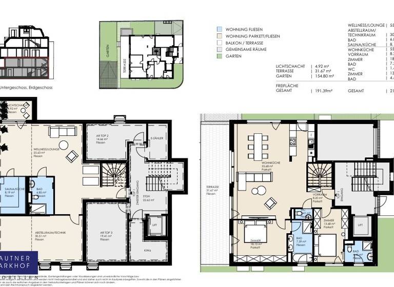
Es handelt sich um ein hochwertiges, sonniges, ca. 202m² Nutzfläche großes, über 2 Ebenen angelegtes 4 Zimmer Gartenappartement, mit direktem Ausgang vom Wohnzimmer auf die ca. 31m² große Südwestterrasse, übergehend in den ca. 193m² großen Eigengarten, in einem attraktiven, stilvoll, errichteten Wohnhauses, mit insgesamt 3 Wohneinheiten. Die unmittelbare Nähe, sowohl zu öffentlichen Verkehrsmitteln 53A, 54A, öffentlichen Einrichtungen und Einkaufsmöglichkeiten, als auch der hohe Freizeitwert durch den angrenzenden roten Berg und den nahgelegenen Wienerwald, erklären den hohen Wohlfühlwert dieser begehrten Lage. 
Die beiden Etagen des Apartments verfügen über eine Luftwärmepumpe mit Fußbodenheizung, Smart Home LOXONE Intercom, Außenbeschattung, sowie in der Gartenebene, über eine Deckenkühlung und umfassen:
Gartenebene ca. 101m²:

* Eingangsbereich mit Garderobe und Abgang in das Untergeschoss mit dem Longe-Wellnessbereich
* Wohnbereich ca. 40m² mit offenem Küchenbereich und direktem Zugang zur ca. 31m² Terrasse und dem Garten ca. 170m²
* Zimmer ca. 13m²
* Zimmer ca. 14m²
* Zimmer ca. 14m² mit angeschlossenem eigenem Bad 
* Bad mit Dusche
* Toilette
* _Mögliche Adaptierungen nach Absprache:_ Sollten nur 2 Schlafzimmer benötigt werden, könnte der Wohnbereich mit offener Küche auf ca. 55m² erweitert werden. Ein Gästebereich wäre dann auch noch im Untergeschoss denkbar.
* Garagenstellplatz bzw. Stellplatz wären zu einem Kaufpreis von €25.000.- je Stellplatz und €45.000.- für den Garagenstellplatz auf Anfrage verfügbar.

Untergeschoss ca. 100m² - keine klassische Wohnnutzfläche:

* großzügiger ca. 55m², individuell als Longe-, Relax-, Fitness-, Wellness-, Gäste-, Spielbereich, attraktiv gestaltbarer Raum mit einer ca. 5m² großen Freifläche
* Sauna-/Teeküche ca. 8m²
* Bad ca. 7m² mit Dusche, Toilette
* Kellerraum ca. 30m²
* Zugang - zusätzlicher Zugang vom Stiegenhaus auf Liftebene

Für weitere Fragen bzw. zur Vereinbarung eines eventuellen Besichtigungstermins, steht Ihnen Herr Markus Schafroth gerne unter +43 676 341 86 91 zur Verfügung.
 

Wir weisen darauf hin, dass zwischen dem Vermittler und dem zu vermittelnden Dritten ein familiäres oder wirtschaftliches Naheverhältnis besteht.

Der Vermittler ist als Doppelmakler tätig.

Infrastruktur / Entfernungen

Gesundheit
Arzt <250m
Apotheke <500m
Klinik <750m
Krankenhaus <1.250m

Kinder & Schulen
Schule <1.000m
Kindergarten <500m
Universität <500m
Höhere Schule <5.000m

Nahversorgung
Supermarkt <500m
Bäckerei <750m
Einkaufszentrum <4.500m

Sonstige
Geldautomat <750m
Bank <750m
Post <750m
Polizei <1.250m

Verkehr
Bus <250m
Straßenbahn <1.000m
U-Bahn <1.500m
Bahnhof <1.500m
Autobahnanschluss <4.250m

Angaben Entfernung Luftlinie / Quelle: OpenStreetMap

Merkmale

  • frei ab 01.05.2026
  • Barrierefrei
  • Personenaufzug
  • Badezimmer: Badewanne, Bad mit Dusche, Bad mit Fenster
  • Gäste-WC
  • Terrasse
  • Garage, Außen-Stellplatz
  • voll klimatisiert

Grundrisse

Grundrisse
1 / 2

Realisiere Dein Projekt

Bausubstanz und Energie

Heizwärmebedarf (HWB)

B

Gesamtenergieeffizienz (fGEE)

  • Zustand der ImmobilieNeubau, Erstbezug
  • HeizungsartFußbodenheizung
  • EnergieträgerLuft-/Wasser-Wärmepumpe
Immowelt logo

Preisdetails

Kaufpreis
1190000 €
6.940,80 €/m²
Provision für Käufer
3% des Kaufpreises zzgl. 20% USt.
Weitere Preisinformationen

Kaufpreis zuzüglich EUR25.000.- je Stellplatz und EUR45.000.- Garagenstellplatz, 1 Stellplatz
1 Garagenstellplatz

Lage

address-icon
Leon-Kellner-WegWien (1130)

Weitere Informationen

Stichworte Carport vorhanden, Stellplatz vorhanden, Garage vorhanden, Süd-West-Balkon/Terrasse, Fahrradraum, Lagerfläche: 30,51 m², Nutzfläche: 201,96 m², Freifläche: 225,52 m², Anzahl der Badezimmer: 3, Anzahl der separaten WCs: 3, Anzahl Terrassen: 1, Balkon-Terrassen-Fläche: 31,67 m², Gartenfläche: 193,85 m², Kellerfläche: 30,51 m², Bundesland: Wien

Weitere Services

Lust auf eine Besichtigung?
Eine Frage zur Immobilie?
Nachricht hinzufügen
Mit der Nutzung der oben angegebenen Telefonnummer oder durch Klicken auf „Kontaktieren“ akzeptierst Du die Allgemeinen Nutzungsbedingungen, denen Du jederzeit widersprechen kannst. Weitere Informationen zum Datenschutz

Über den Anbieter

Schubertgasse 13, 1090 WIEN
Herr Markus SchafrothDein Kontakt
Online-ID: 26YMY9UAN5NE
Referenznummer: OBGC2026031309201497422a7420a46
Mautner Markhof Immobilien
Nachricht hinzufügen
Mit der Nutzung der oben angegebenen Telefonnummer oder durch Klicken auf „Kontaktieren“ akzeptierst Du die Allgemeinen Nutzungsbedingungen, denen Du jederzeit widersprechen kannst. Weitere Informationen zum Datenschutz
Wie zufrieden bist du mit dieser Seite (nicht mit der Immobilie selbst)?