Version: 8.26.0Navigation überspringen
128.900 €
4 Zimmer  •  102,3 m²  •  713 m² Grundstück
Immowelt logo

Einfamilienhaus zum Kauf
128900 €
1.260 €/m²
4 Zimmer  •  102,3 m²  •  713 m² Grundstück

Solides Einfamilienhaus mit Stallung und Garten

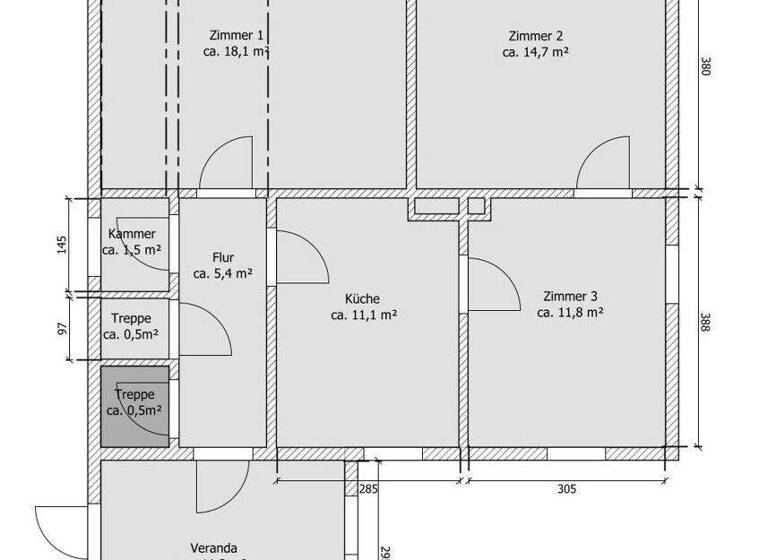
Zum Verkauf steht ein massiv errichtetes Einfamilienhaus in ruhiger, dörflicher Lage von 17398 Bugewitz. Die Immobilie wurde in den Jahren 1956 bis 1958 errichtet, ist teilunterkellert und verfügt über ein Erdgeschoss sowie ein teilausgebautes Dachgeschoss. Mit einer Wohnfläche von ca. 102,3 m² sowie zusätzlichen Nutzflächen von ca. 20,5 m² im Haus bietet das Objekt eine solide Grundlage für komfortables Wohnen.

Das Haus befindet sich insgesamt in einem guten, gepflegten Zustand, weist jedoch einen kleinen bis mittleren Modernisierungsrückstau auf. Es eignet sich ideal für Käufer, die ein Bestandsobjekt mit Substanz suchen und bereit sind, durch überschaubare Sanierungsmaßnahmen den Wohnkomfort an heutige Standards anzupassen.

Das Grundstück mit ca. 713 m² ist vollständig erschlossen, eingefriedet und gepflegt angelegt. Die Außenflächen bieten ausreichend Platz zur Erholung, Gartennutzung oder auch für eine Tierhaltung.

Besonders hervorzuheben ist das große Nebengebäude in Form einer ehemaligen Stallung mit einer Bruttogrundfläche von ca. 120 m². Dieses Gebäude erhielt ca. 1995 ein neues Dach und stellt einen deutlichen Mehrwert dar - sei es als Lagerfläche, Werkstatt, Hobbyraum oder für eine alternative Nutzung nach Umgestaltung.

Das Wohnhaus verfügt über einen funktionalen und gut nutzbaren Grundriss. Dach und Fassade präsentieren sich dem Alter entsprechend gepflegt. Die Kunststofffenster stammen aus ca. 1992 und sind zweifach verglast.

Die Beheizung erfolgt über eine moderne Gas-Brennwerttherme aus dem Jahr 2016, ebenso wurde der Gastank 2016 erneuert. Die Warmwasserbereitung erfolgt zentral über die Heizungsanlage. Die Elektroinstallation befindet sich in einem ordentlichen Zustand, die Sanitärausstattung stammt überwiegend aus den 1990er-Jahren. Abwasser wird über eine Biokläranlage entsorgt.

Insgesamt handelt es sich um ein solides Einfamilienhaus mit guter Grundsubstanz, ruhiger Lage nahe eines Landschaftsschutzgebietes und viel Potenzial zur individuellen Weiterentwicklung. Nach einer Modernisierung bietet die Immobilie sowohl für Eigennutzer als auch perspektivisch für eine Vermietung attraktive Nutzungsmöglichkeiten.

Merkmale

  • 713 m² Grundstück
  • Keller
  • 3 Stellplätze: Garage, 2 Außen-Stellplätze
- Massive Bauweise
- Baujahr ca. 1956-1958
- Teilunterkellert
- Erdgeschoss und teilausgebautes Dachgeschoss
- Wohnfläche ca. 103 m²
- Nutzfläche im Haus ca. 45 m²
- Grundstück ca. 713 m²
- Gepflegter Gesamtzustand mit Modernisierungsbedarf
- Gas-Brennwertheizung aus dem Jahr 2016
- Gastank ebenfalls aus 2016
- Kunststofffenster, zweifach verglast (ca. 1992)
- Dach in gepflegtem Zustand, nicht gedämmt
- Sanitärausstattung überwiegend aus den 1990er-Jahren
- Abwasserentsorgung über Biokläranlage

- Großes Nebengebäude (ehem. Stallung) mit ca. 120 m² Bruttogrundfläche
- Garage für PKW
- Dach des Nebengebäudes erneuert ca. 1995
- Eingefriedetes Grundstück
- Gartenfläche mit Gestaltungspotenzial

- Ruhige, ländliche Lage nahe Landschaftsschutzgebiet

Grundrisse

Grundrisse
1 / 2

Bausubstanz und Energie

Energieausweis

D
  • Baujahr1958
  • Zustand der ImmobilieGepflegt
  • HeizungsartZentralheizung
  • EnergieträgerGas
Immowelt logo

Preisdetails

Kaufpreis
128900 €
1.260,02 €/m²
Provision für Käufer
3,57% inkl. MwSt inkl. MwSt.
Weitere Preisinformationen
2 Stellplätze
1 Garagenstellplatz
Geschätzte Gesamtkosten
143.815 €1
Kaufpreis
128.900 €
Notarkosten (1,5%)
1.934 €
Grunderwerbsteuer (6%)
7.734 €
Provision für Käufer (3,57%)
4.602 €
Grundbucheintrag (0,5%)
645 €
1Der angezeigte Wert ist eine automatisch berechnete Schätzung von immowelt.
2Bei den Angaben handelt es sich um ortsübliche Werte. Individuelle Kosten können abweichen.

Lage

address-icon
Bugewitz (17398)
Der Anbieter hat die genaue Adresse nicht freigegeben
Das Einfamilienhaus befindet sich in der Dorfstraße 48 in Bugewitz, einer ruhigen und idyllischen Gemeinde im Landkreis Vorpommern-Greifswald. Die Lage ist geprägt von dörflichem Charakter, viel Natur und einem entspannten Wohnumfeld - ideal für alle, die Wert auf Ruhe und Lebensqualität abseits städtischer Hektik legen.

Die Dorfstraße ist eine verkehrsarme Anliegerstraße, die ein angenehmes, familienfreundliches Wohnklima bietet. Die Umgebung ist durch gepflegte Einfamilienhäuser, traditionelle Hofstellen und großzügige Grundstücke gekennzeichnet und vermittelt ein harmonisches, gewachsenes Ortsbild.

Die naturnahe Umgebung mit weitläufigen Grün- und Landwirtschaftsflächen bietet einen hohen Erholungswert und zahlreiche Möglichkeiten für Freizeitaktivitäten im Freien. Besonders hervorzuheben sind die umliegenden Wälder und Naturlandschaften, die über gut ausgebaute Fahrradwege erschlossen sind und sich hervorragend für ausgedehnte Rad- und Erholungstouren eignen.

Auch für Wassersportler und Naturliebhaber bietet die Region ideale Voraussetzungen: Das Stettiner Haff sowie verschiedene Stromstrände entlang des Peenestroms sind schnell erreichbar und laden zum Baden, Angeln oder zu entspannten Stunden am Wasser ein. Darüber hinaus ist die Insel Usedom sowohl mit dem Fahrrad als auch über die Fährverbindungen gut erreichbar. Dort erwarten Besucher die bekannten Ostseestrände sowie zahlreiche weitere Freizeit- und Erholungsmöglichkeiten.

Insgesamt überzeugt die Lage durch eine gelungene Kombination aus ruhigem Wohnen im Grünen, naturnaher Umgebung sowie der Nähe zum Wasser und zur Ostseeinsel Usedom.

Weitere Informationen

Sonstiges Es werden keine Anfragen, ohne vollständigen Namen/Vornamen, der Anschrift und einer Telefonnummer beantwortet. Weitere interessante Miet- Kauf- und Neubauangebote aus unserem Portfolio finden Sie auf unserer Homepage unter www.mse-haus.de

Sehr gerne können Sie auch telefonisch mit uns Kontakt aufnehmen. Alle Angaben sind ohne Gewähr und beruhen auf Informationen des Auftraggebers. Die MSE-HAUS GmbH übernimmt keine Haftung für deren Vollständigkeit, Richtigkeit und Aktualität. Einen Zwischenverkauf behält sich der Auftraggeber ausdrücklich vor. Das Angebot ist freibleibend. Stichworte Nutzfläche: 20,50 m², Anzahl der Schlafzimmer: 3, Anzahl der Badezimmer: 1

Weitere Services

Lust auf eine Besichtigung?
Eine Frage zur Immobilie?
Nachricht hinzufügen
Mit der Nutzung der oben angegebenen Telefonnummer oder durch Klicken auf „Kontaktieren“ akzeptierst Du die Allgemeinen Nutzungsbedingungen, denen Du jederzeit widersprechen kannst. Weitere Informationen zum Datenschutz

Über den Anbieter

Wilhelm-Stolte-Straße 84, 17235 Neustrelitz
partner badge
Partnerschaft
Herr Moritz SchulzDein Kontakt
Online-ID: 262IDL1LHR4G
Referenznummer: 568
Wie zufrieden bist du mit dieser Seite (nicht mit der Immobilie selbst)?