Version: 8.25.1Navigation überspringen
1.250.000 €
820 m² Lagerfläche
Immowelt logo

Lagerhalle zum Kauf
1250000 €
820 m² Lagerfläche

Funktionale Gewerbeimmobilie in wirtschaftsstarker Region Oberbayerns

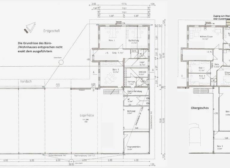
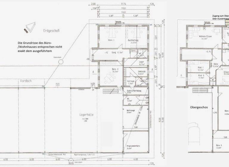
Im Landkreis Traunstein überzeugt der Standort Schnaitsee durch gute Verkehrsanbindung, stabile Wirtschaftsstruktur und ein etabliertes Gewerbegebiet mit idealen Voraussetzungen für Handwerk, Produktion und Dienstleistungen. Die moderne Gewerbeimmobilie mit großzügiger Stahlbauhalle, hellen Arbeitsbereichen und angeschlossenem Büro/Wohnhaus verfügt über ca. 820 m² Gesamtnutzfläche auf einem ca. 2.451 m² großem Grundstück.

- Oberbayern / Landkreis Traunstein mit solider Mittelstandsstruktur und Nähe zu München und Salzburg
- ausgewiesenes Gewerbegebiet Rumering mit verkehrsgünstiger Anbindung (A94/A8) und planungsrechtlicher Sicherheit
- Baujahr 2002, funktionale Stahlbauhalle mit gedämmten Sandwichpaneelen, Betonboden, viel Tageslicht und großzügigem Vordach
- massives Büro-/Betriebsleiterhaus mit hochwertigem Ausbau; Gas-Zentral- und Umluftheizung, zusätzliche Elektro-Fußbodenheizung.

Zum Verkauf kommt das Grundstück, Grundbuch von Schnaitsee, Blatt 1348, Flurstück 756/16 in der Größe von 2.451 m². Das Grundstück ist mit einer Gewerbehalle und angebautem, 2-eschossigen Büro- und Wohnhaus bebaut.

In der Zweiten Abteilung des Grundbuches ist eine Auflassungsvormerkung für die Gemeinde, Gemeindliches Vorkaufsrecht, eingetragen. Weitere Eintragen sind nicht vorhanden.

Für die Halle und das Erdgeschoss des Büro/Wohnhauses besteht zurzeit ein Mietvertrag. Dieser kann mit einer Frist von 6 Monaten gekündigt werden.

Merkmale

  • 2.451 m² Grundstück

Grundrisse

Grundrisse
1 / 1

Realisiere Dein Projekt

Bausubstanz und Energie

Möchtest du Details zum Energieverbrauch?info_energy_calculation-icon
Immowelt logo

Preisdetails

Kaufpreis
1250000 €
Provision für Käufer
3,57% inkl. MwSt. aus der Kaufpreissumme
Geschätzte Gesamtkosten
1.294.625 €1
Kaufpreis
1.250.000 €
Provision für Käufer (3,57%)
44.625 €
1Der angezeigte Wert ist eine automatisch berechnete Schätzung von immowelt.
2Bei den Angaben handelt es sich um ortsübliche Werte. Individuelle Kosten können abweichen.

Lage

address-icon
WaldhausenSchnaitsee (83530)
Der Anbieter hat die genaue Adresse nicht freigegeben
Die Gewerbeimmobilie befindet sich in Oberbayern, einer der wirtschaftsstärksten Regionen Deutschlands, mit Nähe zu den Wachstumsräumen München und Salzburg. Der Standort profitiert von einer stabilen Wirtschaftsstruktur, hoher Kaufkraft und sehr guter regionaler sowie überregionaler Erreichbarkeit.



Im Landkreis Traunstein (ca. 175.000 Einwohner) trifft eine breit diversifizierte Wirtschaftsstruktur aus Industrie, Handwerk, Handel und Logistik auf eine leistungsfähige Verkehrsinfrastruktur. Der Landkreis gilt als mittelstandsgeprägt und wirtschaftlich stabil mit guter Arbeitskräfteverfügbarkeit.


Die Gemeinde Schnaitsee (ca. 3.600 Einwohner) ist ländlich geprägt und bietet attraktive Rahmenbedingungen für gewerbliche Nutzungen. Das Umfeld eignet sich insbesondere für Produktions-, Handwerks- und logistiknahe Betriebe. Die Anbindung an die Autobahnen A94 und A8 sowie die Erreichbarkeit der Flughäfen Salzburg und München sichern eine gute nationale und internationale Anbindung.



Das Objekt liegt im ausgewiesenen Gewerbegebiet Rumering. Das Gebiet ist planungsrechtlich gesichert, verkehrlich gut angebunden und bietet ein konfliktarmes, gewerbetypisches Umfeld - ideale Voraussetzungen für eine nachhaltige Vermietbarkeit und langfristige Wertstabilität.

Weitere Informationen

Nutzung Ideal für Handwerks-, Produktions-, Lager- oder Logistikbetriebe. Das Objekt vereint funktionale Gewerbeflächen mit Bürobereichen und ergänzt diese durch eine großzügige Wohneinheit mit privatem Gartenanteil. Zusatz/Über Uns Herzlich Willkommen bei Felder, Ihrem Spezialisten für Gewerbeimmobilien in Rosenheim, Traunstein, dem Chiemgau und Oberbayern.

Sie möchten mehr Informationen zu diesem Objekt? Gern übersenden wir Ihnen unverbindlich unser aussagekräftiges Exposee. Ein E-Mail oder Anruf genügt.

Die im Exposee angegebenen Daten beruhen auf Angaben des Eigentümers. Für diese Angaben übernehmen wir keine Gewähr. Der Maklervertrag mit uns kommt entweder durch schriftliche Vereinbarung oder auch durch die Inanspruchnahme unserer Maklertätigkeit auf der Basis des Objekt Exposees und seiner Bedingungen zustande.

Unsere Beratungsleistung ist erfolgsorientiert und für Sie bis zum Abschluss eines Vertrages freibleibend. Gern stehen wir Ihnen beratend zur Seite. Wir freuen uns auf Ihren Anruf.

Sie suchen eine Gewerbeimmobilie im Rosenheimer Land, Traunstein, Oberbayern oder dem Chiemgau und möchten sich bei Ihrer Suche auf das Fachwissen und Netzwerk eines starken Partners verlassen können? Sie möchten Ihre Gewerbeimmobilie vermieten oder verkaufen? Sie suchen die passenden Mieter oder Investoren? Dann sollten Sie uns ansprechen und von unserem Bekanntheitsgrad und großem Netzwerk in der Region profitieren.

Wir begleiten Sie vom ersten Kontakt bis zur Unterschrift unter dem Miet- oder Kaufvertrag. Seit über 25 Jahren ist die Firma Felder als der Spezialist für Gewerbeimmobilien im Rosenheimer Immobilienmarkt bekannt. Mehr Immobilien finden Sie auf www.felder-gewerbe.de

Weitere Services

Lust auf eine Besichtigung?
Eine Frage zur Immobilie?
Nachricht hinzufügen
Mit der Nutzung der oben angegebenen Telefonnummer oder durch Klicken auf „Kontaktieren“ akzeptierst Du die Allgemeinen Nutzungsbedingungen, denen Du jederzeit widersprechen kannst. Weitere Informationen zum Datenschutz

Über den Anbieter

Ludwigsplatz 15, 83031 Rosenheim
partner badge
10 Jahre Partnerschaft
Frau Tanja Heise
Frau Tanja HeiseDein Kontakt
Online-ID: 26JYSLTJVCQW
Referenznummer: A1514
Felder. Der Gewerbespezialist GmbH & Co. KG
title
Felder. Der Gewerbespezialist GmbH & Co. KG
Bewertung: 5 von 5 Sternen
Nachricht hinzufügen
Mit der Nutzung der oben angegebenen Telefonnummer oder durch Klicken auf „Kontaktieren“ akzeptierst Du die Allgemeinen Nutzungsbedingungen, denen Du jederzeit widersprechen kannst. Weitere Informationen zum Datenschutz
Wie zufrieden bist du mit dieser Seite (nicht mit der Immobilie selbst)?