Version: 8.26.0Navigation überspringen
PlanetHome Group GmbH
Preis auf Anfrage

Ladenfläche zum Kauf

Attraktiver Gewerbekomplex mit ca. 800 m² mit Aufzug und Stellplätzen in Bestlage von Peißen

Der angebotene Gewerbekomplex befindet sich in zentraler Lage von Peißen, direkt am großen Einkaufszentrum und überzeugt durch seine hervorragende Sichtbarkeit sowie eine sehr gute
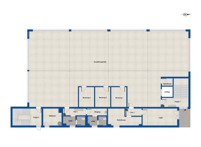
Erreichbarkeit. Das im Jahr ca. 2001 errichtete Objekt steht auf einem ca. 2.191 m² großen Grundstück und bietet eine Gesamtgewerbefläche von ca. 800 m², verteilt auf zwei Etagen. Die Immobilie ist barrierefrei gestaltet und eignet sich ideal für Einzelhandel, Büro, Praxis- oder Dienstleistungsnutzungen. Das Objekt wird nach Verkauf leer übergeben und steht dem Erwerber somit zur sofortigen freien Nutzung zur Verfügung.
Der Zugang erfolgt über eine repräsentative, große elektrische Eingangstür. Ein Aufzug verbindet beide Etagen, zusätzlich stehen zwei separate Treppenhäuser zur Verfügung. Die Klimaanlage wurde im Jahr ca. 2022 vollständig erneuert. Beheizt wird das Objekt über eine Gas-Zentralheizung. Die gedämmte Außenfassade trägt zu einer energieeffizienten Nutzung bei.
Auf dem Grundstück befinden sich insgesamt 22 gepflasterte Außenstellplätze, die sowohl Kunden als auch Mitarbeitern ausreichend Parkmöglichkeiten bieten. Durch die direkte Lage am Einkaufszentrum profitiert der Gewerbekomplex von hoher Frequenz und einer etablierten gewerblichen Umgebung. Insgesamt handelt es sich um eine moderne, funktionale und vielseitig nutzbare Gewerbeimmobilie in attraktiver Zentrumslage von Peißen.

Merkmale

  • Teeküche
  • Personenaufzug
  • 22 Stellplätze
  • Barrierefrei
  • voll klimatisiert
  • Alarmanlage

Grundrisse

Grundrisse
1 / 2

Bausubstanz und Energie

Energieausweis

Endenergieverbrauch (Wärme)

  • Baujahr2001
  • Zustand der ImmobilieMassivhaus
  • HeizungsartZentralheizung
  • EnergieträgerGas
MediumRectangleTop

Preisdetails

Provision für Käufer
5,95 % inkl. MwSt.

Lage

address-icon
PeißenLandsberg (06188)
Der Anbieter hat die genaue Adresse nicht freigegeben
Die Immobilie befindet sich in zentraler und stark frequentierter Lage von Peißen, direkt angrenzend an das große, etablierte Einkaufszentrum. Der Standort zeichnet sich durch eine sehr gute Sichtbarkeit sowie eine hohe Kundenfrequenz aus, was ihn besonders attraktiv für Einzelhandel, Dienstleistungsunternehmen, Praxen oder Büro­nutzungen macht. In der unmittelbaren Umgebung haben sich zahlreiche Handels- und Dienstleistungsbetriebe angesiedelt, wodurch ein lebendiges und wirtschaftlich stabiles Umfeld gegeben ist.
Die verkehrliche Anbindung ist hervorragend: Das Objekt ist sowohl mit dem Pkw als auch mit öffentlichen Verkehrsmitteln gut erreichbar. Über die umliegenden Hauptverkehrsachsen besteht eine schnelle Verbindung in die Innenstadt sowie zu den regionalen und überregionalen Verkehrsnetzen. Die direkt am Objekt vorhandenen Stellplätze gewährleisten eine komfortable Erreichbarkeit für Kunden, Mitarbeiter und Lieferanten.
Insgesamt bietet die Lage eine ideale Kombination aus zentraler Position, hoher Sichtbarkeit, guter Erreichbarkeit und einem attraktiven gewerblichen Umfeld, wodurch der Standort langfristig vielseitig und nachhaltig nutzbar ist.

Weitere Informationen

Stichworte Stellplatz vorhanden, vermietbare Fläche: 800,00 m², Grundstücksfläche: 2.191,00 m², 2 Etagen

Weitere Services

Lust auf eine Besichtigung?
Eine Frage zur Immobilie?
Nachricht hinzufügen
Mit der Nutzung der oben angegebenen Telefonnummer oder durch Klicken auf „Kontaktieren“ akzeptierst Du die Allgemeinen Nutzungsbedingungen, denen Du jederzeit widersprechen kannst. Weitere Informationen zum Datenschutz

Über den Anbieter

Feringastraße 11, 85774 Unterföhring
partner badge
10 Jahre Partnerschaft
Peggy JámborDein Kontakt
Online-ID: 2668U3MI4CUK
Referenznummer: 671745
MediumRectangleTop
Wie zufrieden bist du mit dieser Seite (nicht mit der Immobilie selbst)?