Version: 8.26.0Navigation überspringen
825.000 €
18.063 m² Grundstück
Immowelt logo

Grundstück zum Kauf • provisionsfrei
825000 €
45,67 €/m²
18.063 m² Grundstück

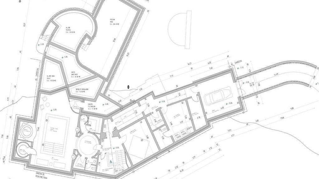
Finca-Grundstück mit 18.000 m² Land, Baugenehmigung,eigenen Brunnen und Stromanschluß in S'Alqueria Blanca

Zwischen S´alqueria Blanca und Calonge in einer traumhaft schönen Landschaft in absoluter Ruhelage gelegen ist dieses wirklich einmalige Finca-Grundstück. Die ehemals 3 Parzellen sind bereits zusammengelegt. Die gesamten ca. 18.063 m² Grund in leichter Hanglage sind komplett mit einer Natursteinmauer eingefriedet. Das Grundstück hat einen tollen Zuschnitt, verfügt über ein kleines Wäldchen, eine Mandelbaumplantage, hat eine asphaltierte Zufahrt und ist von der Straße aus nicht einzusehen. Trotzdem genießt man nach hinten einen beeindruckenden Landschaftsblick. Der Anschluss an die öffentliche Stromversorgung ist genehmigt und die Gebühren sind bezahlt. Außerdem besitzt dieses Grundstück einen eigenen legalen Tiefbrunnen. Dieses Finca-Grundstück wird inklusive eines genehmigten Basisprojektes für ein exklusives Landhaus verkauft. Genehmigt sind 491 m² bebaute Fläche in EG plus 1.OG, dazu 250 m² SPA-Bereich im Tiefparterre mit indoor Pool, 133 m² Garage in separatem Gebäude, Schwimmbad mit 84 m² Wasserspiegel sowie 230 m² teils überdachte Terrassen.
Einige der schönsten Badebuchten im Südosten von Mallorca, der Golfplatz Vall D´or sowie die Yachthäfen von Portopetro, Cala D´or und Portocolom sind innerhalb von 15 Minuten zu erreichen. Die kleine Ortschaft S'alqueria Blanca gehört zu der Gemeinde Santanyi im Südosten von Mallorca. Die Nähe zu dem Golfplatz Vall D´or, den Yachthäfen von Portopetro und Cala D´or sowie zu den Stränden Cala Mondrago und S´Amarador sind nur einige der vielen Vorzüge die dieser Ort zu bieten hat. S´alqueria Blanca gehört zweifelsfrei zu den begehrtesten Wohnlagen im Südosten von Mallorca.
Preis: 825.000 €

Merkmale

  • 18.063 m² Grundstück
  • Bergblick, Fernblick
  • teilweise erschlossen
  • Strom, Telekommunikation, Wasser
Immowelt logo

Preisdetails

Kaufpreis
825000 €
45,67 €/m²
Provision für Käufer
provisionsfrei

Lage

address-icon
S´Alqueria Blanca
Der Anbieter hat die genaue Adresse nicht freigegeben
Die Ortschaft SAlqueria Blanca (auf Deutsch: Das weiße Gehöft) liegt im Südosten von Mallorca im Gemeindegebiet von Santanyi. In SAlqueria Blanca stehen einheimische Wohnhäuser und einige wenige Ferienhäuser. Wer hier seinen Urlaub verbringt, der kann sich an den schönen Stränden Cala Mondrago und Cala Sanau sonnen, die man in wenigen Minuten per Auto erreicht. In dem kleinen und auch heute noch sehr verschlafene Örtchen S`Alqueria Blanca leben gerade einmal eintausend Einwohner leben und und wissen die Vorzüge ihres Ortes zu genießen. Zwischen Santanyí und SAlqueria Blanca liegt das Kloster Oratori de la Consolació;. Dieses wurde im 16. Jahrhundert erbaut und lohnt einen Besuch, alleine schon der Aussicht wegen. Man hat von hier aus einen wunderbaren Ausblick über die Ost- und Südküste Mallorcas. Rund ums Kloster holt sich die Natur diesen heiligen Ort langsam zurück. Einmal im Jahr, jedes Jahr nach Ostern, ist es für ein paar Tage mit der Ruhe im Ort vorbei: Zu diesem Zeitpunkt kommen die Bewohner von Santanyi auf eine Wallfahrt nach S`Alqueria Blanca, die Einheimischen nennen dieses christliche Ereignis „Romeria“ und die Besucher sind natürlich herzlich eingeladen, es ihnen gleichzutun. Jeden Dienstag findet in SAlqueria Blanca ein Wochenmarkt statt, der die Touristen aus der Umgebung mit frischem Obst und Gemüse, Kleidung, Lederwaren und Schmuck anzieht. Der Markt findet auf dem Platz vor der Kirche statt. Auf einer leichten Anhöhe gelegen erblickt man die Kirche schon von weitem. Wie in vielen Dörfern auf Mallorca bleiben die Kirchen außerhalb der Messe meist verschlossen. In SAlqueria Blanca kann man aber zumindest einen Blick durch die Glastür werfen. Wenn man Glück hat, trifft man auch Vikar Pere ­Orpi an, der sich um das Gotteshaus kümmert. Seitdem kostbare Gegenstände entwendet wurden, müssen die Kirchentore verschlossen bleiben. Rund um die Kirche findet man auch zwei oder drei spannende Geschäfte in denen man ohne Gedrängel einen Einkaufsbummel machen kann.

Weitere Informationen

Besichtigungstermine Nach Vereinbarung

Weitere Services

Lust auf eine Besichtigung?
Eine Frage zur Immobilie?
Nachricht hinzufügen
Mit der Nutzung der oben angegebenen Telefonnummer oder durch Klicken auf „Kontaktieren“ akzeptierst Du die Allgemeinen Nutzungsbedingungen, denen Du jederzeit widersprechen kannst. Weitere Informationen zum Datenschutz

Über den Anbieter

Calle Bisbe Verger 28, 07650 SANTANYÍ
Andreas MeierDein Kontakt
Online-ID: 2345Z2TKGZXA
Referenznummer: G02835
Wie zufrieden bist du mit dieser Seite (nicht mit der Immobilie selbst)?