

Art of Estate – Immobilienvermittlung
Herr Dennis Greinert
017 ···
Nr. anzeigenPreise & Kosten
Kaution
3570
Warum sehe ich diese Anzeige? – Du siehst diese Anzeige basierend auf Ihrer Navigation auf unserer Website und den Suchkriterien, die du verwendet hast.
Lage
Die Wohnung liegt im wunderschönen und begehrten Stadtteil List. Hier trifft vieles Aufeinander: kurze Wege, eine sehr gute Infrastruktur sowie zahlreiche Einkaufsmöglichkeiten, Bäcker, Bars und Restaurants.
Im Süd-Osten grenzt die Eilenriede an die List. Sie ist der größte Stadtwald Europas und eigenet sich...
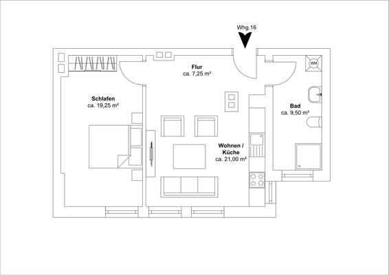
Die Wohnung
Wohnungslage
1. Geschoss
Bezug
sofort
Wohnanlage
Energie & Heizung
Warum sehe ich diese Anzeige? – Du siehst diese Anzeige basierend auf Ihrer Navigation auf unserer Website und den Suchkriterien, die du verwendet hast.
Weitere Energiedaten
Heizungsart
Luft-/Wasser-Wärmepumpe, Zentralheizung
Details
Objektbeschreibung
Die Chance für Wohnungssuchende mit hohem Anspruch eine ganz besondere Wohnung in opimaler Lage möbliert zu mieten.
Wunderschöne 2-Zimmer-Wohnung mit großem Wohn/Esszimmer, Echtholzboden und Badezimmer mit Fenster und hochwertiger Ausstattung.
Die 2-Zimmer-Wohnung bietet Ihnen eine großzügige Wohnfläche von rund 57m²...
Ausstattung
- Voll möblierte 2-Zimmerwohnung
- Internet inkl.
- durchdachter & effektive Grundrisse
- optimale Infrastruktur
- Erstbezug nach hochwertiger Sanierung
- begehbare & gefließte Dusche
- hochwertige Küche mit Marken-Einbaugeräten
- Eiche Echtholzparkett
- Einbau-Spots im Flur &...
Preisinformation
Nettorendite Soll in %: 84,06
Soll-Mieteinnahmen pro Jahr: 290.000,00 EUR
Weitere Informationen
Sonstiges
Die Wohnung wird vollständig möbliert vermietet.
Energiepass
Energieausweis wird bei Besichtigung vorgelegt.
Stichworte
Anzahl der Schlafzimmer: 1, Anzahl der Badezimmer: 1, Anzahl der Wohneinheiten: 20, Bundesland: Niedersachsen, modernisiert: 2024
Dokumente
Anbieter der Immobilie
Art of Estate – Immobilienvermittlung
Kastanienallee 17C, 14052 Berlin

Online-ID: 2jzzh5b
Referenznummer: k8-mbl_verm
Finde Angebote wie dieses
Hier geht es zu unserem Impressum, den Allgemeinen Geschäftsbedingungen, den Hinweisen zum Datenschutz und nutzungsbasierter Online-Werbung.