Version: 8.25.1Navigation überspringen
ohne-makler.net - Immobilien selbst vermarkten
199.000 €
4 Zimmer  •  100 m²  •  3. Geschoss

Wohnung zum Kauf • provisionsfrei
199000 €
1.990 €/m²
4 Zimmer  •  100 m²  •  3. Geschoss

Attraktives WG-Renditeobjekt in Top-Lage von Wuppertal-Elberfeld

Kapitalanlage & Entwicklungspotenzial

Diese helle Altbauwohnung im 3. Obergeschoss mit ca. 100 m² Wohnfläche befindet sich in gefragter, zugleich grüner Lage rund um den Platz der Republik in Wuppertal-Elberfeld.

Die Wohnung ist als Wohngemeinschaft vermietet und stellt ein nachhaltig attraktives Renditeobjekt in einem stabil nachgefragten Wohnquartier dar. Die Zimmer werden einzeln vermietet und die Mieteinnahmen belaufen sich auf 1.270 € monatlich.

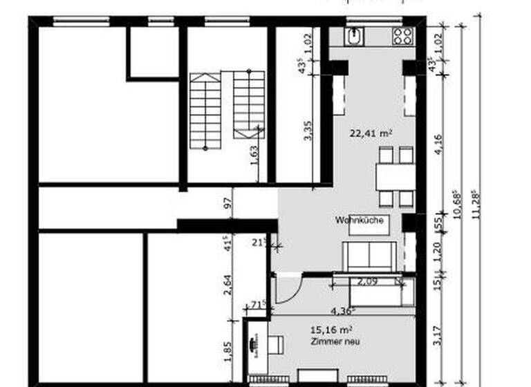
Die Wohnung - WG-optimierter Grundriss mit Altbaucharme

Nehmen Sie Kontakt auf, um einen Video Rundgang zu erhalten:
* ca. 100 m² Wohnfläche
* 4 gut geschnittene, helle Zimmer (ca. 13-20 m²)
* große, voll ausgestattete Wohnküche als zentraler Gemeinschaftsbereich
* ein Zimmer mit eigenem WC (selten & besonders gefragt)
* renovierter Altbau in gepflegtem Zustand

Die Kombination aus Altbaucharakter, modernisiertem Zustand und gemeinschaftsorientiertem Grundriss sorgt für eine langfristig stabile Vermietbarkeit an Studierende und junge Berufstätige.

Investment-Fazit
? WG-optimierter Grundriss
? zentrale & gefragte Mikrolage
? stabile Eigentümergemeinschaft
? kurzfristiges Mietsteigerungspotenzial
? attraktiver Kaufpreisfaktor (~13)

Diese Immobilie bietet ein ausgewogenes Verhältnis aus Einstiegspreis, laufender Rendite und nachhaltigem Entwicklungspotenzial in einer dauerhaft gut vermietbaren Lage von Wuppertal.

Merkmale

  • Bezug: sofort
  • vermietet
  • 3. Geschoss
  • Einbauküche
  • Badewanne
  • Keller
  • Bodenbelag: Laminat
Keller, Vollbad, Einbauküche, Gäste-WC, Laminat

Grundrisse

Grundrisse
1 / 1

Realisiere Dein Projekt

Bausubstanz und Energie

Energieausweis

D
  • Baujahr1950
  • Zustand der ImmobilieGepflegt
  • HeizungsartZentralheizung
  • EnergieträgerGas
MediumRectangleTop

Preisdetails

Kaufpreis
199000 €
1.990 €/m²
Hausgeld
462 €
Provision für Käufer
provisionsfrei; keine Provision, courtagefrei
Geschätzte Gesamtkosten
215.915 €1
Kaufpreis
199.000 €
Notarkosten (1,5%)
2.985 €
Grunderwerbsteuer (6,5%)
12.935 €
Grundbucheintrag (0,5%)
995 €
1Der angezeigte Wert ist eine automatisch berechnete Schätzung von immowelt.
2Bei den Angaben handelt es sich um ortsübliche Werte. Individuelle Kosten können abweichen.

Lage

address-icon
ElberfeldWuppertal (42107)
Der Anbieter hat die genaue Adresse nicht freigegeben
Mikrolage - Zentral, grün & hervorragend angebunden

Die Lage zählt zu den beliebtesten studentisch-kreativen Wohnlagen Elberfelds:
? Nähe Hauptbahnhof
? schnelle Erreichbarkeit von Universität & Campus Haspel
? Stadtpark & Nordbahntrasse fußläufig
? lebendiges Umfeld rund um Luisenstraße & Mirker Bahnhof
? verkehrsberuhigtes Altbauquartier

Die Kombination aus zentraler Infrastruktur und hoher Freizeitqualität sichert eine dauerhaft starke Nachfrage.
Infrastruktur (im Umkreis von 5 km):
Apotheke, Lebensmittel-Discount, Allgemeinmediziner, Kindergarten, Grundschule, Hauptschule, Realschule, Gymnasium, Gesamtschule, Öffentliche Verkehrsmittel

Weitere Informationen

Sonstiges Heizungsart: Zentralheizung
Energieträger: Gas


Makleranfragen nicht erwünscht. Nach § 7 UWG sind unaufgeforderte Kontaktaufnahmen durch Makler ohne ausdrückliche Einwilligung des Empfängers verboten!

ohne-makler (OM) ist weder Anbieter noch Vermittler der Immobilie. OM betreibt eine Plattform für Immobilieneigentümer, die unter anderem die gleichzeitige Veröffentlichung einzelner Inserate auf mehreren Immobilienportalen ermöglicht. Die Inhalte dieser Inserate werden ausschließlich von Dritten verantwortet. Für die Richtigkeit, Vollständigkeit oder Rechtmäßigkeit der Angaben übernimmt OM keine Haftung. Hinweise auf mögliche Rechtsverstöße können jederzeit gemeldet werden und werden nach Prüfung umgehend bearbeitet. Stichworte Nutzfläche: 100,00 m², Anzahl der Schlafzimmer: 4, Anzahl der Badezimmer: 2, Anzahl der separaten WCs: 1, Bundesland: Nordrhein-Westfalen, 4 Etagen

Weitere Services

Lust auf eine Besichtigung?
Eine Frage zur Immobilie?
Nachricht hinzufügen
Mit der Nutzung der oben angegebenen Telefonnummer oder durch Klicken auf „Kontaktieren“ akzeptierst Du die Allgemeinen Nutzungsbedingungen, denen Du jederzeit widersprechen kannst. Weitere Informationen zum Datenschutz

Über den Anbieter

Humboldtstr. 25 A, 21509 Glinde
partner badge
Partnerschaft
Privat von Hr. PopoloDein Kontakt
Keine Telefonnummer hinterlegt
Keine Telefonnummer hinterlegt
Online-ID: 2654AZI7S6C9
Referenznummer: 433844
ohne-makler.net - Immobilien selbst vermarkten
ohne-makler.net - Immobilien selbst vermarkten
Nachricht hinzufügen
Mit der Nutzung der oben angegebenen Telefonnummer oder durch Klicken auf „Kontaktieren“ akzeptierst Du die Allgemeinen Nutzungsbedingungen, denen Du jederzeit widersprechen kannst. Weitere Informationen zum Datenschutz
MediumRectangleTop
MediumRectangleBottom
MediumRectangleTop
Wie zufrieden bist du mit dieser Seite (nicht mit der Immobilie selbst)?