Version: 8.26.0Navigation überspringen
Fachpartner Gewerbe-Immobilien GmbH
Mietkosten auf Anfrage
175 m² Verkaufsfläche

Verkaufsfläche zur Miete - Erstbezug • provisionsfrei
Mietkosten auf Anfrage
175 m² Verkaufsfläche

DICHTER4 Ulm - Quadratmeter neu gedacht

In unmittelbarer Nähe zum Ulmer Hauptbahnhof entstehen im neu errichteten Quartier DICHTER4 moderne und flexibel nutzbare Gewerbeflächen mit hoher Sichtbarkeit und Frequenz. Die im Erdgeschoss gelegenen Flächen überzeugen durch großzügige Fensterfronten, eine zeitgemäße Architektur und vielfältige Ausbaumöglichkeiten, die sich individuell an die Anforderungen des zukünftigen Nutzers anpassen lassen.
Das lebendige Umfeld, geprägt durch neues Wohnen, Arbeiten und urbane Aufenthaltsqualität, sorgt für ein attraktives Kundenpotenzial. Dank der hervorragenden Anbindung an den öffentlichen Nahverkehr sowie an die B28 ist der Standort optimal erreichbar und bietet beste Voraussetzungen für eine nachhaltige gewerbliche Nutzung.

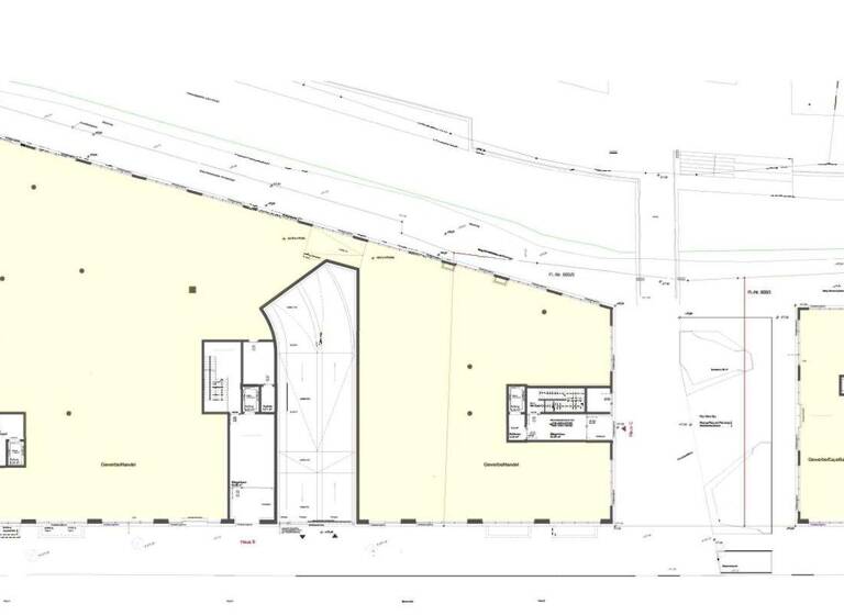
Grundrisse

Grundrisse
1 / 1

Bausubstanz und Energie

  • Baujahr2026
  • Zustand der ImmobilieErstbezug
MediumRectangleTop

Mietkosten

Miete auf Anfrage
Provision für Mieter
provisionsfrei
Kaution
keine Angabe

Lage

address-icon
WeststadtUlm (89077)
Der Anbieter hat die genaue Adresse nicht freigegeben
Die Immobilie liegt in einem neu entwickelten Quartier, nur wenige Gehminuten vom Ulmer Hauptbahnhof entfernt und damit optimal an den ÖPNV sowie die B28/B10 angebunden. Das Umfeld ist geprägt von moderner Wohn- und Geschäftsbebauung mit hoher Frequenz und guter Sichtbarkeit. Einkaufsmöglichkeiten, Gastronomie und Dienstleistungen befinden sich in direkter Nähe und sorgen für eine starke Standortqualität. Potenzial für Gewerbetreibende verschiedenster Branchen.

Weitere Informationen

Sonstiges Bei Abschluss eines Übernahmevertrages berechnen wir an den Übernehmer eine Provision. Diese beträgt bei Kauf 4 % (= 4,76 % inkl. USt.) aus dem Kaufpreis, bei Miete oder Pacht jeweils 3,6 Nettomonatsmieten (= 4,28 Monatsmieten inkl USt.), bei Miet- oder Pachtverträgen mit einer Laufzeit unter 3 Jahren (exklusive Verlängerungsoptionen) beträgt die Provision 2,5 Nettomonatsmieten (2,98 Monatsmieten inkl. USt.), bei Erbbaurechten jeweils laufzeitunabhängig 3 % (= 3,57 % inkl. USt.) aus dem Zehnjahreserbbauzins, bei Nachweis bzw. Vermittlung sonstiger Leistungen 3 % (= 3,57 % inkl. USt.) aus dem Vertragswert. Zur Ermittlung einer Provision zählen zum Miet-, Pacht- oder Kaufpreis sämtliche auf Dauer beim Verkäufer, bzw. Vermieter verbleibenden Geldleistungen des Übernehmers (z. B. für Ausstattung, Einrichtung, usw.). Eine Provision wird fällig mit Abschluss des Übernahmevertrages und versteht sich zuzüglich gesetzlicher Umsatzsteuer. Im Rahmen unserer Nachweis- bzw. Vermittlungstätigkeit sind wir auch für unsere Auftraggeberseite entgeltlich tätig.

Unser Angebot beruht auf Angaben unseres Auftraggebers, hierfür übernehmen wir keine Gewähr. Pläne haben keinen Anspruch auf Richtigkeit und Vollständigkeit. Die Darstellungen der Einrichtung und Ausstattung der Immobilie dienen lediglich zu Illustrationszwecken. Sie stellen weder mitverkaufte Gegenstände, Zubehör noch eine verbindliche Zusage der Beschaffenheit der Immobilie dar. Irrtum sowie Zwischenverkauf bzw. -vermietung behalten wir uns ausdrücklich vor.

Mit Anfrage auf unser Immobilienangebot und Übermittlung Ihrer Daten erteilen Sie uns Ihr Einverständnis und willigen ein, dass wir Ihre Daten speichern sowie ein Suchprofil auf Basis des angefragten Objektes erstellen dürfen, so dass wir Sie als Kunde frühzeitig über immobilienspezifische Angebote und Dienstleistungen der Fachpartner Gewerbe-Immobilien GmbH (fgi) informieren und unsere Mitarbeiter Sie zu diesem Zwecke telefonisch, postalisch oder per E-Mail kontaktieren dürfen. Diese Einwilligungen können Sie jederzeit widerrufen. Ebenso wie Sie der Speicherung Ihrer Daten jederzeit entsprechend den Regelungen der EU-DSGVO widersprechen können. In diesem Zusammenhang weisen wir zudem auf unsere Datenschutzerklärung (www.fgi.de/datenschutz.html) hin.

Weiterhin finden unsere Allgemeinen Geschäftsbedingungen unter www.fgi.de/agb.html Anwendung. Stichworte Gesamtfläche: 175,00 m², Distanz zum Hauptbahnhof: 2.00

Weitere Services

Lust auf eine Besichtigung?
Eine Frage zur Immobilie?
Mit einer persönlichen Nachricht hast du bessere Chancen auf eine Antwort.
Mit der Nutzung der oben angegebenen Telefonnummer oder durch Klicken auf „Kontaktieren“ akzeptierst Du die Allgemeinen Nutzungsbedingungen, denen Du jederzeit widersprechen kannst. Weitere Informationen zum Datenschutz

Über den Anbieter

Marktstraße 2, 73033 Göppingen
partner badge
10 Jahre Partnerschaft
Herr Mathias VostarekDein Kontakt
Online-ID: 263Q6HNWLWHY
Referenznummer: 101672/01
MediumRectangleTop
Wie zufrieden bist du mit dieser Seite (nicht mit der Immobilie selbst)?