Version: 8.25.1Navigation überspringen
Werde Eigentümer GmbH
549.280 €
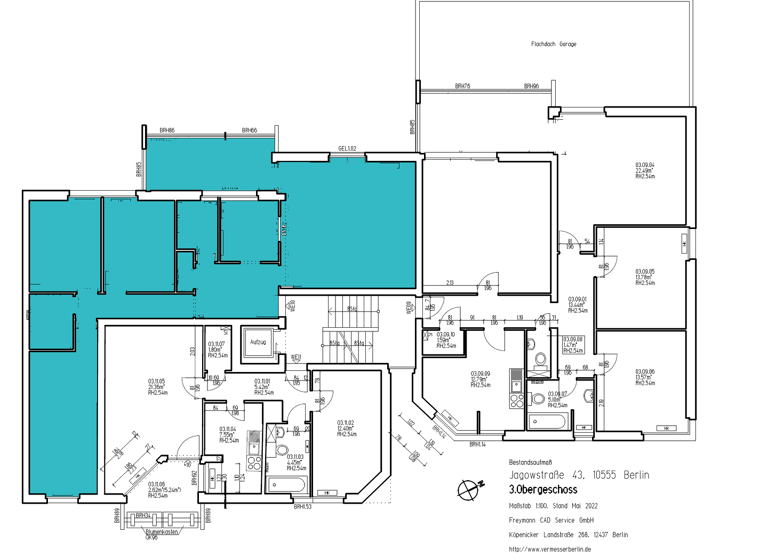
4 Zimmer  •  90,8 m²  •  3. Geschoss

Wohnung zum Kauf • provisionsfrei
549280 €
6.050 €/m²
4 Zimmer  •  90,8 m²  •  3. Geschoss

Wohnen im Westfälischen Viertel - 4-Zimmerwohnung mit Balkon

Architekten-Haus mit großzügigen Grundrissen

Die Architekt:innen der Jagowstraße 43 scheinen vor dem Entwurf des Hauses einen ausgedehnten Spaziergang durch die Bauhausviertel in Tel Aviv, Stuttgart oder Weimar gemacht zu haben - so offensichtlich wie die Inspirationen aus dieser Zeit den Bau dieses Mehrfamilienhauses geprägt haben.

Untypisch für das Baujahr 1980/81 wurde sich nicht mit 08/15-Architektur zufriedengegeben -die Jagow43 verfügt über Ausdruck und eine klare Formensprache. Sehr zum Vorteil für Sie, wurden schon in der Konzeption dieses Gebäudes großzügige und familien-praktikable Grundrisse ebenso angelegt, wie ein Fahrstuhl, angemessene Balkonflächen und licht-optimierende Fenster für alle Räume. Mit dieser Basis wurde in den letzten Jahrzehnten nicht nur pfleglich umgegangen, sondern es wurden - bis heute - einige Innovationszyklen im Haus verwirklicht.

Besonderes Augenmerk wurde hierbei auf die technische Aufbereitung des Gemeinschaftseigentums gelegt.
Von der Erneuerung der Energieversorgung (die Umstellung auf Gasbrennwerttherme erfolgte im Herbst 2025), der Hauseingangstür, der Klingel- und Briefkastenanlage, über den einladenden neuen hellweißen Anstrich der Fassade , bis zu den Treppenhausaufarbeitungen - jedes Detail wurde sorgfältig abgestimmt. Hier ist alles vorbildlich hergerichtet.

Es warten insgesamt 17 Wohnungen auf neue Besitzer:innen. Dabei handelt es sich sowohl um freie als auch vermietete Einheiten, welche vor allem für Kapitalanleger von Interesse sein dürften.

Merkmale

  • 3. Geschoss
  • Personenaufzug
  • Außen-Stellplatz
  • Gäste-WC
  • Balkon
  • Badewanne

Grundrisse

Grundrisse
1 / 2

Realisiere Dein Projekt

Bausubstanz und Energie

Energieausweis

C
  • Baujahr1981
  • EnergieträgerGas
MediumRectangleTop

Preisdetails

Kaufpreis
549280 €
6.050,01 €/m²
Hausgeld
310.66 €
Provision für Käufer
provisionsfrei
Weitere Preisinformationen
1 Stellplatz
Geschätzte Gesamtkosten
593.222 €1
Kaufpreis
549.280 €
Notarkosten (1,5%)
8.239 €
Grunderwerbsteuer (6%)
32.957 €
Grundbucheintrag (0,5%)
2.746 €
1Der angezeigte Wert ist eine automatisch berechnete Schätzung von immowelt.
2Bei den Angaben handelt es sich um ortsübliche Werte. Individuelle Kosten können abweichen.

Lage

address-icon
MoabitBerlin (10555)
Der Anbieter hat die genaue Adresse nicht freigegeben
Von der Spree umgeben - das Westfälische Viertel

Die Jagowstraße liegt im südlichen Zipfel des Westfälischen Viertels, einem charmanten und ruhigen Stadtteil im Berliner Bezirk Mitte. Dieser Kiez zeichnet sich durch eine harmonische Mischung aus Alt- und Neubaubauarchitektur, grünen Oasen und einem urbanen, kulturellen Flair aus. Die Jagowstraße selbst, eine von Bäumen gesäumte Straße, ist bekannt für ihre entspannte Atmosphäre.

In der Jagowstraße und den angrenzenden Straßen finden sich zahlreiche individuelle Geschäfte und kleine Boutiquen. Die Buchkantine ist ein beliebter Ort für ein gesundes Frühstück, und zeitgleich ein liebevoll eingerichteter Buchladen, der sich auf Literatur von Berliner Autoren und seltene Bildbände spezialisiert hat. Ein weiterer Geheimtipp ist ein Vintage-Möbelgeschäft, das Designliebhaber mit sorgfältig restaurierten Mid-Century-Stücken begeistert.
Trotz der zentralen Lage bietet das Westfälische Viertel viel Grün. Der kleine und große Tiergarten und die Wege entlang der Spree sind ideal für Spaziergänge, Jogging oder Picknicks. Beide Parks sind vom Viertel aus schnell erreichbar und bieten eine willkommene Auszeit vom Großstadttrubel.

Die Jagowstraße im Westfälischen Viertel ist ein Ort, der den besonderen Charme Berlins widerspiegelt: urban, vielseitig und kulturell reich. Ob für einen Spaziergang, eine kulturelle Entdeckungstour oder einen entspannten Restaurantbesuch - die Gegend rund um die Jagowstraße hat für jeden etwas zu bieten.

Weitere Informationen

Sonstiges Die Bilder zeigen den aktuellen Zustand der Einheit und des Gebäudes. Die durch die WEG durchgeführten und in Planung befindlichen Maßnahmen sind im Preis bereits enthalten.

Dieses Angebot richtet sich sowohl an Selbstnutzer zum zeitnahen Bezug als auch an Kapitalanleger zur zeitnahen Vermietung.
Diesbezüglich weisen wir ausdrücklich auf das Berliner Verbot der Zweckentfremdung von Wohnraum hin (Zweckentfremdungsverbotsgesetz und der Zweckentfremdungsverbotsverordnung in der jeweils geltenden Fassung).
Soweit kein Interesse an alsbaldiger Selbstnutzung oder Vermietung besteht, bitten wir von Anfragen abzusehen.

Wir freuen uns auf Ihre Anfragen! Stichworte Stellplatz vorhanden, Anzahl Balkone: 1, Balkon-Terrassen-Fläche: 10,10 m², Bundesland: Berlin, 5 Etagen

Weitere Services

Lust auf eine Besichtigung?
Eine Frage zur Immobilie?
Nachricht hinzufügen
Mit der Nutzung der oben angegebenen Telefonnummer oder durch Klicken auf „Kontaktieren“ akzeptierst Du die Allgemeinen Nutzungsbedingungen, denen Du jederzeit widersprechen kannst. Weitere Informationen zum Datenschutz

Über den Anbieter

Töpferwall 2a, 17207 Röbel/Müritz
Herr Sebastian GhesquierDein Kontakt
Online-ID: 263YX3GKZERU
Referenznummer: WE260327-01-WE10
Werde Eigentümer GmbH
Werde Eigentümer GmbH
Nachricht hinzufügen
Mit der Nutzung der oben angegebenen Telefonnummer oder durch Klicken auf „Kontaktieren“ akzeptierst Du die Allgemeinen Nutzungsbedingungen, denen Du jederzeit widersprechen kannst. Weitere Informationen zum Datenschutz
MediumRectangleTop
MediumRectangleBottom
MediumRectangleTop
Wie zufrieden bist du mit dieser Seite (nicht mit der Immobilie selbst)?