Version: 8.24.0Navigation ĂĽberspringen
1.747 €
5 Zimmer  â€˘  109,2 m²  â€˘  frei ab sofort

Reihenmittelhaus zur Miete
1.747 €
5 Zimmer  â€˘  109,2 m²  â€˘  frei ab sofort

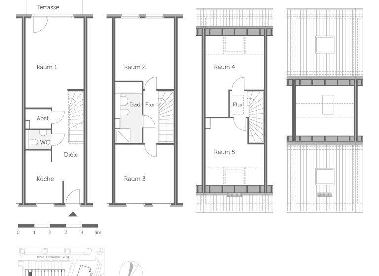
Modernes Reihenhaus ĂĽber 3 Etagen mit Gartenanteil in Falkenberg ab sofort neu zu vermieten

Zur Neuvermietung steht ein attraktives Reihenhaus über 3 Etagen mit einem zusätzlich begehbaren Spitzboden in der Ortschaft Falkenberg.
Im Erdgeschoss des Objekts befindet sich neben dem Wohnzimmer, ein offener Küchenbereich (ohne Einbauküche), ein Gäste-WC und der Medienraum. Über das Wohnzimmer erreichen Sie die Terrasse mit dem angrenzenden Gartenbereich. In der ersten Etage befinden sich zwei Zimmer sowie das geflieste Bad mit Badewanne und Dusche. In der 2. Etage befinden sich zwei weitere Zimmer. Abstellmöglichkeiten sind im zugänglichen Spitzboden vorhanden. Das Objekt verfügt über strapazierfähige Vinylböden und Rollläden im Erdgeschoss. Bei Interesse an einem Besichtigungstermin betätigen Sie einfach die Schaltfläche "Anfrage senden" oder "Anbieter kontaktieren" und geben die erforderlichen Daten im Formularfeld ein.

Merkmale

  • frei ab sofort
  • Haustiere erlaubt
  • Keller
  • Gäste-WC
  • Balkon
  • Garten
Badewanne, Dusche, Fliesenboden, Barrierearmer Zugang bis zum Mietobjekt, Fernheizung/Zentralheizung, Fern-/Zentralwarmwasserversorgung, Kunststoff-Bodenbelag, Steinboden, Jalousien

Grundrisse

Grundrisse
1 / 1

Virtueller Rundgang

3D tour

Realisiere Dein Projekt

Bausubstanz und Energie

Energieausweis

A
  • Baujahr2021
  • EnergieträgerFernwärme, Blockheizkraftwerk

Mietkosten

Warmmiete
2.055,04 €
Kaltmiete
16 €/m²
1.747,04 €
Nebenkosten
195 €
Heizkosten
113 €
Kaution
5241,12 €
Weitere Preisinformationen
Nettokaltmiete: 1.747,04 EUR

Lage

address-icon
David-Friedländer-Weg 121, Falkenberg, Berlin (13057)
Der Stadtteil Falkenberg liegt zwischen Ahrensfelder Chaussee und dem renaturierten Gehrensee, er gehört zu dem Stadtbezirk Berlin-Lichtenberg. Falkenberg zeichnet sich durch seinen ländlichen Charakter aus. Das Gebiet ist durchzogen von mehreren kleinen Gewässern und viel Grün. Die S-Bahnstation Ahrensfelde erreichen Sie in ca. 15 Gehminuten um dann in 30 Minuten das Stadtzentrum zu erreichen. Für die Nahversorgung ist im näheren Umfeld gesorgt, Schulen und Kindergärten sind ebenfalls nur wenige Kilometer entfernt.

Weitere Informationen

Sonstiges Hinweis zu Ihrem Schutz: Wir vermieten provisionsfrei gemäß § 2 WoVermG. Personen, die im Auftrag der Gewobag tätig sind, dürfen keine Provision von Ihnen verlangen.

Anbieter
EigentĂĽmer/Vermieter oder Verwalter des jeweiligen Mietobjekts ist Gewobag Wohnungsbau-Aktien- gesellschaft Berlin. Die Gewobag MB Mieterberatungsgesellschaft mbH ĂĽbernimmt den Vermietungsservice fĂĽr diese Gesellschaft. Weitere Informationen finden Sie unter www.gewobag.de/datenschutz . Stichworte Anzahl Balkone: 1, 2 Etagen

Weitere Services

Lust auf eine Besichtigung?
Eine Frage zur Immobilie?
Nachricht hinzufĂĽgen
Mit der Nutzung der oben angegebenen Telefonnummer oder durch Klicken auf „Kontaktieren“ akzeptierst Du die Allgemeinen Nutzungsbedingungen, denen Du jederzeit widersprechen kannst. Weitere Informationen zum Datenschutz

Ăśber den Anbieter

Alt-Moabit 101 A, 10559 Berlin
Gewobag MB Mieterberat.ges. mbH (Vermietungs-Service)Dein Kontakt

Weitere Unterlagen

Online-ID: 2nrnf5p
Referenznummer: 0100/02558/2411/0214
Gewobag Wohnungsbau Aktiengesellschaft Berlin
Bewertung: 4,3 von 5 Sternen
Nachricht hinzufĂĽgen
Mit der Nutzung der oben angegebenen Telefonnummer oder durch Klicken auf „Kontaktieren“ akzeptierst Du die Allgemeinen Nutzungsbedingungen, denen Du jederzeit widersprechen kannst. Weitere Informationen zum Datenschutz
Wie zufrieden bist du mit dieser Seite (nicht mit der Immobilie selbst)?