Version: 8.22.4Navigation überspringen
742 €
2 Zimmer
Immowelt logo

Ladenfläche zur Miete
741.63 €
Nettomiete zzgl. NK
2 Zimmer

Geschäftslokal mit Lager in der Fußgängerzone Mödling

Werte InteressentInnen!

Sofern Sie eine Besichtigung wünschen, füllen Sie bitte das Formular unter folgendem Link aus:

www.sulek.immobilien/besichtigung [http://www.sulek.immobilien/besichtigung] (bitte Herrn Renner - Brühler Straße auswählen!).

Herzlichen Dank!

*************************************

ALLES AUF EINEN BLICK

* direkt in der Mödlinger Fußgängerzone
* Stilaltbau mit nur 10 Einheiten
* Straßeneingang mit Geschäftsfläche
* optionaler ca. 21m² großer Lagerraum (für zusätzlich € 200 Brutto pro Monat)
* Nahversorgung in Gehreichweite

*************************************

DIE GEWERBEFLÄCHE

In einem Altbau im Herzen der Mödlinger Fußgängerzone gelangt dieses attraktive Geschäftslokal zur Vermietung, welches sich hervorragend für verschiedenste Nutzungen wie Einzelhandel, Buchhandlung, Pop-up-Store, Büro oder Atelier eignet.

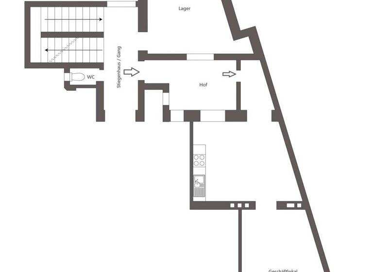
Das Mietobjekt bietet eine großzügige Verkaufsfläche von ca. 40 m² mit breiter Fensterfront und direktem Straßenzugang - ideal zur Präsentation Ihrer Produkte. Aktuell wird das Mietobjekt als Kunst- und Handwerksgeschäft genutzt. Die monatliche Miete beträgt € 995,00 (inkl. Betriebskosten und USt).

Zusätzlich kann ein praktischer Lagerraum (Fotos 15-17) mit ca. 21 m² und separatem Zugang über das Stiegenhaus kann für € 200 (inkl. Betriebskosten und USt) angemietet werden. Bei Bedarf kann im Abstimmung mit der Eigentümerin auch ein direkter Zugang vom Geschäftslokal zum Lagerraum geschaffen werden. Ein WC zur gemeinsamen Nutzung mit einer weiteren Einheit im Haus ist ebenso vom allgemeinen Stiegenhaus zu erreichen.

Die Beheizung erfolgt mittels Gasetagenheizung; Strom- und Gaskosten sind nicht in der Miete enthalten und werden verbrauchsabhängig abgerechnet.

Die Vermietung erfolgt bei Neugründung befristet auf 5 Jahre mit Verlängersoption. Bei Übersiedlung oder Erweiterung eines bestehenden Geschäfts erfolgt die Befristung auf 10 Jahre, wobei Seitens der Eigentümerin explizit eine langfristige Anmietung gewünscht ist.

DIE LAGE.

Das Objekt befindet sich direkt in der Fußgängerzone, im Herzen der Mödlinger Altstadt und bietet somit eine gute Frequenzlage, sowie Sichtbarkeit nach Außen. Der Bahnhof Mödling ist binnen 15 Minuten zu Fuß bzw. binnen 8 Minuten mit dem Bus erreichbar und bietet direkten Anschluss an diverse Schnellbahn- und Buslinien. Es führt ein direkter Radweg von der Fußgängerzone, den Mödlingbach entlang, bis zum Bahnhof Mödling.

HINWEIS:

* Bitte übermitteln Sie bei Interesse Informationen zur gewünschten Nutzungsart und ob es sich um eine Neugründung oder um eine Übersiedlung eines bestehenden Standortes handelt.
* Die Vergebührung des Vertrages beim Finanzamt, sowie die Kosten für die Erstellung des Mietvertrages sind durch den Mieter zu tragen.

Wir freuen uns auf Ihre Anfrage und beraten Sie gerne persönlich vor Ort!

*************************************

Sollten Sie nach Durchsicht des Inserats eine Besichtigung wünschen, bitten wir um Anfrage über das Kontaktformular [http://www.sulek.immobilien/besichtigung] und Nennung ein paar konkreter Terminvorschläge.
*************************************

_DIE ZUR VERFÜGUNG GESTELLTEN INFORMATIONEN BERUHEN AUF DIE ANGABEN DES ABGEBERS, DER GEMEINDE UND DER HAUSVERWALTUNG BZW. DER JEWEILIGEN PROFESSIONISTEN. FÜR DIE RICHTIGKEIT UND VOLLSTÄNDIGKEIT DER ANGABEN KANN KEINE GEWÄHR BZW. HAFTUNG ÜBERNOMMEN WERDEN. WEITERES WEISEN WIR AUF EIN WIRTSCHAFTLICHES UND/ODER FAMILIÄRES NAHEVERHÄLTNIS HIN. 

BITTE BEACHTEN SIE, DASS UNSER UNTERNEHMEN KEINE REISEKOSTEN ÜBERNIMMT, DIE IM ZUSAMMENHANG MIT DER BESICHTIGUNG VON IMMOBILIEN ANFALLEN. ALLE ANFALLENDEN KOSTEN FÜR ANREISE, UNTERKUNFT UND VERPFLEGUNG MÜSSEN VON DEN INTERESSENTEN SELBST GETRAGEN WERDEN. DES WEITEREN ÜBERNEHMEN WIR KEINE HAFTUNG FÜR KOSTEN, DIE DURCH KURZFRISTIGE STORNIERUNGEN ODER ÄNDERUNGEN VON BESICHTIGUNGSTERMINEN ENTSTEHEN KÖNNEN. WIR DANKEN IHNEN FÜR IHR VERSTÄNDNIS._

*************************************

 

Noch nichts gefunden? Wir informieren Sie über geeignete Immobilienangebote noch vor allen anderen.
Legen Sie jetzt Ihren individuellen Suchagenten unter folgendem Link an. Wir schicken Ihnen passende Immobilien exklusiv vorab zu.
Suchagent anlegen [https://sulek-immobilien.service.immo/registrieren/de] - https://sulek-immobilien.service.immo/registrieren/de

Wir weisen darauf hin, dass zwischen dem Vermittler und dem zu vermittelnden Dritten ein familiäres oder wirtschaftliches Naheverhältnis besteht.

Der Vermittler ist als Doppelmakler tätig.

Infrastruktur / Entfernungen

Gesundheit
Arzt <500m
Klinik <500m
Apotheke <500m
Krankenhaus <1.500m

Kinder & Schulen
Schule <500m
Kindergarten <500m
Höhere Schule <1.500m

Nahversorgung
Supermarkt <500m
Bäckerei <500m
Einkaufszentrum <1.500m

Sonstige
Bank <500m
Geldautomat <500m
Post <500m
Polizei <1.000m

Verkehr
Bus <500m
U-Bahn <6.000m
Straßenbahn <5.000m
Bahnhof <1.500m
Autobahnanschluss <3.000m

Angaben Entfernung Luftlinie / Quelle: OpenStreetMap

Merkmale

  • frei ab sofort
  • Erdgeschoss
  • Bodenbelag: Fliesen, Parkett

Grundrisse

Grundrisse
1 / 1

Realisiere Dein Projekt

Bausubstanz und Energie

Heizwärmebedarf (HWB)

F

Gesamtenergieeffizienz (fGEE)

F
  • Baujahr1900
  • Zustand der ImmobilieAltbau (bis 1945), Massivhaus, Gepflegt
  • HeizungsartEtagenheizung
  • EnergieträgerGas
Immowelt logo

Mietkosten

Nettokaltmiete
741,63 €
Betriebskosten
87,53 €
Provision für Mieter
3 Bruttomonatsmieten zzgl. 20% USt.
Kaution
3 Bruttomonatsmieten
Weitere Preisinformationen
Nettokaltmiete: 741,63 EUR

Lage

address-icon
Mödling (2340)
Fußgängerzone // Brühlerstraße

Weitere Informationen

Stichworte Fahrradraum, Lagerfläche: 21,90 m², Nutzfläche: 40,00 m², Anzahl der separaten WCs: 1, Bundesland: Niederösterreich

Weitere Services

Lust auf eine Besichtigung?
Eine Frage zur Immobilie?
Nachricht hinzufügen
Mit der Nutzung der oben angegebenen Telefonnummer oder durch Klicken auf „Kontaktieren“ akzeptierst Du die Allgemeinen Nutzungsbedingungen, denen Du jederzeit widersprechen kannst. Weitere Informationen zum Datenschutz

Über den Anbieter

Fasangasse 30/10, 1030 WIEN
partner badge
6 Jahre Partnerschaft
Herr Philipp RennerDein Kontakt

Weitere Unterlagen

Online-ID: 2m5cq59
Referenznummer: OBGC20251028164236860dba88c0deb
Mittelsmann Philipp Sulek GmbH
Mittelsmann Philipp Sulek GmbH
Nachricht hinzufügen
Mit der Nutzung der oben angegebenen Telefonnummer oder durch Klicken auf „Kontaktieren“ akzeptierst Du die Allgemeinen Nutzungsbedingungen, denen Du jederzeit widersprechen kannst. Weitere Informationen zum Datenschutz
Wie zufrieden bist du mit dieser Seite (nicht mit der Immobilie selbst)?