Version: 8.24.0Navigation überspringen
CBRE GmbH
Mietkosten auf Anfrage
1.829,7 m² Bürofläche  •  teilbar ab 219,8 m²

Bürofläche zur Miete • provisionsfrei
Mietkosten auf Anfrage
1.829,7 m² Bürofläche  •  teilbar ab 219,8 m²

Airport City: Premiumfläche im Green Building I Exklusiv bei CBRE

Das Smart Office in der Klaus-Bungert-Straße 8/8a in der Düsseldorfer Airport City bietet rund 14.600?m² moderne, flexibel gestaltbare Büroflächen. Das 2021 fertiggestellte Gebäude ist DGNB Platin- und WiredScore Gold-zertifiziert und überzeugt durch hohe Nachhaltigkeits- und Digitalstandards. Große Fenster, Heiz-/Kühldecken und flexible Raumaufteilung ermöglichen individuelle Arbeitswelten. Die Lage direkt am Flughafen mit optimaler Anbindung an Autobahn und ÖPNV macht den Standort besonders attraktiv. Das Gebäude verfügt über eine helle und moderne Tiefgarage. Der hochwertig gestaltete Innenhof rundet das attraktive Angebot ab. Mieter sind renommierte internationale und nationale Unternehmen.

Merkmale

  • Bezug: kurzfristig
  • Erdgeschoss
  • 4 Stellplätze
  • voll klimatisiert
- Auf Wunsch: komplett möbliert inklusive IT- Verkabelung
- BAP-gerechte Beleuchtung
- Kombinierte Heiz- und Kühldecke
- DGNB Platin Zertifizierung
- Zugangskontrollsystem
- besetzter Empfang
- Tiefgarage

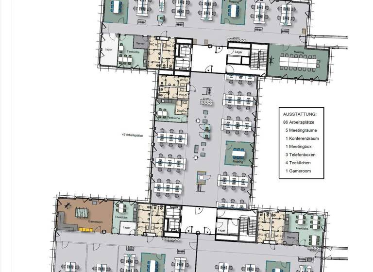
Grundrisse

Grundrisse
1 / 1

Realisiere Dein Projekt

Bausubstanz und Energie

Energieausweis

Endenergiebedarf (Wärme)

Endenergiebedarf (Strom)

  • Baujahr2021
MediumRectangleTop

Mietkosten

Nettomiete zzgl. Nebenkosten
nicht angegeben
Nebenkosten
5 €
Provision für Mieter
provisionsfrei
Kaution
keine Angabe

Lage

address-icon
Klaus-Bungert-Straße 8 - 8 aUnterrathDüsseldorf (40468)
Die am Flughafen Düsseldorf entstandene Airport City hat sich in den letzten Jahren als wichtiger und attraktiver Bürostandort etabliert. Dies ist einerseits auf die von den Unternehmen bevorzugte Nähe zum Flughafen Düsseldorf und andererseits auf die dort neu entstandenen und modernen Bürogebäude zurückzuführen. Von der Airport City aus ist eine ideale Autobahn- (A 44 / A 52 / A 59) und S-Bahn-Anbindung ("Düsseldorf-Flughafen-Terminal") gegeben. Geschäfte des täglichen Bedarfs und Restaurants sind am Flughafen in ausreichender Anzahl vorhanden (u. a. REWE-Supermarkt - bis 24:00 Uhr geöffnet). In der Airport City existieren darüber hinaus mehrere Kantinen, die öffentlich zugänglich sind. Das Maritim-Hotel mit seinem Kongresszentrum bietet optimale Unterbringungs-, Verpflegungs- und Tagungsmöglichkeiten.

Weitere Informationen

Sonstiges Hierbei handelt es sich um Untermietflächen mit einer Restlaufzeit bis 31.12.2031. Ein direktes Mietverhältnis mit dem Eigentümer ist nach Absprache möglich.

Es besteht die Möglichkeit, die Flächen mit einer sehr hochwertigen Möblierung (Büro, Meeting, Teeküchen, Social Area) sowie IT-Verkabelung und Zugangskontrollsystem zu übernehmen.

CBRE Immobiliensuche Büro - https://www.cbre.de/immobiliensuche/buero

AGB - https://www.cbre.de/agb Stichworte Gesamtfläche: 14.366,00 m², Grundstücksfläche: 9.850,00 m², 5 Etagen

Weitere Services

Lust auf eine Besichtigung?
Eine Frage zur Immobilie?
Nachricht hinzufügen
Mit der Nutzung der oben angegebenen Telefonnummer oder durch Klicken auf „Kontaktieren“ akzeptierst Du die Allgemeinen Nutzungsbedingungen, denen Du jederzeit widersprechen kannst. Weitere Informationen zum Datenschutz

Über den Anbieter

CBRE GmbH
CBRE GmbHMaklerbüro
Königsallee 61, 40215 Düsseldorf
Marcel SchüllingDein Kontakt
Online-ID: 2nvg755
Referenznummer: 42917@13@0
CBRE GmbH
CBRE GmbH
Nachricht hinzufügen
Mit der Nutzung der oben angegebenen Telefonnummer oder durch Klicken auf „Kontaktieren“ akzeptierst Du die Allgemeinen Nutzungsbedingungen, denen Du jederzeit widersprechen kannst. Weitere Informationen zum Datenschutz
MediumRectangleTop
MediumRectangleBottom
MediumRectangleTop
Wie zufrieden bist du mit dieser Seite (nicht mit der Immobilie selbst)?