

DAHLER Regensburg / Inh. DEPREZ Immobilien
Frau Veerle Deprez
094 ···
Nr. anzeigenPreise & Kosten
Provision für Käufer
3,57 % inkl. gesetzlicher MwSt. bezogen auf den Kaufpreis inkl. MwSt.
Lage
Die charmante Doppelhaushälfte befindet sich in ruhiger und familienfreundlicher Lage im idyllischen Tegernheim, Bayern. Eingebettet in eine gewachsene Wohngegend, verbindet der Standort ländliche Idylle mit urbaner Nähe - ideal für alle, die naturnah wohnen und dennoch schnell in der Stadt sein möchten.
Nur rund 5,3...
Das Haus
Kategorie
Doppelhaushälfte
Baujahr
2017
Energie & Heizung
Warum sehe ich diese Anzeige? – Du siehst diese Anzeige basierend auf Ihrer Navigation auf unserer Website und den Suchkriterien, die du verwendet hast.
Weitere Energiedaten
Heizungsart
Fußbodenheizung
Details
Objektbeschreibung
Modernes Wohnen mit Wohlfühlgarantie - Ihr Rückzugsort in Tegernheim
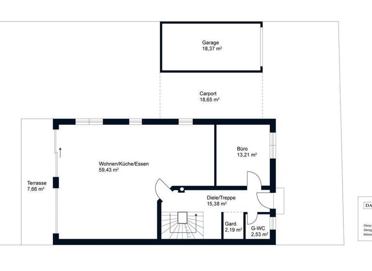
Diese stilvolle Doppelhauhälfte in Tegernheim vereint modernes Wohnen mit einem Höchstmaß an Komfort und durchdachter Funktionalität. Auf einem ca. 375 m² großen Grundstück erwartet Sie eine hochwertige Immobilie mit rund ca. 192 m² Wohnfläche...
Ausstattung
* Doppelhauhälfte
* Grundstück ca. 375 m²
* Ca. 192,04 m² Wohnfläche zzgl. ca. 89,97 m² Nutzfläche sowie ca. 37,02 m² Garage und Carport
* 5 Zimmer
* 4 Schlafzimmer
* 1 Vollbadezimmer und 1 Gäste-WC inkl. Dusche
* Ankleide / Garderobe
* Voll unterkellert / 1 HWR / Fußbodenheizung
* Terrassenfläche, ca...
Preisinformation
1 Carportplatz
1 Garagenstellplatz
Weitere Informationen
Stichworte
Nutzfläche: 89,97 m², Anzahl der Schlafzimmer: 4, Anzahl der Badezimmer: 1, Anzahl der separaten WCs: 1, Anzahl Balkone und Terrassen: 1, Distanz zum Kindergarten: 0.63, Distanz zur Grundschule: 1.66, Distanz zur Realschule: 3.77, Distanz zur nächsten Einkaufsmöglichkeit: 3.77, Distanz zum Gymnasium: 4.14...
Anbieter der Immobilie
DAHLER Regensburg / Inh. DEPREZ Immobilien
Ludwig-Eckert-Str. 5-7, 93049 Regensburg

Online-ID: 2lf8k5u
Referenznummer: DC-RGB-1277
Finde Angebote wie dieses
Hier geht es zu unserem Impressum, den Allgemeinen Geschäftsbedingungen, den Hinweisen zum Datenschutz und nutzungsbasierter Online-Werbung.