Version: 8.25.1Navigation überspringen
20 €
7.396 m² Bürofläche
Immowelt logo

Bürofläche zur Miete
20 €
/m²
7.396 m² Bürofläche

Goerzhub

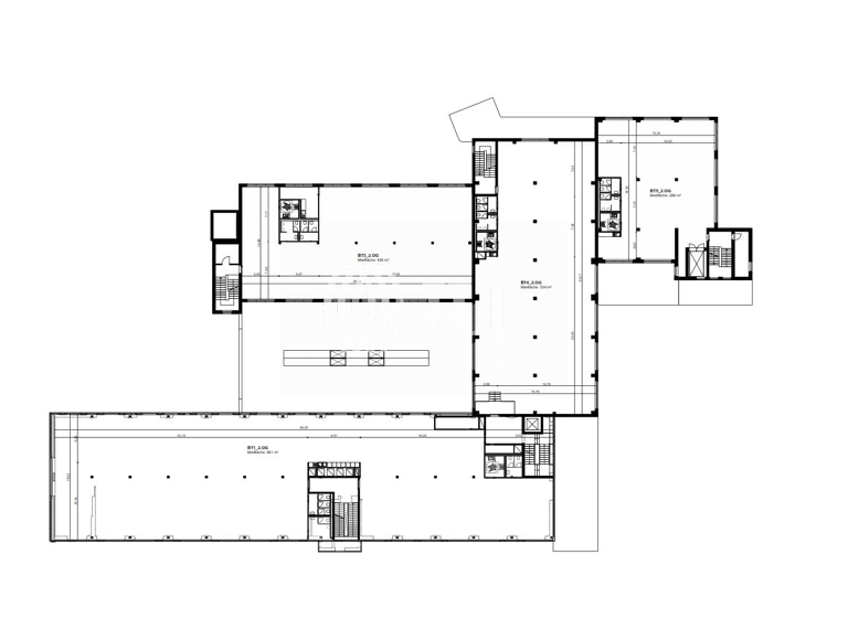
Das ca. 23.000 m² große Grundstück ist aktuell mit einer im Jahr 2016 modernisierten Logistikhalle sowie , einem mehrstöckig, flexibel nutzbaren Gebäude - sowie einem Bürogebäude bebaut. Darüber hinaus stehen eine Vielzahl von PKW- und Sprinterstellplätzen zur Verfügung.

Geplant ist die Aufstockung des Mehrzweckgebäudes (2. - 4.OG) bis Ende Q4-2021.

Merkmale

  • Bezug: Auf Anfrage

Grundrisse

Grundrisse
1 / 4

Realisiere Dein Projekt

Bausubstanz und Energie

Möchtest du Details zum Energieverbrauch?info_energy_calculation-icon
Immowelt logo

Mietkosten

Monatliche Miete
20 €/m²
Provision für Mieter
provisionspflichtig für den Mieter/Käufer
Kaution
keine Angabe

Lage

address-icon
LichterfeldeBerlin (14167)
Der Anbieter hat die genaue Adresse nicht freigegeben
Die Liegenschaft ist Teil des Gewerbeareals Zehlendorf / Steglitz und zeichnet sich durch eine gute Anbindung zur Berliner Innenstadt und zur Stadtautobahn A 115 aus. Über den Teltower Damm und die neue B 101 ist der Berliner Autobahnring A 10 ebenfalls gut in ca. 20 Fahrminuten zu erreichen.

Weitere Informationen

Stichworte Gesamtfläche: 7.396,00 m², modernisiert: 2016

Weitere Services

Lust auf eine Besichtigung?
Eine Frage zur Immobilie?
Mit einer persönlichen Nachricht hast du bessere Chancen auf eine Antwort.
Mit der Nutzung der oben angegebenen Telefonnummer oder durch Klicken auf „Kontaktieren“ akzeptierst Du die Allgemeinen Nutzungsbedingungen, denen Du jederzeit widersprechen kannst. Weitere Informationen zum Datenschutz

Über den Anbieter

Rahel-Hirsch-Straße 10, 10557 Berlin
partner badge
Partnerschaft
Herr Tobias Rodewald
Herr Tobias RodewaldDein Kontakt
Online-ID: 248LRIM1K45E
Referenznummer: 4@of5597@14@0
Jones Lang LaSalle SE - Office Leasing Berlin
title
Jones Lang LaSalle SE - Office Leasing Berlin
Mit einer persönlichen Nachricht hast du bessere Chancen auf eine Antwort.
Mit der Nutzung der oben angegebenen Telefonnummer oder durch Klicken auf „Kontaktieren“ akzeptierst Du die Allgemeinen Nutzungsbedingungen, denen Du jederzeit widersprechen kannst. Weitere Informationen zum Datenschutz
Wie zufrieden bist du mit dieser Seite (nicht mit der Immobilie selbst)?