Version: 8.22.6Navigation ĂĽberspringen
1.754 €
146,2 m² Bürofläche

Bürogebäude zur Miete • provisionsfrei
1.754 €
146,2 m² Bürofläche

Gewerbefläche an der WATERKANT Spandau - provisionsfrei

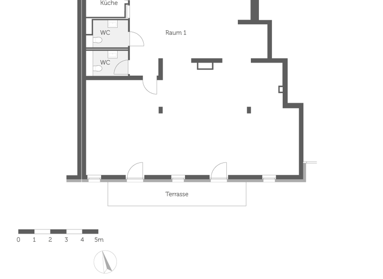
Willkommen in Ihren neuen Geschäftsräumen An den Rohrbruchwiesen 23, 13599 Berlin (Haselhorst / Spandau) - einer Lage, die urbanes Flair mit dem Charme des Wasser- und Grünbezugs an der Havel verbindet. Diese vielseitig nutzbare Gewerbefläche im Erdgeschoss bietet auf rund 146,15 m² ideale Voraussetzungen für Büro, Einzelhandel oder Dienstleistungsbetriebe.

Der großzügige Hauptraum bildet das Herzstück der Fläche. Dank seiner rechteckigen Struktur lässt er sich flexibel gestalten - ob als Verkaufsfläche, Empfangsbereich oder offenes Büro mit mehreren Arbeitsplätzen. Die großen Fensterflächen sorgen für eine angenehme Belichtung und schaffen eine freundliche, repräsentative Atmosphäre.

An den Hauptraum schließen sich zwei separate WCs sowie eine praktische Küche an - perfekt, um den täglichen Betrieb reibungslos zu gestalten. Besonders hervorzuheben ist die kleine Terrasse mit direktem Zugang vom Hauptraum: ein willkommener Rückzugsort für Pausen oder als angenehmer Außenbereich für Kundenkontakte in den warmen Monaten.

Die Räumlichkeiten liegen im gewachsenen Gewerbeumfeld von Haselhorst, das sich in den letzten Jahren spürbar entwickelt. Nur wenige Minuten entfernt befindet sich die U-Bahn-Station Haselhorst (Linie U7), die Sie direkt mit dem Spandauer Zentrum und der City West verbindet. Die Nähe zum Havel-Ufer, zur Zitadelle Spandau sowie zum Siemens-Technologie-Campus unterstreicht die attraktive Mischung aus Tradition, Innovation und guter Erreichbarkeit.

Diese Gewerbefläche bietet somit eine hervorragende Balance zwischen ruhiger Arbeitsatmosphäre und urbaner Anbindung - der ideale Ort, um Ihr Geschäft nachhaltig zu positionieren.

Die Fläche wird im besichtigten Zustand vermietet, mit Ausnahme von eventuell noch vorhandenen mietereigenen Einrichtungsgegenständen oder Einbauten.
Bei der Vermietung optieren wir zur Umsatzsteuer. Bitte beachten Sie in diesem Zusammenhang, dass sich auch die oben angegebene Kaution um den aktuellen Steuersatz erhöht. Für die Vertragslaufzeit wird eine Staffel vereinbart. Bei Interesse senden Sie uns bitte eine Anfrage über dieses Inserat. Sie erhalten dann zunächst unseren virtuellen 360°-Rundgang.
Teil eines Projekts
Willkommen an der Berliner WATERKANT!
Neubauprojekt
  • alle Details des Projekts erhalten
  • alle verfĂĽgbaren Einheiten ansehen
Zum Projekt

Merkmale

  • frei ab sofort
  • Personenaufzug
Barrierearmer Zugang bis zum Mietobjekt, Fernheizung/Zentralheizung, Fern-/Zentralwarmwasserversorgung, Glasfaserleitung, FuĂźbodenheizung, Barrierearme Wohnungsgestaltung

Grundrisse

Grundrisse
1 / 1

Realisiere Dein Projekt

Bausubstanz und Energie

Der Anbieter hat keine Informationen zum Energieverbrauch bereit gestellt.
  • Baujahr2022
  • HeizungsartZentralheizung
  • EnergieträgerFernwärme, Elektro

Mietkosten

Nettomiete
1.753,80 €
Nebenkosten
338 €
Provision fĂĽr Mieter
provisionsfrei
Kaution
6.275,40 €

Lage

address-icon
An den Rohrbruchwiesen 23, Haselhorst, Berlin (13599)
Die Gewerbefläche liegt in der Daumstraße 204 im Ortsteil Haselhorst, einem urban gewachsenen und sich dynamisch entwickelnden Stadtteil im Bezirk Spandau. Haselhorst verbindet industrielles Erbe mit neuen Wohn- und Gewerbeprojekten und profitiert zugleich von der Nähe zu Wasserlagen entlang der Havel und attraktiven Entwicklungsachsen wie Nonnendammallee / Am Juliusturm.

Die Nachbarschaft ist geprägt von einem Mix aus Wohnquartieren, Gewerbestandorten und aktuell geförderten Quartiersentwicklungen, insbesondere im Kontext von Siemensstadt und nahe gelegenen Innovationsparks.

Vom Standort aus erreichen Sie die U-Bahn-Station Haselhorst der Linie U7 in wenigen Gehminuten - diese verbindet Sie direkt mit Spandau und fĂĽhrt weiter ins Berliner Zentrum.

Zusätzlich hält in Haselhorst eine Auswahl von Buslinien: darunter M36, 133, X33, N7 und N33 - diese sichern nicht nur die Anbindung in die umliegenden Kieze, sondern erschließen mit ihren Verbindungen auch weitere Bezirke Berlins.

FĂĽr Pendler aus Spandau oder angrenzenden Ortsteilen ist die Anbindung besonders attraktiv: vom Bahnhof Spandau aus dauert die Fahrt zur U-Haltestelle Haselhorst lediglich wenige Minuten - die Verbindung wird alle fĂĽnf Minuten bedient.

Die HauptstraĂźenfĂĽhrung ĂĽber die Nonnendammallee / Am Juliusturm bietet eine schnelle Ost-West-Verbindung zwischen Spandau und der Berliner Innenstadt und bildet eine wichtige Verkehrsachse, auf die auch die DaumstraĂźe zugreift.

Vor diesem Hintergrund profitieren Sie von einer hervorragenden Sichtbarkeit und Erreichbarkeit - sowohl für Mitarbeiter als auch für Kundschaft, die mit ÖPNV oder dem Pkw anreist. In Summe positioniert sich dieser Standort als solides Fundament für Ihren Geschäftsbetrieb: ruhig genug für konzentriertes Arbeiten, gut vernetzt genug für exzellente Zugänglichkeit und mit spürbarem Potenzial für Zukunftsperspektiven.

Weitere Informationen

Sonstiges Hinweis zu Ihrem Schutz: Wir vermieten provisionsfrei gemäß § 2 WoVermG. Personen, die im Auftrag der Gewobag tätig sind, dürfen keine Provision von Ihnen verlangen.

Alle Angaben in diesem freibleibenden Angebot wurden mit der Sorgfalt eines ordentlichen Kaufmannes zusammengestellt.
Eine Gewähr/Haftung für die Vollständigkeit und Richtigkeit aller Informationen kann jedoch nicht übernommen werden.
Sämtliche Informationen hierin sind nur für den Empfänger bestimmt und vertraulich zu behandeln.
Die Angaben von Werten in Euro, Metern, Quadratmeter, Einheiten o.ä. dienen lediglich der Orientierung und müssen gegebenenfalls durch den Mietinteressenten überprüft werden.
Diese Unterlage und Information ersetzt keine detaillierte kaufmännische, rechtliche, steuerliche und technische Prüfung durch den Mietinteressenten selbst.
Fotografien, Modellabbildungen, Planzeichnungen, Illustrationen und Lage-, Bau- und Ausstattungsbeschreibungen entsprechen im Einzelfall gegebenenfalls nicht dem letzten Stand. Rechtlich bindend sind allein die Regelungen und Anlagen einer vertraglichen Vereinbarung (Mietvertrag).

Die Gewobag als Vermieterin schließt Gewerbemietverträge und spätere Nachträge hierzu ausschließlich in Schriftform ab. Dies bedeutet, dass Gewerbemietverträge und Nachträge hierzu nur zustande kommen, wenn diese jeweils mit eigenhändigen Originalunterschriften aller Vertragsparteien auf einem Dokument unterzeichnet sind.

Anbieter
EigentĂĽmer/Vermieter oder Verwalter des jeweiligen Mietobjekts ist Gewobag Wohnungsbau-Aktien- gesellschaft Berlin. Die Gewobag MB Mieterberatungsgesellschaft mbH ĂĽbernimmt den Vermietungsservice fĂĽr diese Gesellschaft. Weitere Informationen finden Sie unter www.gewobag.de/datenschutz . Stichworte 4 Etagen

Weitere Services

Lust auf eine Besichtigung?
Eine Frage zur Immobilie?
Nachricht hinzufĂĽgen
Mit der Nutzung der oben angegebenen Telefonnummer oder durch Klicken auf „Kontaktieren“ akzeptierst Du die Allgemeinen Nutzungsbedingungen, denen Du jederzeit widersprechen kannst. Weitere Informationen zum Datenschutz

Ăśber den Anbieter

Alt-Moabit 101 A, 10559 Berlin
Frau Malaika HerzigDein Kontakt

Weitere Unterlagen

Online-ID: 2nevm56
Referenznummer: 0100/01033/0203/4004
Gewobag Wohnungsbau Aktiengesellschaft Berlin
Bewertung: 4,3 von 5 Sternen
Nachricht hinzufĂĽgen
Mit der Nutzung der oben angegebenen Telefonnummer oder durch Klicken auf „Kontaktieren“ akzeptierst Du die Allgemeinen Nutzungsbedingungen, denen Du jederzeit widersprechen kannst. Weitere Informationen zum Datenschutz
Wie zufrieden bist du mit dieser Seite (nicht mit der Immobilie selbst)?