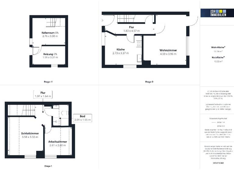
Herzlich Willkommen in Ihrem Zuhause! Dieses modernisierte Reihenendhaus, erbaut im Jahr 1955, bietet Ihnen eine Wohnfläche von ca. 50 m² und befindet sich auf einem Grundstück von ca. 179 m². Das Herzstück des Hauses ist das Wohnzimmer mit direktem Zugang zur Terrasse und in den Garten. Des Weiteren befinden sich eine Küche mit Einbauküche im Erdgeschoss. Das Dachgeschoss verfügt über ein Schlafzimmer und ein weiteres Zimmer, das als Büro oder Kiinderzimmer dienen kann. Ein Duschbad vervollständigt das Dachgeschoss. Ein weiteres Highlight ist die Gasheizung aus 2025. Hier besteht die Möglichkeit, eine Kombination mit erneuerbarer Energie zu erstellen.
Nutzen Sie die Chance, dieses modernisierte Reihenendhaus zu Ihrem neuen Zuhause zu machen! Wir freuen uns auf Sie!
Merkmale
Bezug: sofort
179 m² Grundstück
Bad mit Dusche
Keller
Bodenbelag: Teppich
Terrasse
Garten
2 Stellplätze: 2 Außen-Stellplätze
- Duschbad - Einbauküche - 2 Kfz-Stellplätze vor dem Haus - Gasheizung aus 2025 - Terrasse
Grundrisse
Grundrisse
1 / 1
Realisiere Dein Projekt
Bausubstanz und Energie
Energieausweis
G
Baujahr1955
HeizungsartZentralheizung
EnergieträgerGas
Preisdetails
Kaufpreis
149000 €149.000 €
2.980 €/m²
Provision für Käufer
3.57 % inkl. MwSt.
Weitere Preisinformationen
2 Stellplätze
Geschätzte Gesamtkosten
164.749 €1
Kaufpreis
149.000 €
Kaufnebenkosten
15.749 €
2
Notarkosten (1,5%)
2.235 €
Grunderwerbsteuer (5%)
7.450 €
Provision für Käufer (3,57%)
5.319 €
Grundbucheintrag (0,5%)
745 €
1Der angezeigte Wert ist eine automatisch berechnete Schätzung von immowelt.
2Bei den Angaben handelt es sich um ortsübliche Werte. Individuelle Kosten können abweichen.
Lage
Stade (21680)
Der Anbieter hat die genaue Adresse nicht freigegeben
Die Hansestadt Stade liegt mit 50.000 Einwohnern auf halbem Weg zwischen Hamburg und der Nordsee. Stade hat eine über 1000-jährige Geschichte, die sich in der historischen Altstadt mit seinen wunderschönen Fachwerkhäusern widerspiegelt. Stade ist ein wirtschaftliches und kulturelles Behörden- und Dienstleistungszentrum im Elbe-Weser-Raum. Es gilt als Standort für moderne Industrie, erfolgreichen Mittelstand und jetzt auch Bildungsstandort mit allen Schulformen, Forschungseinrichtungen sowie einer Hochschule. Die neue Autobahn 26 und die geplante Elbquerung A 22 machen diese Region für Industrie- und Gewerbeansiedlungen sowie für das Wohnen sehr attraktiv. Viele kulturelle Veranstaltungen, beispielsweise in Form von Kunstausstellungen, musikalischen Events und Theateraufführungen werden über das Jahr in Stade angeboten. Die Nähe zur Elbe, verbunden durch den Fluss Schwinge, geben der Stadt ihr maritimes Flair. In Stade leben und arbeiten, das ist Lebensqualität!
Weitere Informationen
Sonstiges
Hinweis: Wir weisen höflich darauf hin, dass die hier gemachten Angaben ausschließlich auf den uns vom Eigentümer übermittelten Unterlagen und Daten basieren. Für die Richtigkeit und Vollständigkeit können wir keine Haftung übernehmen. Das Angebot ist freibleibend. Forderungen und Irrtümer vorbehalten. Wenn Sie zu diesem Angebot Kontakt zu uns aufnehmen, werden Ihre personenbezogenen Daten von uns gespeichert. Weitere Informationen zum Datenschutz finden Sie auch auf unserer Homepage unter https://ish-immobilien.de/de/datenschutzerklaerung
Hinweise Geldwäschegesetz GwG: Als Immobilienmakler sind wir nach § 2 Abs. 1 Nr. 14 und § 10 Abs. 3 Geldwäschegesetz (GwG) dazu verpflichtet, bei der Begründung einer Geschäftsbeziehung die Identität des Vertragspartners festzustellen und zu überprüfen. Hierzu ist es erforderlich, dass wir nach § 11 GwG die relevanten Daten Ihres Personalausweises festhalten (wenn Sie als natürliche Person handeln) - beispielsweise mittels einer Kopie. Bei einer juristischen Person benötigen wir eine Kopie des Handelsregisterauszugs, aus welchem der wirtschaftlich Berechtigte hervorgeht. Das Geldwäschegesetz schreibt uns zwingend vor, dass wir die Kopien bzw. Unterlagen fünf Jahre aufbewahren.
Sie möchten Ihre Immobilie anbieten? Wir freuen uns auf Ihren Anruf unter 04141 - 79 77 111. Nach einer kostenfreien und unverbindlichen Wertermittlung Ihrer Immobilie besprechen wir alles Weitere.