Version: 8.26.0Navigation überspringen
1.200.000 €
1.069 m² Lagerfläche
Immowelt logo

Halle/Industriefläche zum Kauf
1200000 €
1.069 m² Lagerfläche

GEWERBE-LIEGENSCHAFT MIT BÜRO UND PRODUKTIONSHALLEN! Berngau

Die Fakten:
- Grund ca. 3.631 m², voll erschlossen und eingefriedet
- Befestigte Parkfläche für Mitarbeiter und Kunden
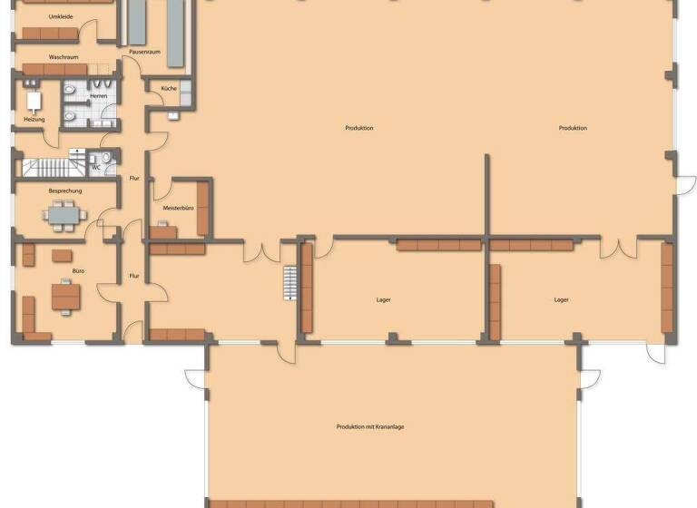
- Gesamt Nutzfläche: Büro und Mitarbeiter ca. 155 m², Hallen ca. 1.069 m²

Büro und Produktionshalle:
- Massivbau in Stahlbeton, Dach mit Gasbetonplatten
- Isoliert, Baujahr 1991, sehr guter und gepflegter Zustand
- Fenster: Weitgehend 2-fach Verglasung U 1,1 W (m²K)
- Heizung Gas-Zentralheizung,
- Krananlage 2to Hubkraft
- Gesamte Nutzfläche: Büro ca. 155 m², Produktionshallen ca. 731 m²

Büro und Sozialräume für Mitarbeiter:
- Büro ca. 58 m², Sozialräume ca. 97 m²
- Umkleide, Waschraum, WC Herren und Damen, Teeküche, Aufenthaltsraum, Heizung

Produktionshalle:
- Gesamte Nutzfläche: ca. 731 m², davon
- Produktion ca. 412 m²
- Ersatzteile ca. 70 m²
- Lager, Versand 179 m²
- Lager Obergeschoss 70 m²
- Traufhöhe 7,20 m und 4,50 m
- Beleuchtung LED
- Druckluftversorgung

Hausmeisterwohnung:
- Obergeschoss - aktuell als Lager genutzt, nicht ausgebaut, genehmigter Plan liegt vor
- Wohnfläche ca. 126,49 m², 4-Zimmer, Küche, Bad

Hallen-Anbau:
- Mit Iso-Wandplatten, Dach Stahlkonstruktion mit PVC-Folie, 80 mm Dämmung, Stahltrapezblech
- Baujahr 1996, sehr guter und gepflegter Zustand
- Nutzfläche ca. 338 m²
- Traufhöhe 4,50 m

Sonstiges:
- 3 Fertiggaragen
- 20kV Stromanschluss
- Photovoltaikanlage kann zusätzlich erworben werden

Energetische Werte:
- EA in Vorbereitung


"Sie entscheiden - wir kümmern uns um den Rest!"

Merkmale

  • 3.631 m² Grundstück

Grundrisse

Grundrisse
1 / 2

Bausubstanz und Energie

  • Baujahr1991
Immowelt logo

Preisdetails

Kaufpreis
1200000 €
Provision für Käufer
3,57 % inkl. ges. MwSt. aus dem Kaufpreis
Geschätzte Gesamtkosten
1.242.840 €1
Kaufpreis
1.200.000 €
Provision für Käufer (3,57%)
42.840 €
1Der angezeigte Wert ist eine automatisch berechnete Schätzung von immowelt.
2Bei den Angaben handelt es sich um ortsübliche Werte. Individuelle Kosten können abweichen.

Lage

address-icon
Berngau (92361)
Der Anbieter hat die genaue Adresse nicht freigegeben
- Gewerbe-Liegenschaft mit vielseitiger Nutzungsmöglichkeit
- Berngau - vor den Toren der Stadt Neumarkt
- Verkehrsgünstige Lage in allen Richtungen
- Berngau kommt, www.berngau.de
- Wohnwirtschaftlich & gewerblich aufstrebende Gemeinde

Weitere Informationen

Sonstiges Wir würden uns sehr freuen, Sie bei einem persönlichen Besichtigungstermin begrüßen zu dürfen.

Gerne sind wir Ihnen auch bei der Finanzierung behilflich.

Unsere Öffnungszeiten:
Mo. - Do.: 08:30 Uhr - 12:30 Uhr und 13:30 Uhr - 17:30 Uhr
Fr.: 08:30 Uhr - 14:00 Uhr
Sa.: 09:00 Uhr - 12:00 Uhr

Beratungstermine sind selbstverständlich auch außerhalb unserer Geschäftszeiten nach Vereinbarung möglich.

Weitere Services

Lust auf eine Besichtigung?
Eine Frage zur Immobilie?
Nachricht hinzufügen
Mit der Nutzung der oben angegebenen Telefonnummer oder durch Klicken auf „Kontaktieren“ akzeptierst Du die Allgemeinen Nutzungsbedingungen, denen Du jederzeit widersprechen kannst. Weitere Informationen zum Datenschutz

Über den Anbieter

Bahnhofstraße 7, 92318 Neumarkt
partner badge
10 Jahre Partnerschaft
Kirsch & Haubner Immobilien GmbH
Kirsch & Haubner Immobilien GmbHDein Kontakt
Online-ID: 26SLTHFXCTCP
Referenznummer: A5733
Wie zufrieden bist du mit dieser Seite (nicht mit der Immobilie selbst)?