Version: 8.24.0Navigation überspringen
500.000 €
6 Zimmer  •  155,8 m²  •  396 m² Grundstück
Immowelt logo

Mehrfamilienhaus zum Kauf
500000 €
3.209 €/m²
6 Zimmer  •  155,8 m²  •  396 m² Grundstück

Modernisiertes Gästehaus/Hotel Garni mit 6 Gästezimmern in Dettingen/Erms

In zentraler Lage von Dettingen an der Erms erwartet Sie eine modernisierte Immobilie mit einem charmanten Bistro (mit Halbküche), 6 komfortablen, voll ausgestatteten Gästezimmern und mehreren Nebenräumen. Das Haus eignet sich ideal als Gästehaus, Pension oder Hotel Garni. Von 2024 bis 2025 wurde die Immobilie aufwendig modernisiert und unter anderem mit neuen Fenstern, Fußböden, Bädern sowie einer neuen Heizung ausgestattet.

Merkmale

  • Bezug: Sofort
  • 396 m² Grundstück
  • Einbauküche
  • möbliert
  • Bad mit Dusche
Erdgeschoss:
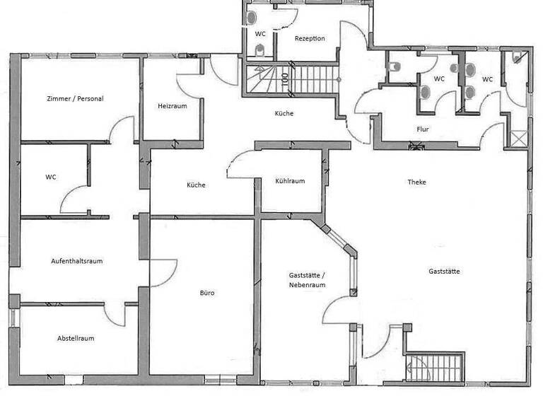
Der einladende Gastbereich bietet getrennte Zonen für Raucher und Nichtraucher sowie verschiedene Sitzmöglichkeiten. Ein separater Barbereich sorgt für eine angenehme Atmosphäre. Ergänzt wird das Angebot durch getrennte Toilettenanlagen und diverse Nebenräume.

Die Küche ist ausschließlich für die Zubereitung und das Aufwärmen von Speisen ohne Fettverarbeitung ausgelegt.

Ein separater Eingang führt zum Rezeptionsbereich der Gästezimmer im Obergeschoss.

1. Obergeschoss:
Hier stehen sechs hochwertig möblierte Gästezimmer zur Verfügung. Einige Zimmer verfügen über ein eigenes Bad, während andere auf die modernen Gemeinschaftsduschen und -Toiletten im Flurbereich zugreifen. Die Ausstattung umfasst Einzelbetten, Nachttische, Schränke, Vorhänge, Lampen und weitere Annehmlichkeiten - alles bezugsfertig.

Zusätzlich bietet das Obergeschoss eine großzügige gemeinschaftliche Küche, einen praktischen Hauswirtschaftsraum und eine große Terrasse.

Grundrisse

Grundrisse
1 / 2

Realisiere Dein Projekt

Bausubstanz und Energie

Der Anbieter hat keine Informationen zu Energieverbrauch oder Zustand der Immobilie bereit gestellt.
Immowelt logo

Preisdetails

Kaufpreis
500000 €
3.209,24 €/m²
Provision für Käufer
4,76% vom Kaufpreis inkl. 19% MwSt.
Geschätzte Gesamtkosten
552.850 €1
Kaufpreis
500.000 €
Notarkosten (1,5%)
7.500 €
Grunderwerbsteuer (5%)
25.000 €
Provision für Käufer (3,57%)
17.850 €
Grundbucheintrag (0,5%)
2.500 €
1Der angezeigte Wert ist eine automatisch berechnete Schätzung von immowelt.
2Bei den Angaben handelt es sich um ortsübliche Werte. Individuelle Kosten können abweichen.

Lage

address-icon
Dettingen (72581)
Der Anbieter hat die genaue Adresse nicht freigegeben
Das Wohn- und Geschäftshaus befindet sich in zentraler Lage von Dettingen an der Erms, einer lebendigen Gemeinde im Ermstal zwischen Metzingen und Bad Urach. Einkaufsmöglichkeiten, Restaurants und Dienstleister sind bequem zu Fuß erreichbar. Die Gemeinde bietet eine gute Infrastruktur sowie vielfältige Freizeit- und Naherholungsmöglichkeiten.

Der öffentliche Nahverkehr ist durch mehrere Buslinien und den nahegelegenen Bahnhof Dettingen-Mitte optimal angebunden, mit direkten Verbindungen nach Metzingen, Reutlingen und Stuttgart.

Weitere Informationen

Sonstiges 3 PKW-Außenstellplätze.
Großer Keller.

Der Energieausweis wurde beantragt.

Weitere Services

Lust auf eine Besichtigung?
Eine Frage zur Immobilie?
Nachricht hinzufügen
Mit der Nutzung der oben angegebenen Telefonnummer oder durch Klicken auf „Kontaktieren“ akzeptierst Du die Allgemeinen Nutzungsbedingungen, denen Du jederzeit widersprechen kannst. Weitere Informationen zum Datenschutz

Über den Anbieter

Laustraße 22, 70597 Stuttgart
Herr Dennis GärtnerDein Kontakt
Online-ID: 2ng675e
Referenznummer: 5322
Lauser Immobilien
Lauser Immobilien
Bewertung: 5 von 5 Sternen
Nachricht hinzufügen
Mit der Nutzung der oben angegebenen Telefonnummer oder durch Klicken auf „Kontaktieren“ akzeptierst Du die Allgemeinen Nutzungsbedingungen, denen Du jederzeit widersprechen kannst. Weitere Informationen zum Datenschutz
Wie zufrieden bist du mit dieser Seite (nicht mit der Immobilie selbst)?