Version: 8.24.0Navigation ĂĽberspringen
4.832 €
1.069,6 m² Lagerfläche
Immowelt logo

Lagerhalle zur Miete
4.832 €
1.069,6 m² Lagerfläche

Hallen- & BĂĽrokombination mit Top-Autobahnanbindung

Im Gewerbegebiet Platjenwerbe nördlich von Bremen mit unmittelbarer Anbindung an die Autobahn A27 bieten wir diese gepflegte Lagerhalle (beheizt) mit einer Bürokombination zur Anmietung an.

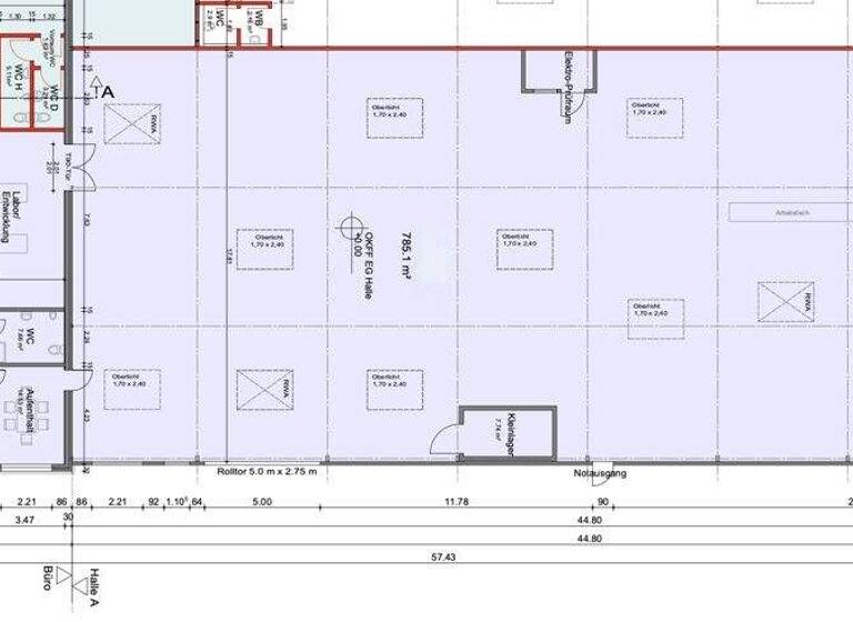
Das Objekt verfügt über ideale Voraussetzung für diverse Gewerbebetriebe. Besonders hervorzuheben sind die ebenerdige Andienung über ein elektrisches Rolltor sowie die Deckenhöhe von 3,8 - 4,35 m UKB.

Die Hallenfläche umfasst ca. 793 m². Das Büro erstreckt sich über ca. 277 m² auf zwei Ebenen.

Eine Anmietung ist nach Absprache möglich.

Weitere Ausstattungsmerkmale entnehmen Sie bitte der Ausstattungsbeschreibung.

Merkmale

  • Bezug: nach Absprache
A. Allgemein

. Warmhalle mit BĂĽro
. Top-Autobahn-Anbindung
. gepflegte Immobilie


B. Ausstattung

. ebenerdige Andienung
. elektrisches Rolltor (5,0 m x 2,75 m)
. 3,8 - 4,35 m UKB
. Betonboden
. Sanitäreinrichtungen


C. Flächen

. ca. 792,84 m² Warmhalle
. ca. 276,72 m² Bürofläche


D. Anmietungsmodalitäten

. 4.831,68 € mtl. Netto-Kaltmiete zzgl. USt.
(6,00€/m² für Büro; 4,00 €/m² für Warmhalle)
. 500,00 € mtl. Netto-Betriebskostenvorauszahlung zzgl. USt.
(Heizung- und Strom sind vom Mieter direkt beim Versorger anzumelden)
. 3-fache mtl. Netto-Kaltmiete Mietkaution
. 5 Jahre Mindestmietdauer
. verfĂĽgbar nach Absprache

Grundrisse

Grundrisse
1 / 2

Realisiere Dein Projekt

Bausubstanz und Energie

Energieausweis

Endenergiebedarf (Wärme)

Endenergiebedarf (Strom)

  • Baujahr1991
  • Zustand der ImmobilieGepflegt
Immowelt logo

Mietkosten

Warmmiete
5.331,68 €
Nettomiete
4.831,68 €
Nebenkosten
500 €
Heizkosten
in Warmmiete enthalten
Provision fĂĽr Mieter
3-fache mtl. Netto-Kaltmiete Mieterprovision zzgl. USt. zzgl. MwSt.
Kaution
3-fache Netto-Kaltmiete
Weitere Preisinformationen
Nettokaltmiete: 4.831,68 EUR

Lage

address-icon
Platjenwerbe, Ritterhude-Ihlpohl (27721)
Der Anbieter hat die genaue Adresse nicht freigegeben
Die angebotene Gewerbefläche befindet sich in einem äußerst attraktiven Gewerbegebiet an der Autobahn in Platjenwerbe/Ihlpohl, einem florierenden Standort im Landkreis Osterholz-Scharmbeck, unweit der Hansestadt Bremen.

Lagevorteile:
Platjenwerbe zeichnet sich durch eine bemerkenswerte Kaufkraft vor Ort aus, den den Standort äußerst attraktiv für Gewerbebetriebe macht. Die lokale Bevölkerung ist wirtschaftlich stark und hat Bedarf an handwerklichen Dienstleistungen und Produkten.

Anbindung:
Besonders hervorzuheben ist die exzellente Anbindung an die Bundesautobahn A27, die diese Gewerbefläche mit den umliegenden Großstädten verbindet. Dank der Nähe zur Autobahn ist eine schnelle und bequeme Anreise zu den Wirtschaftszentren Bremen, Bremerhaven und Hamburg gewährleistet. Dies ermöglicht nicht nur eine reibungslose Belieferung von Kunden in der Region, sondern eröffnet auch neue Möglichkeiten für eine Expansion über die regionalen Grenzen hinaus.

Weitere Informationen

Sonstiges Alle Angaben sind ohne Gewähr und basieren ausschließlich auf Informationen, die uns von unserem Auftraggeber zur Verfügung gestellt wurden. Wir übernehmen keine Gewähr für die Vollständigkeit, Richtigkeit und Aktualität dieser Angaben.

Unsere Vermittlungsprovision umfasst für den Mieter die 3-fache mtl. Netto-Kaltmiete (zzgl. 19 % USt.) und ist verdient und fällig mit Mietvertragsunterschrift.

Die anfallende Maklercourtage wird nach rechtskräftig geschlossenem Mietvertrag in Rechnung gestellt. Die Maklerprovision ist sofort nach Mietvertragsunterschrift zur Zahlung fällig.

Der Ansprechpartner fĂĽr dieses Immobilienangebot ist:

David Mergelmeyer
Selbstständiger Immobilienmakler

+49 421 499 575 60
+49 176 565 322 63
dm@mergelmeyer-immobilien.de Stichworte Lagerfläche: 1.069,56 m², Gesamtfläche: 1.069,56 m²

Weitere Services

Lust auf eine Besichtigung?
Eine Frage zur Immobilie?
Nachricht hinzufĂĽgen
Mit der Nutzung der oben angegebenen Telefonnummer oder durch Klicken auf „Kontaktieren“ akzeptierst Du die Allgemeinen Nutzungsbedingungen, denen Du jederzeit widersprechen kannst. Weitere Informationen zum Datenschutz

Ăśber den Anbieter

Konsul-Smidt-StraĂźe 8r, 28217 Bremen
partner badge
Partnerschaft
Herr David MergelmeyerDein Kontakt
Online-ID: 2mb835g
Referenznummer: 2025-170
David Mergelmeyer Immobilien
David Mergelmeyer Immobilien
Bewertung: 3 von 5 Sternen
Nachricht hinzufĂĽgen
Mit der Nutzung der oben angegebenen Telefonnummer oder durch Klicken auf „Kontaktieren“ akzeptierst Du die Allgemeinen Nutzungsbedingungen, denen Du jederzeit widersprechen kannst. Weitere Informationen zum Datenschutz
Wie zufrieden bist du mit dieser Seite (nicht mit der Immobilie selbst)?