

Wohnung zum Kauf - Erstbezug • provisionsfrei591401 €4.024 €/m²4 Zimmer • 105,6 m² • frei ab 30.06.2027
591401 €
4.024 €/m²
4 Zimmer • 105,6 m² • frei ab 30.06.2027
Stadtterrassen Peuerbach ** BAUBEGINN ERFOLGT! **
Merkmale
- frei ab 30.06.2027
- Dachgeschoss
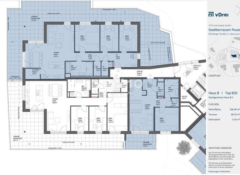
Grundrisse
Grundrisse
1 / 2
Realisiere Dein Projekt
Bausubstanz und Energie
Heizwärmebedarf (HWB)
B
Gesamtenergieeffizienz (fGEE)
A+
- Baujahr2026
- Zustand der ImmobilieErstbezug
Preisdetails
Kaufpreis
591401 €
4.023,71 €/m²
Provision für Käufer
provisionsfrei; Provision bezahlt der Abgeber.
Lage

Peuerbach (4722)
Weitere Informationen
Weitere Services
Lust auf eine Besichtigung?
Eine Frage zur Immobilie?
Über den Anbieter
IMMOcontract Immobilien Vermittlung GmbHMaklerbüro
Schnirchgasse 17, 1030 WIEN
Frau Marianne Gerner-KraupatzDein Kontakt
Online-ID: 2nxwv5a
Referenznummer: OBGC202508261353033716b01cdeaa8

IMMOcontract Immobilien Vermittlung GmbH
Bewertung: 3,5 von 5 Sternen
Wie zufrieden bist du mit dieser Seite (nicht mit der Immobilie selbst)?

