




Wohnung zur Miete - Erstbezug899 €1,5 Zimmer • 46,2 m² • 13. Geschoss
899 €
1,5 Zimmer • 46,2 m² • 13. Geschoss
Erstbezug in den DC Flats - Sonnige 1,5 -Zimmer-Wohnung - zu mieten in 1220 Wien
Merkmale
- Bezug: ab sofort
- teilweise möbliert
- 13. Geschoss
- Einbauküche
- Bad mit Dusche
- Keller
- Bodenbelag: Parkett
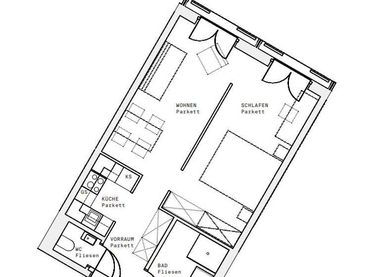
Grundrisse
Grundrisse
1 / 1
Realisiere Dein Projekt
Bausubstanz und Energie
Heizwärmebedarf (HWB)
A
Gesamtenergieeffizienz (fGEE)
A
- Baujahr2025
- Zustand der ImmobilieErstbezug
- EnergieträgerFernwärme
Mietkosten
Gesamtmiete
1.140 €
Nettokaltmiete
19,46 €/m²
898,74 €
Betriebskosten
137,63 €
Umsatzsteuer
103,63 €
Kaution
3420 €
Weitere Preisinformationen
Nettokaltmiete: 898,74 EUR
Lage

Wien (1220)
Der Anbieter hat die genaue Adresse nicht freigegeben
Weitere Informationen
Weitere Services
Lust auf eine Besichtigung?
Eine Frage zur Immobilie?
Über den Anbieter
Weitere Unterlagen
Online-ID: 25IW88RU8K23
Referenznummer: 109256386
Wie zufrieden bist du mit dieser Seite (nicht mit der Immobilie selbst)?




