Version: 8.24.0Navigation überspringen
225.000 €
4 Zimmer  •  122,6 m²  •  190 m² Grundstück
Immowelt logo

Reihenmittelhaus zum Kauf
225000 €
1.835 €/m²
4 Zimmer  •  122,6 m²  •  190 m² Grundstück

Reihenmittelhaus in Roßwein

Bei dem Immobilienangebot handelt es sich um ein Reihenmittelhaus in Roßwein.
Die Immobilie wurde 2022 & 2023 komplett saniert und renoviert.
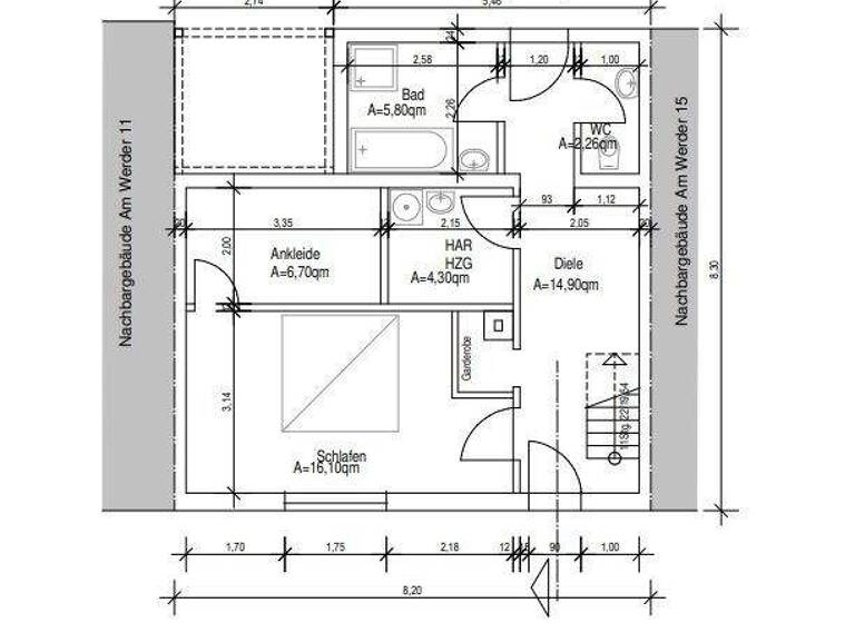
Das Reihenmittelhaus hat 4 Zimmer, 2 Badezimmer und ein Gäste-WC - verteilt auf 122,61 m² Wohnfläche und 3 Etagen.

Im Laufe der Sanierungstätigkeiten wurden die folgenden Dinge erneuert:
- Dach & Dachfenster
- Heizanlage
- Dämmung (Innen & Außen)
- Heizkörper
- Bodenbelag (Laminat & Fließen)
- Fenster
- Sanitäranlagen
- Balkon
- Elektrik
- Grundrissanpassung

Die Immobilie ist seit dem 01.04.23 neu vermietet.

Bei Fragen zur Immobilie stehen wir Ihnen jederzeit zur Verfügung.


* Alle Angaben in den Exposés sind ohne Gewähr und basieren ausschließlich auf Informationen, die uns von unserem jeweiligen Auftraggeber übermittelt wurden.


" frisch, engagiert, solide "

Die Künne Immobilien Gruppe ist professioneller Dienstleister der Immobilienbranche und steht Ihnen in den Bereichen Projektentwicklung, Verkauf, Vermietung, Verwaltung und Facility Management zur Verfügung.

Für weitere Informationen und Einblicke besuchen Sie unsere Homepage: www.kuenne-gruppe.de Sie wollen Ihre Immobilie verkaufen? Egal ob Mehrfamilien- oder Einfamilienhaus, Eigentumswohnung, Grundstück oder Neubau- bzw. Bauträgerprojekt. Wir vermitteln kompetent, transparent und zügig Ihre Immobilie, bundesweit.

Merkmale

  • Bezug: sofort
  • 190 m² Grundstück
  • Gäste-WC
  • Balkon
  • Garten
  • Badezimmer: Badewanne, Bad mit Dusche, Bad mit Fenster
  • Bodenbelag: Laminat

Grundrisse

Grundrisse
1 / 3

Realisiere Dein Projekt

Bausubstanz und Energie

Energieausweis

Der Anbieter hat keine Daten zum Energieausweis hinterlegt.
  • Baujahr1907
  • HeizungsartZentralheizung
Immowelt logo

Preisdetails

Kaufpreis
225000 €
1.835 €/m²
Provision für Käufer
8.032,50 €
Bei der ausgewiesenen Provision handelt es sich um eine Verbraucherprovision. Weitere Informationen siehe Provisionshinweis.
Weitere Preisinformationen
Nettorendite Ist in %: 4,8
Nettorendite Soll in %: 4,8
Soll-Mieteinnahmen pro Jahr: 10.800,00 EUR
Ist-Mieteinnahmen pro Jahr: 10.800,00 EUR
Geschätzte Gesamtkosten
241.875 €1
Kaufpreis
225.000 €
Notarkosten (1,5%)
3.375 €
Grunderwerbsteuer (5,5%)
12.375 €
Grundbucheintrag (0,5%)
1.125 €
1Der angezeigte Wert ist eine automatisch berechnete Schätzung von immowelt.
2Bei den Angaben handelt es sich um ortsübliche Werte. Individuelle Kosten können abweichen.

Lage

address-icon
Roßwein (04741)
Der Anbieter hat die genaue Adresse nicht freigegeben
Roßwein ist eine Kleinstadt mit gut 7.000 Einwohnern. Sie liegt etwa 50 km westlich von Dresden im Landkreis Mittelsachsen mit einer guten Verkehrsanbindung nach Dresden, Leipzig und Chemnitz.

Die zentrale Lage lockt gerade junge Familien aber auch Unternehmen aus den Ballungsgebieten in die Kleinstadt. Die adäquaten Kosten des Wohnraums und der Gewerbegebiete, sowie diverse Angebote und Einrichtungen in den Bereichen Familien, Gesundheit, Freizeit, Bildung, Tourismus, Kultur und Wirtschaft ziehen immer mehr Menschen nach Roßwein.

Weitere Informationen

Provisionshinweis 8.032,50 €
Bei der ausgewiesenen Provision handelt es sich um eine Verbraucherprovision. Der Makler hat mit dem Eigentümer der Immobilie einen Maklervertrag abgeschlossen, in welchem sich der Eigentümer verpflichtet hat eine Provision in gleicher Höhe zu zahlen. Stichworte Nutzfläche: 129,24 m², Anzahl der Schlafzimmer: 3, Anzahl der Badezimmer: 3, Anzahl Balkone: 1, Balkon-Terrassen-Fläche: 6,60 m², Anzahl der Wohneinheiten: 1, Bundesland: Sachsen, 3 Etagen, modernisiert: 2023

Weitere Services

Lust auf eine Besichtigung?
Eine Frage zur Immobilie?
Nachricht hinzufügen
Mit der Nutzung der oben angegebenen Telefonnummer oder durch Klicken auf „Kontaktieren“ akzeptierst Du die Allgemeinen Nutzungsbedingungen, denen Du jederzeit widersprechen kannst. Weitere Informationen zum Datenschutz

Über den Anbieter

Marko Künne Immobilien
Käthe-Kollwitz-Straße 58c, 04109 Leipzig
Online-ID: 2nslh54
Referenznummer: 599530
Marko Künne Immobilien
Marko Künne Immobilien
Bewertung: 4 von 5 Sternen
Nachricht hinzufügen
Mit der Nutzung der oben angegebenen Telefonnummer oder durch Klicken auf „Kontaktieren“ akzeptierst Du die Allgemeinen Nutzungsbedingungen, denen Du jederzeit widersprechen kannst. Weitere Informationen zum Datenschutz
Wie zufrieden bist du mit dieser Seite (nicht mit der Immobilie selbst)?