Version: 8.25.1Navigation überspringen
RealGoodLiving Real Estate Services GmbH
1.675 €
459,6 m² Lagerfläche

Halle/Industriefläche zum Kauf
1675,22 Euro pro Quadratmeter
459,6 m² Lagerfläche

Flexible Büro- und Gewerbefläche mit ca. 460 m² in Praterstern-Nähe Gewerbeobjekt mit Zufahrt & Lagerflächen in zentraler Wiener Lage

Diese großzügige Gewerbeimmobilie mit rund 460 m² Gesamtnutzfläche befindet sich in einer der gefragtesten Geschäfts- und Wohnlagen Wiens - zwischen dem Praterstern und dem Grünen Prater.

Die hervorragende Verkehrsanbindung (U-Bahn, S-Bahn, Straßenbahn und Bus) sowie die Nähe zur Innenstadt und zum Donaukanal machen diesen Standort besonders attraktiv für Unternehmen unterschiedlichster Branchen.

Die Fläche ist flexibel nutzbar und eignet sich ideal für Büro-, Praxis-, Schulungs- oder Gewerbezwecke. Sanitärräume sowie eine praktische Zufahrt für Transporter und Klein-LKW (bis ca. 2,30 m Höhe) sind vorhanden.

-------------------------

NUTZUNGSMÖGLICHKEITEN (BEISPIELE)

*
Co-Working-Space oder Einzelbüros

*
Ordination / Therapiezentrum

*
Seminar- & Schulungszentrum

*
Showroom oder Kreativstudio

*
Fitness- oder Yoga-Studio

*
Startup Hub oder Firmensitz

*
Bildungs- oder Betreuungseinrichtung

*
Lager mit Büroeinheit (Light Industrial)

*
Vereinslokal oder NGO-Zentrum

-------------------------

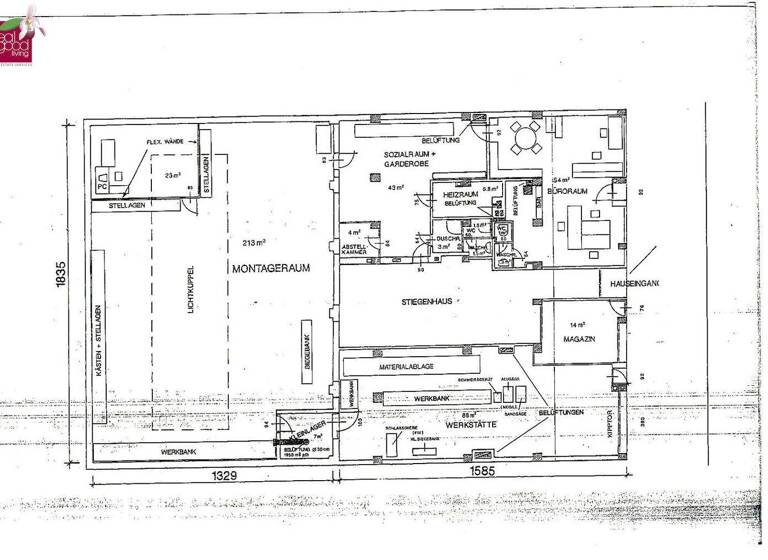
FLÄCHENAUFSTELLUNG (CA. 459,64 M²)

*
Büroraum: ca. 54,74 m²

*
Magazin: ca. 14 m²

*
WC: ca. 1,6 m²

*
Waschraum: ca. 1,5 m²

*
Heizraum: ca. 6,8 m²

*
Duschraum: ca. 3 m²

*
Sozialraum: ca. 43 m²

*
Abstellraum: ca. 4 m²

*
Werkstätte: ca. 88 m²

*
Kleinlager: ca. 7 m²

*
Montageraum: ca. 213 m²

*
PC-Raum: ca. 23 m²

Zusätzlich steht ein trockenes Kellerlager mit ca. 80 m² zur Verfügung.

-------------------------

AUSSTATTUNG

*
WC- und Duschanlagen

*
Zufahrt über Garagen-Einfahrt (Höhe bis ca. 2,30 m)

*
Großzügige Raumstruktur mit vielfältigen Nutzungsmöglichkeiten

*
Zusätzliches Kellerlager

-------------------------

KAUFPREIS & NEBENKOSTEN

Kaufpreis: € 770.000,-
Provision: 3 % des Kaufpreises zzgl. 20 % USt

WICHTIGER HINWEIS

Wir bitten um Verständnis, dass wir aufgrund unserer Nachweispflicht gegenüber dem Eigentümer nur Anfragen mit vollständiger Angabe von Name, Anschrift, E-Mail-Adresse und Telefonnummer bearbeiten können.
Vertrauliche Objektinformationen werden ausschließlich bei vollständig ausgefüllten Kontaktdaten weitergegeben.
Alle Angaben zum Objekt beruhen auf Informationen des Abgebers und erfolgen ohne Gewähr.

Hinweis gemäß Energieausweisvorlagegesetz: Ein Energieausweis wurde vom Eigentümer bzw. Verkäufer, nach unserer Aufklärung über die generell geltende Vorlagepflicht, sowie Aufforderung zu seiner Erstellung noch nicht vorgelegt. Daher gilt zumindest eine dem Alter und der Art des Gebäudes entsprechende Gesamtenergieeffizienz als vereinbart. Wir übernehmen keinerlei Gewähr oder Haftung für die tatsächliche Energieeffizienz der angebotenen Immobilie.

Wir weisen darauf hin, dass zwischen dem Vermittler und dem zu vermittelnden Dritten ein familiäres oder wirtschaftliches Naheverhältnis besteht.

Der Vermittler ist als Doppelmakler tätig.

Infrastruktur / Entfernungen

Gesundheit
Arzt <500m
Apotheke <500m
Klinik <1.000m
Krankenhaus <2.000m

Kinder & Schulen
Schule <500m
Kindergarten <500m
Universität <500m
Höhere Schule <2.500m

Nahversorgung
Supermarkt <500m
Bäckerei <500m
Einkaufszentrum <2.000m

Sonstige
Geldautomat <500m
Bank <500m
Post <500m
Polizei <500m

Verkehr
Bus <500m
U-Bahn <500m
Straßenbahn <500m
Bahnhof <500m
Autobahnanschluss <1.500m

Angaben Entfernung Luftlinie / Quelle: OpenStreetMap

Merkmale

  • Bezug: nach Vereinbarung
  • voll erschlossen
  • Barrierefrei
  • Personenaufzug
  • Teeküche
  • Bad mit Dusche
  • Gäste-WC

Grundrisse

Grundrisse
1 / 2

Realisiere Dein Projekt

Bausubstanz und Energie

Möchtest du Details zum Energieverbrauch?info_energy_calculation-icon
  • Baujahr1964
  • Zustand der ImmobilieNeubau, Massivhaus, Gepflegt
MediumRectangleTop

Preisdetails

Kaufpreis
770000 €
1.675,22 €/m²
Provision für Käufer
3% des Kaufpreises zzgl. 20% USt.

Lage

address-icon
Wien (1020)
Top-Standort zwischen Praterstern und Grünem Prater - urban, lebendig und hervorragend erreichbar.
Optimale Infrastruktur durch öffentliche Verkehrsmittel sowie kurze Wege in die Innenstadt und zum Donaukanal.

Weitere Informationen

Sonstiges RECHTLICHE HINWEISE:
Wir ersuchen um Verständnis, dass wir von Ihnen vor der Zusendung des Exposés die Bestätigung des sofortigen Tätigwerdens sowie die Bestätigung über die Aufklärung des Rücktrittrechtes gemäß FAGG (Fern- und Auswärtsgeschäfte-Gesetz) benötigen. Anschließend freuen wir uns über eine Terminvereinbarung.

Am 20. März 2024 wurde im Nationalrat die temporäre Befreiung von den Gebühren für die Eintragung von Eigentumsrecht und Pfandrecht (Bis 500.000 Euro) im Grundbuch bei Erwerb von Wohnraum beschlossen. (Zu beachten sind die Bedingungen lt. Bundesministerium für Justiz).

Die Verpflichtung zur Zahlung einer Vermittlungsprovision entsteht für Sie selbstverständlich nur bei erfolgreicher Vermittlung und wird erst mit der Rechtswirksamkeit des vermittelten Geschäftes fällig.
Wir können, aufgrund des bestehenden Geschäftsgebrauchs, als Doppelmakler tätig sein.

Die Angaben beruhen teilweise auf Informationen des Eigentümers und sind ohne Gewähr!
Es wird auf ein bestehendes Naheverhältnis zum Verkäufer hingewiesen. Stichworte Nutzfläche: 459,64 m², Gesamtfläche: 459,64 m², Anzahl der separaten WCs: 2, Bundesland: Wien

Weitere Services

Lust auf eine Besichtigung?
Eine Frage zur Immobilie?
Nachricht hinzufügen
Mit der Nutzung der oben angegebenen Telefonnummer oder durch Klicken auf „Kontaktieren“ akzeptierst Du die Allgemeinen Nutzungsbedingungen, denen Du jederzeit widersprechen kannst. Weitere Informationen zum Datenschutz

Über den Anbieter

Eßlinggasse 7/5, 1010 WIEN
partner badge
Partnerschaft
Herr Bruno FranzDein Kontakt
Online-ID: 26W8ZRZ2VVLM
Referenznummer: OBGC20260127064247726ca92fe0f61
RealGoodLiving Real Estate Services GmbH
RealGoodLiving Real Estate Services GmbH
Nachricht hinzufügen
Mit der Nutzung der oben angegebenen Telefonnummer oder durch Klicken auf „Kontaktieren“ akzeptierst Du die Allgemeinen Nutzungsbedingungen, denen Du jederzeit widersprechen kannst. Weitere Informationen zum Datenschutz
MediumRectangleTop
MediumRectangleBottom
MediumRectangleTop
Wie zufrieden bist du mit dieser Seite (nicht mit der Immobilie selbst)?