Version: 8.24.1Navigation überspringen
13,50 €
234 m² Bürofläche
Immowelt logo

Bürofläche zur Miete • provisionsfrei
13,50 €
/m²
234 m² Bürofläche

Penthouse-Büro mit Dachterrasse im Gewerbegebiet Garching - fußläufig zur Nähe U6

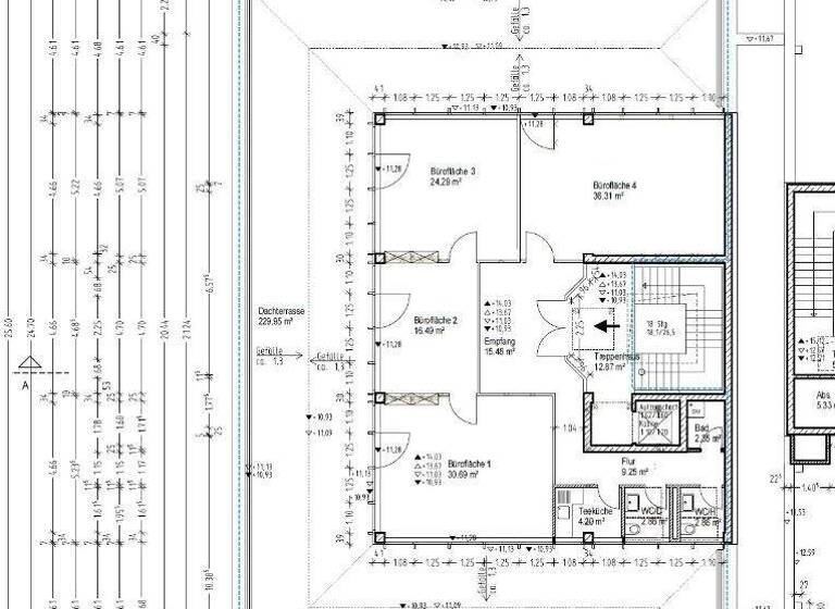
Im 3. OG des hellen und gepflegten Bürohauses sind Flächen von ca. 388 m² zu vermieten. Es handelt sich um 4 große Büros (zwischen ca. 17 und 36 m²), einer Dachterrasse mit ca. 230 m² (zu 1/3 gewertet), einem Duschbad, zwei getrennte eigene Toiletten, Teeküche, Flur und Empfang.

Das Bürogebäude ist komplett ausgestattet, inkl. Aufzüge, Parkplätze, und Sanitäranlagen. Im Vordergebäude befinden sich Büroflächen mit umlaufender Glasfassade und attraktiver Aussicht über das Industriegebiet. Im Mittelgebäude befinden sich zudem Lager- und Produktionsflächen, falls Sie zusätzliche Flächen benötigen.

Die Flächen sind funktional und zeitlos ausgestattet.

Der Mietpreis beträgt 13,50 EUR pro m². Die als Mietfläche gewertet Fläche beträgt ca. 234 m². Auf Wunsch können die Büroflächen umgebaut oder modernisiert werden. Die Umbaukosten können über den Mietpreis umgelegt werden.

Bei Interesse nehmen Sie bitte Kontakt zu uns auf, so dass wir eine individuelle Lösung für Sie finden können.

Merkmale

  • 3. Geschoss
  • Personenaufzug, Lastenaufzug
  • 3 Stellplätze: 3 Außen-Stellplätze
  • Fenster: Aluminium

Grundrisse

Grundrisse
1 / 1

Virtueller Rundgang

3D tour

Realisiere Dein Projekt

Bausubstanz und Energie

Der Anbieter hat keine Informationen zum Energieverbrauch bereit gestellt.
  • Zustand der ImmobilieGepflegt
  • HeizungsartZentralheizung
  • EnergieträgerGas
Immowelt logo

Mietkosten

Nettomiete
13,50 €/m²
3.163 €
Nebenkosten
2 €
Zusätzliche Kosten
Heizkosten
Miete pro Stellplatz
50 €
Provision für Mieter
provisionsfrei
Kaution
11000 €
Weitere Preisinformationen
3 Stellplätze, Miete je: 50,00 EUR
Nettokaltmiete: 3.163,00 EUR

Lage

address-icon
Gutenbergstr. 7HochbrückGarching bei München (85748)
Das Bürogebäude befindet sich zentral im Gewerbegebiet Garching-Hochbrück in der Gutenbergstraße. Die U-Bahn U6 Garching-Hochbrück ist fußläufig erreichbar - ideal für die Anreise der Mitarbeiter. Zudem stehen Stellplätze zur Anmietung zur Verfügung.

Weitere Informationen

Sonstiges Alle Angaben sind freibleibend, unverbindlich und basieren ausschließlich auf Informationen, die uns von unserem Auftraggeber mitgeteilt wurden. Wir übernehmen keine Gewähr für Vollständigkeit, Richtigkeit und Aktualität. Eine Zwischenvermittlung bleibt vorbehalten.

Ansprechpartner: Robert Fürbeck

Bavaria Wertimmobilien
Alte Landstraße 21
85521 Ottobrunn
Tel.: +49 89 58808384
info@bavaria-wertimmobilien.de
https://bavaria-wertimmobilien.de

Ihr partnerschaftlicher und leistungsstarker Immobilienmakler für den Verkauf oder Vermietung Ihrer Wohnung, Haus oder Gewerbeimmobilie in München und der Umgebung. Stichworte Gesamtfläche: 388,00 m², Bundesland: Bayern, Lage im Gewerbegebiet Serviceleistungen: Hausmeister

Weitere Services

Lust auf eine Besichtigung?
Eine Frage zur Immobilie?
Nachricht hinzufügen
Mit der Nutzung der oben angegebenen Telefonnummer oder durch Klicken auf „Kontaktieren“ akzeptierst Du die Allgemeinen Nutzungsbedingungen, denen Du jederzeit widersprechen kannst. Weitere Informationen zum Datenschutz

Über den Anbieter

Alte Landstraße 21, 85521 Ottobrunn
partner badge
Partnerschaft
Herr Robert Fürbeck
Herr Robert FürbeckDein Kontakt

Weitere Unterlagen

Online-ID: 2nbvq5g
Referenznummer: DI-GA-PH
BAVARIA WERTIMMOBILIEN
title
BAVARIA WERTIMMOBILIEN
Bewertung: 5 von 5 Sternen
Nachricht hinzufügen
Mit der Nutzung der oben angegebenen Telefonnummer oder durch Klicken auf „Kontaktieren“ akzeptierst Du die Allgemeinen Nutzungsbedingungen, denen Du jederzeit widersprechen kannst. Weitere Informationen zum Datenschutz
Wie zufrieden bist du mit dieser Seite (nicht mit der Immobilie selbst)?