Version: 8.22.4Navigation überspringen
900 €
4 Zimmer  •  94 m²  •  EG
Immowelt logo

Wohnung zur Miete
900 €
Kaltmiete
4 Zimmer  •  94 m²  •  EG

4-Zimmer-Erdgeschoss-Wohnung mit zwei Terrassen in Bad Füssing!

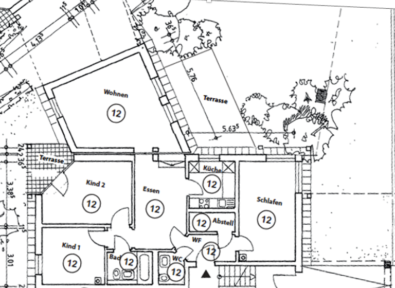
Diese großzügig geschnittene 4-Zimmer-Wohnung befindet sich im Erdgeschoss, umgeben von Garten. Aufgeteilt ist die Wohnung in insgesamt drei Schlafzimmer, ein geräumiges Wohnzimmer, eine separate Küche, ein Badezimmer und ein separates WC. Der geräumige Flur der Wohnung kann wunderbar als Esszimmer genutzt werden. Sehr praktisch gelegen befindet sich im Eingangsbereich eine Abstellkammer, welche auch wunderbar als Garderobe genutzt werden kann. Absolutes Highlight der Wohnung sind die zwei Terrassen, eine große vom Wohnzimmer erreichbar und eine kleinere von einem Schlafzimmer erreichbar.

Eine Einbauküche ist in dieser Wohnung nicht vorhanden und kann nach eigenen Vorstellungen selbst eingebaut werden.

Im Untergeschoss ist der Wohnung ein eigenes, großzügiges Kellerabteil zugeordnet.

Ein Tiefgaragenstellplatz oder Parkplatz kann bei Bedarf dazu gemietet werden.

Die Mindestmietdauer beträgt 2 Jahre.

Merkmale

  • Bezug: nach Absprache
  • Erdgeschoss
  • Kelleranteil
  • Gäste-WC
  • Balkon
  • Badewanne
  • WG-geeignet
  • Bodenbelag: Fliesen, Parkett, Laminat
- zwei eigene Terrassen
- großer Flur, welcher perfekt als Esszimmer genutzt werden kann
- gemeinsamer Waschraum und Trocknungsraum
- Fahrradraum
- Bodenbelag: hochwertiger Laminat, Stäbchenparkettboden und Fließen
- Tiefgaragenstellplatz wäre dazu mietbar
- energieeffiziente Isolierglasfenster
- großzügiges, eigenes Kellerabteil
- Hausmeisterservice und versierte Hausverwaltung

Grundrisse

Grundrisse
1 / 1

Realisiere Dein Projekt

Bausubstanz und Energie

Energieausweis

C
  • Baujahr1992
  • HeizungsartZentralheizung
  • EnergieträgerGas
Immowelt logo

Mietkosten

Warmmiete
1.200 €
Kaltmiete
9,57 €/m²
900 €
Nebenkosten
300 €
Heizkosten
in Warmmiete enthalten
Kaution
2.700 €

Lage

address-icon
Pappelallee 17Bad Füssing (94072)
Die Wohnung befindet sich inmitten des Naherholungsgebietes Bad Füssing. Im Ort finden Sie fußläufig alle Dinge des täglichen Bedarfs, und sind durch das perfekt ausgebaute Nahverkehrsnetz auch mit den Bad Füssinger Thermen und den Nachbarorten verbunden. Mit seiner wunderschönen Landschaft mit idyllischen Flussauen bietet auch das Umland von Bad Füssing optimale Voraussetzungen für beste und erlebnisreiche Erholung inmitten einer intakten Natur. Das bestens ausgebaute Rad- und Wanderwegenetz durch die Niederbayrische Landschaft ist flach, hügellos und ideal zum Fitwerden und Fitbleiben.

Weitere Informationen

Sonstiges Haben wir Ihr Interesse geweckt? Dann nutzen Sie bitte das Kontaktformular in der Anzeige und schreiben uns darüber eine E-Mail. Ein ausführliches Exposé senden wir Ihnen gerne nach vollständiger Kontaktanfrage.

Alle Angaben in diesem Exposé wurden sorgfältig und so vollständig wie möglich erstellt. Die Angaben sind ohne Gewähr und basieren ausschließlich auf Informationen, die von unserem Auftraggeber zur Verfügung gestellt wurden. Wir übernehmen keine Gewähr für die Vollständigkeit, Richtigkeit und Aktualität dieser Angaben.

Die veröffentlichten Bilder sind Eigentum von KRAFT Immobilien und dürfen nicht weiter vervielfältigt oder anderweitig benutzt werden. Stichworte Anzahl der Schlafzimmer: 3, Anzahl der Badezimmer: 1, Anzahl Balkone: 1, Bundesland: Bayern, 2 Etagen, modernisiert: 2025

Weitere Services

Lust auf eine Besichtigung?
Eine Frage zur Immobilie?
Nachricht hinzufügen
Mit der Nutzung der oben angegebenen Telefonnummer oder durch Klicken auf „Kontaktieren“ akzeptierst Du die Allgemeinen Nutzungsbedingungen, denen Du jederzeit widersprechen kannst. Weitere Informationen zum Datenschutz

Über den Anbieter

Kraft Immobilien
Kraft ImmobilienMaklerbüro
Dr.-Geiger-Weg 4, 94032 Passau
Korbinian Kraft
Korbinian KraftDein Kontakt
Online-ID: 2nwcb57
Referenznummer: 25-WM-P17W12
Kraft Immobilien
title
Kraft Immobilien
Nachricht hinzufügen
Mit der Nutzung der oben angegebenen Telefonnummer oder durch Klicken auf „Kontaktieren“ akzeptierst Du die Allgemeinen Nutzungsbedingungen, denen Du jederzeit widersprechen kannst. Weitere Informationen zum Datenschutz
Wie zufrieden bist du mit dieser Seite (nicht mit der Immobilie selbst)?